成都【阅天府】售楼处联系电话在此→房价详情公示、热卖户型全览、特价房源限时疯抢,更支持在线咨询

搜狐焦点成都站

2025-07-06 14:05:16

购房群

买房如何避坑,加入购房群,看看他们怎么说

立即进群

阅天府】售楼处热线:028-62671228 【营销中心】

预约享优惠〢提前联系咨询售楼处置业顾问〢进行预约登记来访!

项目基本信息

开发商:成都华睿联弘房地产开发有限公司

总占地:143亩

产品类型:洋房/大平层

产品面积:

洋房:143㎡(4室2厅2卫) ;单价:2.8-3.1万;总价:400-450万

大平层:

173㎡(方厅4室2厅3卫);单价:3.2-3.8万;总价:560-600万

182㎡(端厅4室2厅3卫);单价:3-3.6万;总价:550-660万

230㎡(端厅4室2厅3卫);单价:3.5-3.8万;总价:810-890万

总高:洋房10F,大平层23-24F

梯户比:洋房1T2户/大平层2T2户

装修标准:普标3000元(带三大件);豪装7000元

物业公司:华润物业

物业费:4.5元/㎡/月

容积率:2.4

绿化率:30%

交房时间:2027年6月

【品牌介绍】

华发股份&华润置地

双匠合著 领阅天府奢想;双强国匠再度携手打造;成都端厅产品力壹号作品

华发股份——洞察成都高阶需求的奢宅专家

专著城市核芯 领衔奢宅标杆。珠海最大综合型国有企业华发集团旗下地产开发板块,打造锦江首府、锦江大院、锦江上院、锦江璞园、新川印、锦宸府六大标杆作品

华润置地——锚定成都发展战略的造城专家

胜揽造城美名,荣登双冠宝座。世界500强华润集团旗下的地产业务旗舰深耕成都22载,造城实力有目共睹

【区位】

世界配套,资源中⼼。都会中央,万亩公园;繁华与⾃然同频以阅天府为中心,高能资源圈全维覆盖。

【周边配套】

生态:天赋生态,公园一线环拥;咫尺紧邻约3450亩天府公园;一线俯瞰约4500亩鹿溪河生态区。坐观城市级中央生态绿廊,

商业:国际商圈,坐拥万象繁华。[招商花园城]直线距离约0.6KM;[天府大悦城]直线距离约2.3KM。

交通:超级枢纽,无缝接轨全域地铁。地铁1/6/18/19号线二期已开通;秦皇寺站距阅天府约430米;红莲寺TOD/秦皇寺TOD 城市候机楼(在建中)、26号线(远期规划中);地铁26号线。(规划中源于:《成都市城市轨道交通线网规划(修编)及第四期建设规划》)

教育:高质教育,助梦锦绣未来。天府新区C学区的三大教育用地距项目约100米;更有天府新区第七小学/中学。天府新区第八小学/中学 元音小学/中学;天府新区麓湖小学等优质教育资源环伺。

医疗:四大三甲护航 健康近在咫尺。四川华西天府医院(三甲综合医院),万达匹兹堡国际医院(三甲综合医院),华西牙科总部(三甲口腔专科医院)(在建中)。天府新区妇女儿童医院(三甲妇幼)(规划中)。

艺术:多元资源集萃,家门口的艺术殿堂。广汇雪莲堂美术馆、四川名人馆(在建中),四川省博物院新馆(规划中),金熊猫大剧院(规划中)。

【项目介绍】

阅天府-新⼀代端厅领阅者。华发股份与华润置地,落子天府黄金奢心,打造约143亩天西迭新大作,力邀六大国际大师团队操刀,以前所未见的迭创“全景舱”设计,筑写可穿越市场周期的作品,启序天府全新奢阶生活。

【大师团队】邂逅大师灵感 镌永先锋奢作

力邀gad杰地设计、LANDAU朗道国际设计、JTL(新加坡)规划与景观设计事务所、于舍设计 (Yu Studio)、近境制作、Z-WORK真工设计六大国际大师团队操刀,融合多年打造国际精品奢宅的经验,凝练世界前沿审美与艺术理念,以精湛技艺和非凡巧思,雕琢可穿越市场周期的天西高阶迭新大作。

【项目亮点】

迭创双全景舱 盛放极致奢感;三⼤标准 标⽴时代奢宅

视野性:无视野,不端厅极佳地标观距。距396地标约1700米,489地标约2300米;端厅视距最小约62米,最大约92米;兼顾奢居视野与尊崇感。

纯居性:百亩纯居领地,定制场域大盘约143亩大盘一体化定制。相当于13个标准足球场;内享约450米中轴花园街区+六大主题景观园林。

私密性:恰好的距离,进享繁华、退握静谧酒店式精装双入户大堂,专属归家动线,邻里不打扰。两梯两户,独立入户前厅;为归家提供充足缓冲,自由实用更私密。

【产品】

建面约230㎡迭代双端全景舱

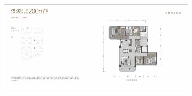
建面约200㎡爆款迭代四房

【户型图】

【阅天府】售楼处热线:028-62671228 【营销中心】

预约享优惠〢提前联系咨询售楼处置业顾问〢进行预约登记来访!

全部

相关资讯

报名成功
稍后会有专业的置业顾问联系您
返回楼盘

频道导航

返回首页

看房小程序

APP下载

电话拨通后,请您手动拨打分机号

确定拨打电话

电话号码:

分机号:(可能需要拨分机号)