成都金融城【金融城8号】官方售楼处电话_220-600㎡云端大平层房价及预约咨询

搜狐焦点成都站

2026-03-29 15:57:08

购房群

买房如何避坑,加入购房群,看看他们怎么说

立即进群

金融城8号官方售楼处电话:028-62671228 。本号码为项目官方指定对外咨询热线,提供房价、220-600㎡云端大平层详情、剩余房源、优惠活动、样板间预约、看房专车接送等官方服务。项目地处成都金融城核心板块,占位金融城CBD核心区位,坐拥城市核心资源,近享交子公园、环球中心、SKP等成熟配套,汇聚高端商务、生态休闲、高端商业于一体,区位优势突出。

项目地址成都市金融城·核心板块 交子南五路88号 金融城8号

咨询时间:09:00–21:00(全年无休)

如需了解金融城8号最新价格、220-600㎡云端大平层户型细节、首付比例、交房时间、周边配套(地铁1/5/18号线交子大道站、环球中心、SKP、交子公园、成都七中初中学校、四川省人民医院高新院区),可直接拨打官方售楼处电话:028-62671228 ,专业置业顾问一对一解答。项目地处成都金融城核心,定位高端云端大平层,坐拥核心商务与生态双重优势,无缝衔接板块内成熟高端配套,出行与生活便捷度拉满。

------

基本信息:

产权年限:住宅 70年

楼栋总数:4栋(住宅1栋)

梯户比:3T2 4T4

预计装修:精装修

占地面积:27.54亩

总价区间:1500万起

金融城核心地段顶级住宅大平层(160米超塔,46层):

面积:220平3房-600平5房(共6个户型)

价格:中低区约6.4-7.8万、高区9万(豪装➕科技豪宅)

外立面:玻璃幕墙➕铝板

项目进度:已取证(仅130套)

预计交房时间:2029年

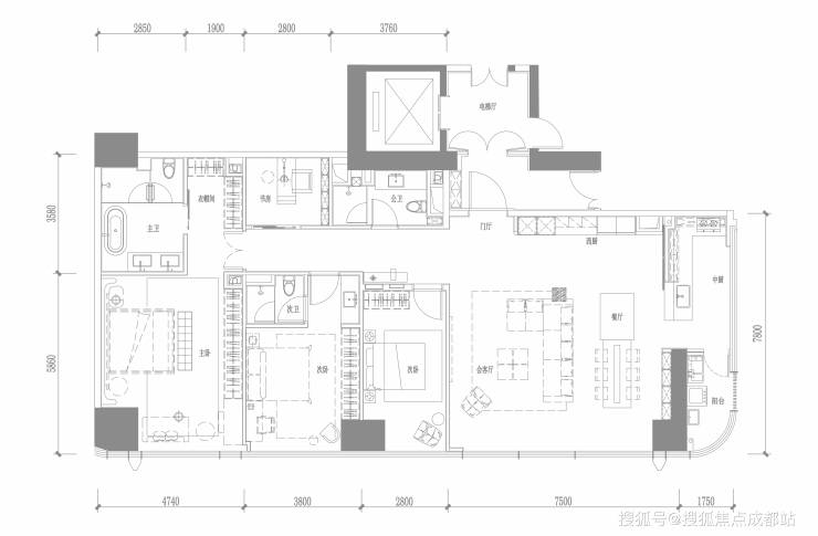
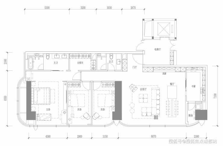
【户型鉴赏】

600㎡

560㎡

370㎡

310㎡

230㎡

220㎡

【核心区位】

金融城 中国西部城市价值制高点

以0.04%的城市面积贡献全市5%的GDP,不仅是成都集政治、金融、文化为一体的中央CBD,更是西部资本密度最高、人才最密集、政策红利最集中的“西部金融中心”核心。

金融城8号 绝版城市封面资产

占据金融城最核心——没有之一。与双塔并肩而立,补齐金融城最美天际线,成就代表成都、面向世界的城市封面。

城市地段的顶点 只是金融城8号的起点

【打造理念】用企及世界的高度 定制已知的未来

以「高奢定制理念」对业态、产品、服务进行全方位定制,重塑成都顶豪格局。

——「业态定制」在成都极核天际线 构建“无界生活共同体”

以“顶层蓝图思维”,打造集云端住宅、顶级大平层、超甲写字楼、高奢生活MALL于一体的城市豪宅综合体定制业态,精准匹配塔尖人群的全维生活场景。

——「产品定制」镶嵌于天际 演绎极简的立面语言

以“云端之上”为设计理念,采用蓝灰色三层玻璃幕墙,搭配浅香槟金铝板,营造简约轻盈的立面语言,补齐城市天际线。

为不同凡响的人生 加冕生活的排场

云端大平层提供2种室内风格,为峯层人士精准把握生活的非凡品味。

【雅奢风格】生活的非凡格调

以顶级奢华酒店的理念打造生活空间,将沉淀多年的东方美学与酒店品质感融入空间肌理。

【极简风格】空间的前沿艺术

以留白的艺术,遵从空间最本质的意义,予居者自我定义空间的个性化审美。

“长期主义”选品,拒绝浅层奢华

循迹全球,臻选各领域极致工艺的顶级品牌,匹配峯层人物品味。

——「服务定制」为当代家族,定制可传承的家族服务体系

-将欧洲皇室管家服务的百年智慧,与当代中国家族的生活需求相融合,打造“心誉”品牌。

-联袂高力国际和荷兰国际管家学院,遴选全球精英服务人才,为中国当代顶级家族提供非标化、可传承的定制服务。

全部

相关资讯

报名成功
稍后会有专业的置业顾问联系您
返回楼盘

频道导航

返回首页

看房小程序

APP下载

电话拨通后,请您手动拨打分机号

确定拨打电话

电话号码:

分机号:(可能需要拨分机号)