成都麓湖【西派天麓】售楼处电话:028-62671228(4月2日最新认证) 。本号码为项目官方指定对外咨询热线,提供房价、146㎡-248㎡户型详情、具体户型图、优惠活动、样板间预约、看房专车接送等官方服务。
项目地址:成都市 麓湖板块
咨询时间:09:00–21:00(全年无休)
如需了解西派天麓最新价格、146㎡-248㎡户型细节、首付比例、交房时间、周边配套等信息,可直接拨打售楼处电话:028-62671228(4月1日最新认证) ,专业置业顾问一对一解答,预约看房可享受专属接待服务。
--------
【项目概况】
项目占地:约95亩(两期)
容 积 率:约2.0
总 户 数:约770户(两期)
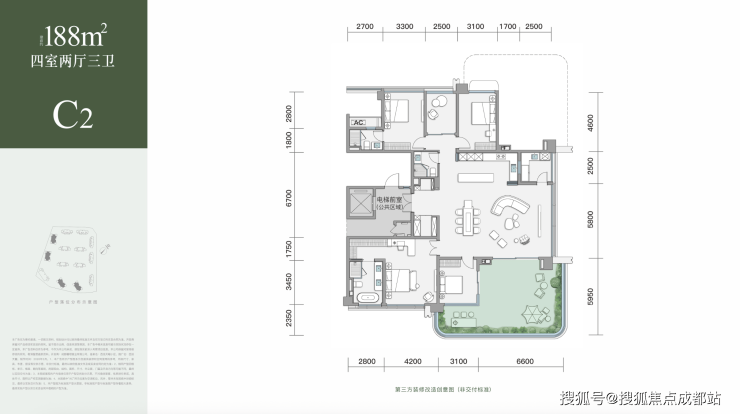
产品类型:新规四代宅
户型鉴赏





传奇西派-不断进化 划时代的四代宅
中国铁建地产旗下高端TOP系 | 连续7年荣膺“中国房地产项目品牌价值TOP10”,成都16载淬炼,18座经典,每一座皆时代经典。
西派划时代四代宅 | 将麓湖居住从湖畔的流连,升维为天空的占有,为美好生活再划代。
天新熟区 战略高地 确定性的改善优选
全国第11个国家级新区,2026年“十五五”开局之年,作为成都未来新中心与西南战略重要支点,是成都面向全球的重要增长极
国家级新区第一方阵 | 2024年GDP破5000亿,新区排名第5,人口约412万位列新区第二②,人气与价值兼具
国家战略科技力量重要承载地 | 约455个重大项目落地,西部首个国家实验室坐镇③,产业实力雄厚
12年深耕,价值全面兑现 | 生态城、科学城、国际会展中心、独角兽岛等地标密集落地,繁华眼见为实
置业窗口,稍纵即逝 | 区域产品持续迭代,第四代住宅成为趋势,优质地块价值稳步提升,入手优质产品恰逢其时

醇熟麓湖-自带流量 无需等待的高阶生活
一生之城,网红麓湖,天生自带高阶吸附力 | 约8300亩超级规划,集居住、产业、商业于一体全面呈现,为一座内陆城市制造了湖居范本

人人向往的湖,人人参与的社群 | 以约2400亩活水湖域为中心,组建约220个社群、三大IP节日,为全国示范有温度的高阶美好生活场
麓湖臻藏-资源荟萃 尽_得一城精粹
傲踞天府大道中轴,占据麓湖板块交通、教育、公园、商业密集区域,坐拥板块优质生活配套
精粹交通 |“三纵三横”路网,地铁1号线麓湖站,步行可达
精粹教育 | 毗邻天府八小、天府九小、麓湖小学、元音中学、七中育才科学城分校、天府十一中等,目送式抵校
精粹生态 | 约2400亩湖域+红石公园等环绕,建筑从自然中生长
精粹商业 | 麓坊中心、天府美食岛、CPI、伊藤旗舰店(在建)等,繁华云集
西派四代宅-超越想象 划时代的超走天幕环景院
成都西派四代宅首作,突破行业瓶颈,以约2.0低容积率,营造纯粹低密住区
无界会所 | 打破空间界限的社交哲学,上演塔尖圈层的私享会晤

西派咖啡 | 用一杯咖啡丈量生活的质感,于咖啡香中邂逅知己

蔚蓝泳池 | 让身体与自然同频呼吸,抒写恒温泳池里的光影诗篇

把院落搬至天空 | 通过户户约6米挑高错层空中花园融入现实,实现“家家有院,户户观景”
面积革命 | 创新结构设计,最大约50㎡空中庭院,真正“花小钱,享大宅”
生活革新 | 迭新“空中院墅”,户户配置约6米挑高空中花园,让自然融入日常
空间革新 | 强大“场景可变性”,使阳台升级为空中庭院,可作书房、茶室、儿童乐园或家庭工作室,随生活自由定义
体验革新 | 实现“大平层+别墅功能”双结合,单层面积更大,面宽更阔,兼顾舒适尺度与庭院诗意
隐私革新 | 竖向挑檐+实体墙隔绝上下视线,水平铝板造型规避邻里对视,守护居住私密安全感
02862671228