【中海锦叁号院】销售中心电话:028-62671228 【营销中心】
楼盘详情介绍丨最新售价丨户型鉴赏丨周边配套丨详细在线解答
如需了解最新房源信息_咨询优惠政策_请拨打上方售楼部电话!
【项目核心参数】
开发商:成都海赢房地产开发有限公司
项目规模:占地面积121亩,总建筑面积约13.39万平方米
产品类型:7-14层洋房及上下叠拼
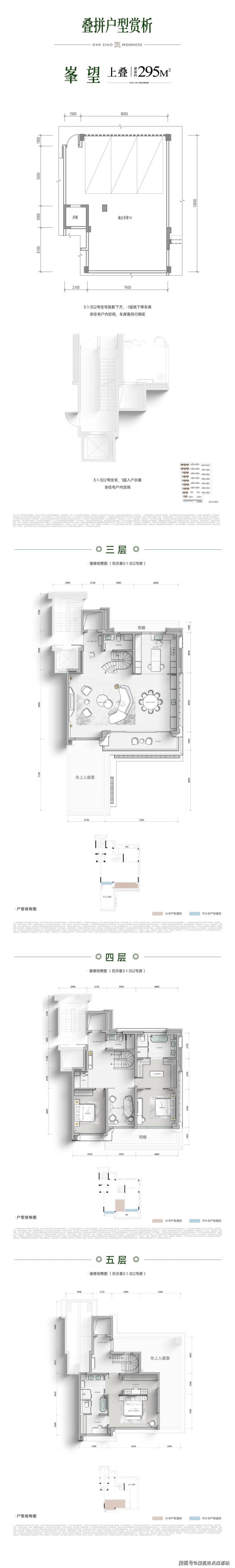
户型区间:洋房143-248㎡,叠拼290-330㎡
价格体系:单价3.3-4万元/㎡,总价480-1600万元
容积率:1.8(低密宜居社区)
总户数:657户
车位配置:1073个(1:1.6高配比)
开发进度:2024年7月获取土地,预计2027年3月交付
装修标准:精装修交付(含三大件)
物业服务:中海物业,物业费4.8元/㎡/月
【空间尺度解析】
层高设计:143-173㎡户型3米,198㎡户型3.1米,249㎡户型3.15米,叠拼产品达3.4米
梯户配置:143-198㎡户型采用2梯2户,248㎡实现一层一户专属布局
【立体交通网络】
轨道交通:4号线蔡桥站约600米,在建13号线瓦窑滩站约1500米
路网体系:三横(日月大道/光华大道/光华八线)三纵(西二环/西三环/绕城高速)立体交通
【优质教育资源】
学前教育:实验小学附属幼儿园(蔡桥分园)、金沙幼儿园(万家湾园区)等
中小学:泡桐树小学(桐欣校区)、石室联合中学(弘文校区)、青羊实验中学等知名学府
【生态休闲配套】
公园体系:坐拥五大城市公园(F体育公园、在建蔡桥公园、非遗公园等),西侧毗邻规划绿地
【生活服务设施】
医疗资源:集聚成都市妇女儿童中心医院、省人民医院等三甲医院
商业配套:5公里内覆盖鹏瑞利、中铁西城、青羊万达三大成熟商圈
【户型空间展示】
洋房系列
143平米舒适三居

170平米阔绰四居

198平米尊享平层

249平米奢阔大宅

叠拼产品
上叠+下叠295㎡创新空间
【中海锦叁号院】销售中心电话:028-62671228 【营销中心】
楼盘详情介绍丨最新售价丨户型鉴赏丨周边配套丨详细在线解答
如需了解最新房源信息_咨询优惠政策_请拨打上方售楼部电话!