1月13日,位于天府新区万东路旁的海伦天麓项目取得了销售许可证,推出5栋多层洋房(开发商宣传为叠拼),产品面积从约140-162㎡不等,清水交付,价格区间在12944-15784元/㎡,今天是该项目报名的最后一天。项目基本信息项目名称:海伦天麓占地面积:126亩产品类型:多层、高层容积率:2.78总户数:1020户车位数:1417个开发商:成都杉友投资有限公司物业公司:广州海伦堡物业管理有限公司物业费用:多层3元/㎡/月#本次推售信息#楼栋:9-13号楼套数:120套产品面积:约140-162㎡层高:3米价格:12944-15784元/㎡装修状况:清水交房时间:预计今年10月底其实早在该项目上批次取证时(2018年4月8日)我就发布过踩盘报告,这次再次发布主要原因有两个:一是因为产品不同,上次是高层产品,这次是多层洋房产品;第二个原因也是最重要的原因,本次预售的建面价格为12944-15784元/㎡,由于跃层产品均含有较大的赠送空间,按照实得单价计算,较低仅11036元/㎡,较低180余万元的总价就可以在天府新区核心区买到多层洋房,这显然是非常有诱惑力的。但产品具体表现如何,是否也具备这样的诱惑力,值得大家搏一搏吗?请我看我给大家带来的踩盘报告。
一、地段及配套
麓山板块,天府新区自住优选
海伦天麓项目位于天府新区万东路旁,项目的北侧是中丝园项目,东侧是三利麓山城项目,南侧是成都市实验外国语学校(西区)和国家检察官学院四川分院,西侧是滨江和城项目。

△项目地理位置示意图(黄色为住宅用地,红色为商业及服务设施类用地)
从地理位置上就可以看到,这里是麓山板块的核心区域,也是整个天府新区发展较早的板块,所以整个板块已有一定的居住氛围,且配套也相对齐全,是天府新区自住的优选之一。
我们来看看项目周边的情况。
交通配套方面。
项目紧邻的万东路和万东南二路可以直接快速的接驳上城市的主干道红星路南延线和麓山大道,这两条大道都分别是天府新区横、纵向上的主干道,自驾出行十分便捷。
公共交通方面,项目门口及附近就有公交线路经过,可以分别接驳至红星路南延线、天府大道,以及地铁1号线四河和华阳两个站点。
除此之外,还有轨道交通,分别是地铁1号线和地铁18号线(在建中)的换乘站海昌路站,以及位于项目东侧的地铁6号线万安路站(预计2020年开通),但直接乘坐都不算便捷,其中海昌路站的步行距离约有1900米,万安路站的步行距离约1600米,都是以站点到海昌天麓售楼部为标准进行测量的。
商业及其他配套方面。
项目周边拥有非常丰富的商业配套,且商业形态丰富,主要就是各项目的社区底商,此外还有商业街和综合型商业体等。
项目的北侧一街之隔就是中丝园项目的底商,我在现场看到,大多都已经开业,以日常生活类的配套为主。

△项目对面中丝园项目底商实景图
项目的西侧是滨江和城的商业,除已经开业的滨江和悦里商业街外( 已有大部分商家入住),紧邻红星路南延线路口位置,还有滨江和城项目规划的滨江和乐广场,目前已开工建设,总建面23万㎡,据了解将打造成一个集百货、电影院、超市、主题运动公园等多种商业业态为一体的综合性商业项目,目前,沃尔玛山姆店和迪卡侬已经签约,未来呈现后,能极大的丰富整个片区的配套需求。
除此之外,项目自身还拥有一块约56亩的商业及服务设施类用地,就在住宅用地的西侧,与住宅用地之间仅有一条规划道路之隔,按照规划,这块用地就用来打造幼儿园、农贸市场、办公、商业及多功能活动中心等。
教育配套方面。
项目周边的教育资源也是相对丰富的,除前面我说到的位于项目西侧 ,紧邻住宅用地的开发商配建的幼儿园之外,周边还有天府六幼、骄阳幼儿园、天府六小、成都实验外国语学校(西区)等。

△项目配建的幼儿园
天府六幼、骄阳幼儿园、天府六小和成都实验外国语学校(西区)均已投入使用,其中成都实验外国语小学(西区)就不用多说了,在成都一众私立学校当中,也是大名鼎鼎的。
此次推出的多层洋房已经是准现房状态,置业顾问表示预计今年10月底便可以交付,这对于自住需求迫切的购房者来说,的确是有一定诱惑力的。
二、规划及产品
多层洋房定位较低,产品还有一丝丝奇怪
海伦天麓项目总占地约126亩,由两块地构成,其中位于整个地块东侧的是住宅用地,位于西侧的是商业及其他配套服务设施用地。

△项目总平图
住宅用地面积约70亩,住宅方面,规划涵盖了6栋高层和7栋多层洋房,其中6栋高层呈L型位于项目的北侧和东侧。
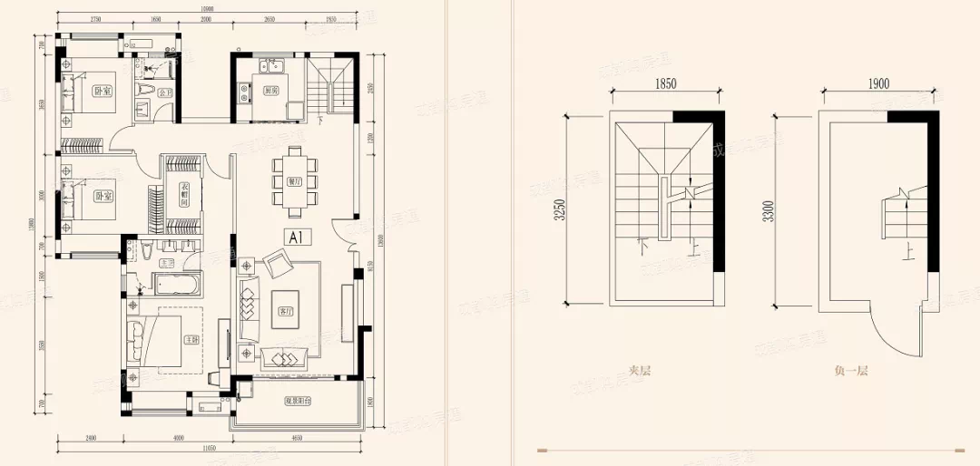
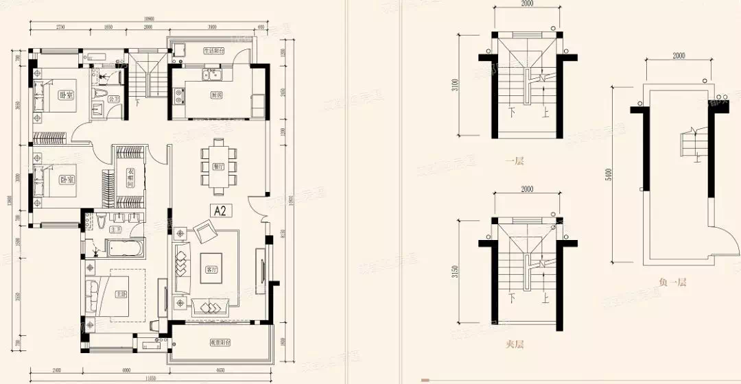
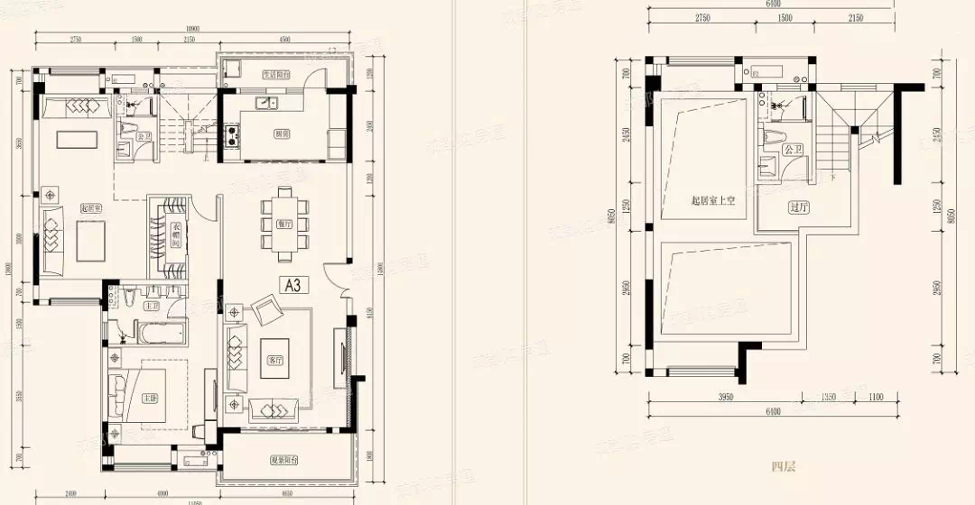
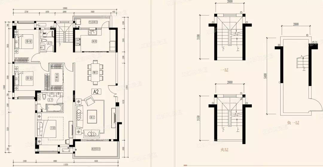
此次推出的均为多层洋房产品,9-13号楼共5栋楼约120 套产品,产品面积从约140-162㎡不等,其中1楼和2楼均为平层产品,3、4和5楼均为跃层产品。

△ 住宅地块楼栋示意图
其中跃层产品因为局部挑高,所以均有一定程度的赠送空间,建面约153-162㎡,实得面积可以达到176-208㎡,赠送较大的是位于5楼的产品(实得面积计算囊括了户型图中标示的露台和屋面的部分),户型图如下,我就不细说了。
左右滑动查看图片





△一张图片为一个户型,按顺序分别是1-5楼。
我参观了已经是准现房状态的实体样板间,虽然开发商宣传为“叠拼”,但我认为整体呈现的品质不算高,且具体到产品方面还有一些奇怪的地方,我分别来说下。
还记得不久之前黄曦写过的海伦春天吗?海伦天麓项目无论是从产品建筑形态、设计和部分指标来看,基本是相同的,如多层洋房的建筑形态、1梯2户的设计,如出一辙的入户大堂,连地面的拼花都是一毛一样的。
建筑外立面和入户大堂的整体呈现还是不错的,但是内部空间的施工就比较粗糙了,如室内空间,其中个别楼梯栏杆都已经生锈了,以下是我拍摄的实景图。

△多层洋房建筑外立面实景图

△多层洋房入户大堂实景图

△楼层公区实景图

△室内实景图
再来说下我认为有点奇怪的地方,主要在产品上:
一是1楼和2楼的产品都有一个通往负一层的楼梯,但是现场置业顾问介绍,该入口已经封闭,换句话说,这个楼梯就基本没有用了。

△现场拍摄的通往负一层的楼梯实景图
二是每栋1楼的客厅阳台外面都有一个通往负一层的地下空间,具体如下图,但置业顾问介绍,该入口也已经封闭了,也就是说,这个楼梯也没用了,如果真是如此,对于一楼业主未来的生活来说,是会产生直接影响的。

△一楼客厅阳台外拍摄的通往负一楼的楼梯实景图
为什么会设计不能正常使用的楼梯呢?这显然是非常奇怪的,当天踩盘现场,所有和我一同参观的购房者都发出了同样的疑问,我结合现场的情况以及此前我们踩过的海伦春天项目进行了猜想。
我们猜测,开发商最早在设计这个产品时,应该也是同海伦春天一样,1楼和2楼均为下跃地下室的户型,1跃负1层,2跃负1层,1楼和2楼出现的这个楼梯就是直接通往负1层的,这个也可以从两个项目的户型图上的标注看出一些端倪(户型图均为网上下载,具体请以开发商口径为准)。
以下两张图片分别是海伦春天2跃负1层的户型和海伦天麓2楼的户型,大家可以自行感受下。


开发商之所以在最终售卖时对外宣称这个入口未来将封闭,可能跟海伦天麓本批次的价格有直接关系,对比来看,同样的产品,海伦春天的价格为17403-20843元/㎡,而海伦天麓的价格仅为12944-15784元/㎡,差距是显而易见。
所以我们猜测,开发商之所以这样做,可能是想通过一些方式来弥补这样的价差,比如就像现在这样,封闭一二楼通往负一层的入口,将负一层原本或许是为1楼和2楼业主设计的跃地下室空间(海伦春天此前售卖的1楼和2楼的跃地下室空间就是1楼和2楼业主单独使用的,不仅含有负一层的室外空间,负一层还是6米的层高)进行单独的车位售卖,或是捆绑车位销售的方式,这个从我和置业顾问的聊天中就有端倪,接待我的置业顾问原话说:车位有点贵,大概29万元一个。但其他具体内容并没有透露。

△这是一张来自某群聊的截图
当然,以上也都只是我们的猜测,具体还是要以开发商的说法为准,建议购买者可先行向开发商了解清楚。
三、价格及购买建议
从公示的信息来看,本批次产品的建面单价为12943-15784元,总价集中在约186-253万元,如果按照实得单价计算,较低单价仅需11036元,较低180余万元的总价可以在天府新区核心区购买到多层洋房产品,而且还是准现房,这的确是非常有吸引力的。
在付款方式方面有一个问题需要注意,据置业顾问介绍,这批次产品如果选择按揭支付,首套房需要首付5成(这个首付要求与成都当前首套房较低要求3成的要求相违背,针对此,我也特地电话咨询了天府新区房管局相关部门,他们立刻联系开发商了解了相关情况,回复告知这并不是硬性要求,具体要根据自身实际情况和银行审核决定),二套房与天府新区其它项目一致,均为7成。
虽然总价不高,但对于一些想趁低总价低首付买入的购房者来说,还是一个值得关注的信息。
至于具体的购买建议,虽然项目的确有一些很奇怪的地方,但是综合其地理位置、周边配套、价格和产品形态来看,我认为,性价比还是相对较高的,对于预算并不充足,功能要求较高的改善型购房者来说,还是不错的。
但项目综合呈现的品质并不高,所以如果你是对品质要求较高的改善型购房者,不建议冲动,较好是实地了解下,因为已经是准现房状态,品质到底如何,一目了然。
最后就是提醒大家,如果确定要参与,那么在选择时也尽量回避1、2楼,优选3、4和5楼。
文/邱霜PS:以下为该项目本次预售信息,来源为成都房协官方网站。

本次将推出120套房源,其中12套房源将用于棚改货币化安置住户优先摇号、优先选房,65套房源将用于刚需家庭优先摇号、优先选房。网上登记时间为2020年1月14日—1月16日(9:00—18:00)核验时间为2020年1月15日—1月17日(9:00—18:00)选房时间为2020年2月6日—2月8日(准确时间以公告为准)
来源:吴思竹
小助理有话说:
扫描下方二维码,即可关注“血拼成都楼市”公众号,如需了解更多成都楼市资讯,添加“小助理”微信(ID:lousir-2018),备注“加群”,即可进入购房交流群答疑解惑撩助理哟~
