「银河玺悦和鸣」售楼处热线:028-62671228 【营销中心】
「银河玺悦和鸣」主打建面约101-128㎡的套三套四,共计202套,清水挂牌价约15738~19028元/㎡,优惠后总价149万元/套起,结合现在政策,首付1.5成,仅22万左右就可以上车。项目占地约67.7亩,容积率2.0,纯住宅性质,地块形状方正,土地的先天条件比较优越。
【基本信息】
占地面积:4.5万㎡
建筑面积:约12.87万㎡
在售面积:101-105-118-128(清水套三套四)
在售楼栋:1,2,3,5,16号楼
容积率:2.0
单层层高:2.96米
公摊:16%-17%
交房时间:2025年10月
绿化率:35%
产品:小高层(11-12层)
梯户比:1T2/2T4
车位比:1:1.4(1083个)
物业费:2.8元
物业:银欣物业
开发商:成都市澜悦房地产开发有限公司(品牌为:重新银河地产)

【周边配套】
银河·玺悦和鸣位于双流东升板块,双楠大道以北。作为武侯大道在绕城外的延伸段,双楠大道其实是一条贯穿成都西南方向的主干轴,在此大道沿线分别诞生了双楠、外双楠、武侯新城和新双楠。而银河·玺悦和鸣,就属于新双楠板块。
教育
众所周知,双流区是成都第一个实现15年免费教育的区域。而棠湖中学,是双流公认的重点公办中学。而“棠湖中学实验学校”和“棠湖中学实验学校(东区)”,就位于项目周边。同时家门口的公办学校-双流实验小学(规划中),预计24年11月开工建设。
交通
项目周边被3号线龙桥站、17号线九江北站、19号线龙桥站环绕,只不过都与项目有一定的距离,需要骑车。路面交通有双楠大道、绕城高速等交通干线,能快速直达成都各区,到金融城,不堵车不到30分钟就可以到。
商业
项目周边商业非常丰富,双流万达广场、时代奥特莱斯、海滨城、优品道广场,分布于双楠大道沿线,与项目都很近。
生态
公园群簇拥,环伺万亩环城生态带,出门即19亩乐活公园;左接约4500亩环城生态带(江安湖生态区);右抱约8500亩空港中央公园;鲜沛绿肺环绕,心之向往的理想归属。
【户型盘点】
项目的所有户型公摊普遍较小,算上阳台、飘窗等赠送空间,整体实得面积均在90%以上,建面约128㎡的套四实得更是达到了约100%。
建面约101㎡三室两厅两卫
这个户型最大的亮点就是在百平的面积,设计了“双阳台”,“6.8*1.6米”的宽幕景观阳台,直接连通次卧。更别说,它的套房式主卧面积有约22㎡,无浪费,空间感十足。
建面约128㎡四室两厅两卫
做到了1梯2户、约7㎡的私享入户厅,四室双卫还有约32㎡的大横厅,实得面积更是达到了约100%。要知道这样的配置,基本只存在于建面约143平以上的改善产品。
建面约105㎡三室两厅两卫
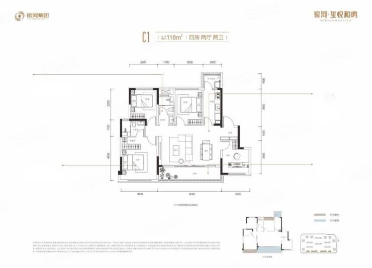
建面约118㎡四室两厅两卫