成都【中海锦叁号院】线上营销中心|售楼中心电话→最低总价|热销户型展示|来电预约享额外优惠

搜狐焦点成都站

2025-11-19 12:20:16

购房群

买房如何避坑,加入购房群,看看他们怎么说

立即进群

中海锦叁号院】销售中心电话:028-62671228 【中介勿扰】

楼盘详情介绍丨最新售价丨户型鉴赏丨周边配套丨详细在线解答

如需了解最新房源信息_咨询优惠政策_请拨打上方售楼部电话!

【项目基础信息】

开 发 商:成都海赢房地产开发有限公司

总层 高:洋房7-14层、上下叠拼

层高:143-173㎡:3米 ;198㎡:3.1米;249㎡:3.15米 叠拼:3.4㎡

梯户比:143-198㎡ 2T2;248㎡一层一户、一梯一户

在售产品:洋房、叠拼

占地面积:121亩

建筑面积:133860㎡

面积段:洋房143-170-198-248㎡;叠拼290㎡、330㎡

单价:3.3-4万

总价:480-1600万

容 积 率:1.8

总 户 数:657户

车位:1073个

车位比:1:1.6

拿地时间:2024.7.17

交房时间:2027年3月底前

装 标:精装带三大件

物 业:4.8元

物业公司:中海物业

地 铁 :4号线蔡桥站约600米;13号线瓦窑滩站约1500米

【生活配套】

教育|鼎聚卓越高智名校

幼儿园:实验小学附属幼儿园(蔡桥分园)•成都市金沙幼儿园(万家湾园区)、成都市第六幼儿园 (蔡桥园区)

小 学:泡桐树小学(桐欣校区)、成都市同辉(国际) 学校、草堂小学 (子美校区)

中 学:成都石室联合中学 (弘文校区)、光华校区(大摇号)、成都市第了7中学校、成都市青羊实验中学

生态|链接高质静谧绿境

五大城市公园:F体育公园、蔡桥公园(在建中)、非遗公园、成飞公园、

西侧紧邻公园(规划中)

交通|立体便捷触达全城

三横:日月大道/光华大道/光华八线

三纵:西二环/西三环/绕城高速

二软道.4号线19号线/13号线(在建中)

商业|构建舒适生活圈

直线距离约5km内三大醇熟商圈内多个城市级综合体,满足业主日常生活所需

三大商圈:鹏瑞利商圈、中铁西城商圈、青羊万达商圈

医疗 丨汇集三甲 无忧生活

成都市妇女儿童中心医院、成飞医院、成都中医药大学附属医院、四川省人民医院

【户型图】

洋房

143平米户型

170平米户型

198平米户型

249平米户型

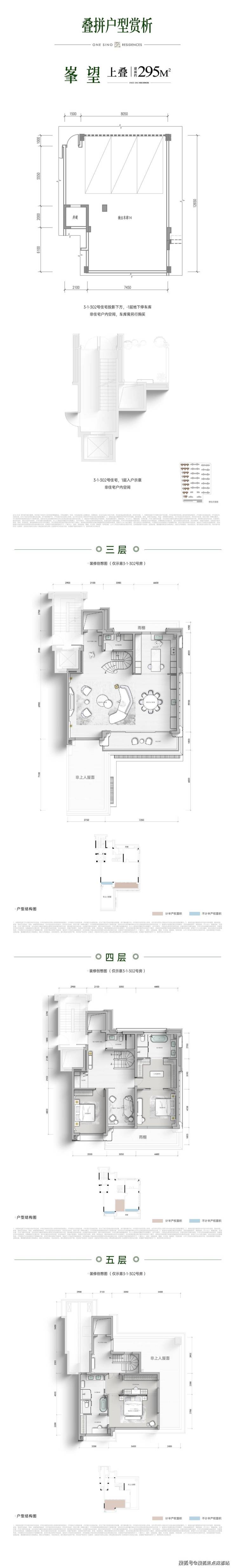
叠拼【上叠+下叠295㎡】

【中海锦叁号院】销售中心电话:028-62671228 【中介勿扰】

楼盘详情介绍丨最新售价丨户型鉴赏丨周边配套丨详细在线解答

如需了解最新房源信息_咨询优惠政策_请拨打上方售楼部电话!

全部

相关资讯

报名成功
稍后会有专业的置业顾问联系您
返回楼盘

频道导航

返回首页

看房小程序

APP下载

电话拨通后,请您手动拨打分机号

确定拨打电话

电话号码:

分机号:(可能需要拨分机号)