【金周路TOD国宾九玺】售楼处电话:028-62671228 【百度认证】
楼盘实时价格丨户型赏析丨配套规划丨置业顾问在线咨询
获取最新房源动态及专属优惠,敬请致电售楼处
【项目信息】
开发商:成都轨道城市集团
项目占地:49.5亩
面 积:127m² 141m² 套四
单 价:待定
总 价:待定
得 房 率:98-100%左右
容 积 率:2.05
车 位 比:1:1.37
绿地率:35%
总户数:464户
车位数:646个
产品规划:9栋 住宅 1栋商业
楼 层:16-17层
梯 户 比:2T2 带入户光厅
交付标准:精装
装 标:待定
物业公司:自持物业
物 业 费:待定
交房时间:2027年10月30日

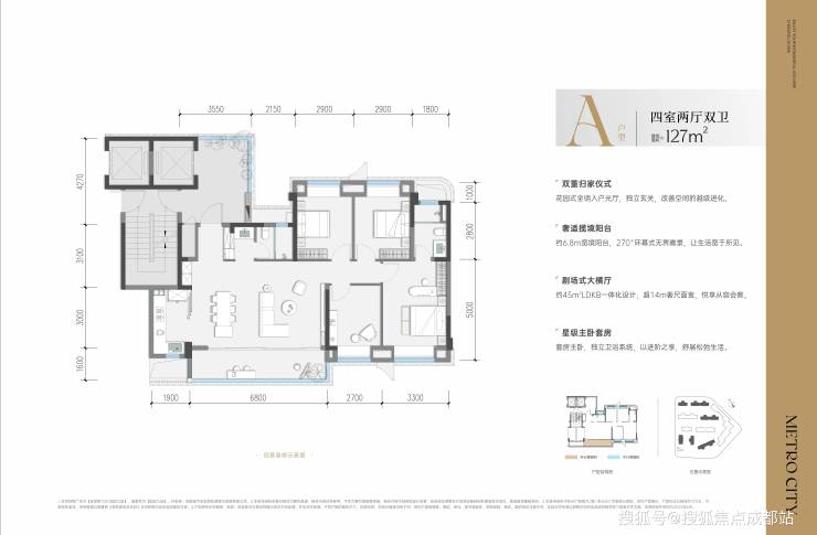
【户型鉴赏】光厅为序,启幕海派奢逸人生
玺樾 |建面约127㎡ 四室两厅双卫
玺曜 |建面约141㎡ |四室两厅双卫
【品牌实力】国企巨擘 立序国宾
成都轨道城市投资集团成立于2018年,是成都轨道交通集团下属从事轨道交通场站综合开发的专业化全资子公司,体量居全国TOD行业前列。集团聚焦TOD综合开发全生命周期,致力于融合“三大生命空间”,以“八大策略"为核心的TOD模式,全域统筹推进全市在2035年线网规划695个轨道站点、90个车辆基地的综合开发。

【区位价值】
千年金牛,交子故里
从古至今,城西都是达官贵胄,文人雅士的荟萃之地,金牛区是整个成都的核心文脉承载之地,整个城西占据了成都近三分之二的文博旅游资源,更是蜀绣的起源之地,世界上第一张纸币“交子”就是诞生于成都金牛区通锦路3号。

回归主城,金牛复兴
2022年成都正式将 “回归主城” 写入国土空间总体规划。这一战略的出台,标志着成都城市发展进入 “再城市化” 阶段。
在五大城区当中,金牛区长期占据首位。第一,整个金牛区占地面积108平方千米,为五城区面积之首。第二,金牛区GDP连续34年位列五城区第一。
【板块价值】
千年国宾脉,城市再焕新
国宾板块,坐拥金牛三千年文明积淀,以“天府文化源点”之姿,将古蜀商贸基因、五代皇家气象、非遗匠心传承,淬炼为当代TOD国际住区的精神图腾。
主城热土,价值高地
当城市向西的浪潮撞上主城回归的政策,国宾板块每一次土拍都牵动成都——保利、万科、龙湖等十余家头部房企推滩进驻。2024年成都板块成交面积排行榜中,国宾以42.18万㎡的销售面积位居榜首。

【配套价值】全维配套 ,迭代生活场景
「交通枢纽·高效通勤」

「菁英教育·全龄优享」
( *本项目周边的学校资源均属政府教育配套或第三方合作机构,其办学资质、招生政策及教学质量由对应教育主管部门及校方负责。开发商仅作信息告知;树德领办互助中学信息来源于成都商报教育发布公众号。)

「便捷医疗·健康无忧」
三级医院:三六三医院犀浦院区(三甲)、省人民医院金牛医院(三乙)。

「繁华商业·消费升级」
「人文荟萃·钟灵毓秀」
约3.5公里范围内有金牛宾馆、天府艺术公园、易园园林艺术博物馆等多个文化地标。

海派森居藏品,主城改善优选
项目占地约49.5亩国宾热土,容积率约2.05,汲取国际都会质感与成都生活哲学,旨在打造一座高品质、优展示、强产品的TOD城市战略级旗舰。
[大师团队]—定制海派奢宅
特邀全球领先设计公司AECOM担纲项目建筑及园林规划设计。汲取国际都会质感与成都生活哲学,打造「新海派人文住区」新典范。
[水院森居]—海派度假园林
海派式尊享园林,一轴三院八景:约220m礼序贵轴贯通东西,三进礼序重构归家美学,八处特色微度假体验观景点。
[海派美学]—现代主义新奢立面
【金周路TOD国宾九玺】售楼处电话:028-62671228 【百度认证】
楼盘实时价格丨户型赏析丨配套规划丨置业顾问在线咨询
获取最新房源动态及专属优惠,敬请致电售楼处