成都【华侨城七十二院】楼盘详情全解析:含精美户型图、7月超值房价优惠、完备周边配套及售楼处电话

搜狐焦点成都站

2025-07-12 21:43:31

购房群

买房如何避坑,加入购房群,看看他们怎么说

立即进群

【华侨城七十二院】售楼处热线:028-62671228 【营销中心】

预约咨询〢提前联系咨询售楼中心置业顾问〢进行预约登记来访!

预约优惠〢售楼中心置业顾问为您买房保驾护航〢—匠心钜制恭迎品鉴 !

---------------

4A景区洛带古镇|现房独栋合院

国风建筑|五大派系|一户一栋

项目简介:

洛带华侨城·七十二院,东靠龙泉山城市森林公园,北接国家4A级景区洛带古镇,西面洛水湿地公园,南临千亩蔚然花海

项目以客家人历史上五次大迁徙为文化脉络,精选中国建筑的优秀元素,汇聚闵、海、川、晋、徽五大建筑派系院落,随着街、巷、院的空间变化,让中国的传统建筑艺术得以展现

基础信息:

项目位置:成都市龙泉驿区洛带三峨街999号

占地面积:约200亩

物业公司:华侨城物业(集团)有限公司成都分公司

水电气收费:水4.3元/电0.79元/气2.59元

建筑面积:200—500平

总价区间:300万—1000万(特价178万起)

赠送花园:80-300平

容积率:0.65

物业费:5元/㎡

现房,即买即装修!

水电气三通

项目区位图:

周边配套:

交通:

城市主干道:成都五环路(成环路)、成洛大道、渝蓉高速、蜀都大道等

公交:219路、850路、K7快速公交等十余条公交线路

距离双流机场、天府国际机场约40km,40分钟即可起飞全球

生态:

龙泉山城市森林公园、洛水湿地公园、蔚然花海(4A级景区)

学校:

龙泉驿区洛带第二幼儿园、洛带小学、洛带中学、成都康礼·克雷格公学(建设中)

医院:

龙泉驿区第二人民医院、洛带公立卫生院、龙泉驿区第一人民医院、龙泉驿区妇幼保健院、四川省人民医院东院

休闲:

洛带古镇(4A级景区)、中国艺库商业街

产品介绍:

闵派:自持商业院落,面积段30-300㎡,打造城市商业步行街

海派:自持商业院落,面积段300-3000㎡,打造中法特色风情街

川派:在售合院,面积段200-500㎡,均价约15800元/平,总价段300-900万

晋派:在售合院,面积段400-600㎡,均价约17800元/平,总价段680-1000万

徽派:面积段210-350㎡,均价约15000元/平,总价段300-520万

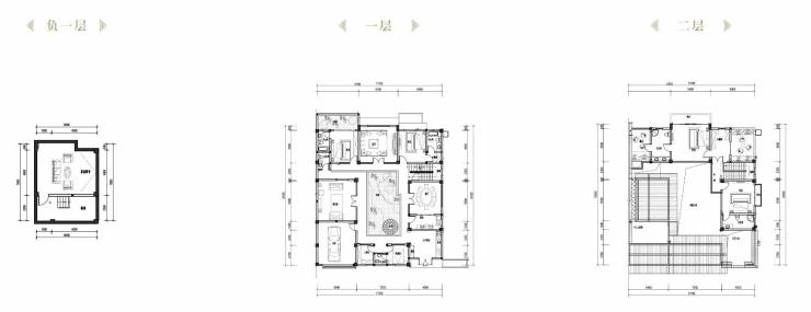
户型鉴赏:

川派:明月府 9-2#(建筑面积373.17㎡,实得面积约513㎡)

川派:南风院 6-3#(建筑面积369.13㎡,实得面积约513㎡)

川派:千虹院 12-5#(建筑面积448.24㎡,实得面积约633㎡)

川派:虹霓院 13-2#(建筑面积370.09㎡,实得面积约514㎡)

【华侨城七十二院】售楼处热线:028-62671228 【营销中心】

预约咨询〢提前联系咨询售楼中心置业顾问〢进行预约登记来访!

预约优惠〢售楼中心置业顾问为您买房保驾护航〢—匠心钜制恭迎品鉴 !

全部

相关资讯

报名成功
稍后会有专业的置业顾问联系您
返回楼盘

频道导航

返回首页

看房小程序

APP下载

电话拨通后,请您手动拨打分机号

确定拨打电话

电话号码:

分机号:(可能需要拨分机号)