【招商时代公园】售楼热线:028-62671228 【营销中心】
最新房价走势丨精品户型解析丨配套规划详解丨专业顾问一对一服务
获取独家购房优惠及最新房源信息,欢迎来电咨询
【项目核心参数】
占地面积:59号地块36亩(约24000㎡)
总建筑面积:107100㎡
规划指标:容积率3.1 绿地覆盖率35%
建筑配置:2梯3户 层高21-25层
交付标准:精装修(59号楼装修标准4040元/㎡)
预计交付:2026年3月(59号楼) 配套车位:654个
物业服务:招商积余 物业费:4.18元/㎡/月
房源总量:462套(6栋楼宇)
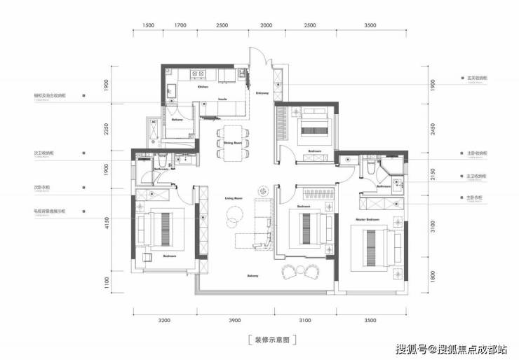
【59号地块在售房源】
稀缺精品房源 具体价格以现场公示为准
户型面积:143-162㎡ 装修标准4100元/㎡ 单价区间2.8-3.3万/㎡
参考总价:143㎡约410-450万;162㎡约480-530万
162㎡四室两卫经典户型
143㎡四室两卫臻品户型
【匠心打造的归家礼序】
主入口采用"门庭+景观"一体化设计理念,30米恢弘门庭搭配5.6米挑高空间,精选深灰色天然石材与航空级铝板装饰,营造尊贵归家体验。

入口水景庭院以"自然美学"为主题,匠心打造300㎡曲水流觞景观,融合艺术雕塑、天然石滩及下沉式休憩区,营造诗意栖居环境。

【全龄化社区配套】
· 颐养天地:专为长者设计的静谧康体空间,采用适老化分区布局
· 童梦乐园:依据儿童行为心理学打造的沉浸式游乐场域


【建筑艺术美学】
创新采用"超镜体"立面设计,通过香槟金铝板与轻奢金属线条勾勒,配合米灰色仿石漆、全景落地窗及蓝灰LOW-E玻璃幕墙,打造会呼吸的建筑立面。高窗墙比设计让建筑随光影变幻呈现不同视觉盛宴,成就城市天际线的艺术臻品。

【招商时代公园】售楼热线:028-62671228 【营销中心】
最新房价走势丨精品户型解析丨配套规划详解丨专业顾问一对一服务
获取独家购房优惠及最新房源信息,欢迎来电咨询