中绿园领秀金沙楼盘动态|6月最新房价|热销户型→售楼处电话|优惠叠加|成交分析

搜狐焦点成都站

2025-06-15 15:58:07

购房群

买房如何避坑,加入购房群,看看他们怎么说

立即进群

中绿园领秀金沙】营销中心热线:028-62671228

最新价格公示丨臻品户型解析丨全维配套详解丨专业顾问一对一服务

致电售楼处,尊享限时购房礼遇与独家房源信息

【项目核心指标】

开发企业:成都中绿园置业有限公司(中国绿发成都子公司)

物业形态:高端住宅社区

建筑形态:低密小高层

区位优势:三环至绕城黄金地带

占地面积:约4.7万方

总建筑面积:12.4万方

容积率:1.8(主城稀缺低密住区)

绿地覆盖率:35%

总规划户数:570席

楼栋布局:21栋臻品楼宇

交付标准:国际品牌精装(具体以开发商公示为准)

主力户型:127-167㎡改善型居所

梯户配置:两梯两户私密尊享

物业服务:鲁能物业(4元/㎡/月)

车位配比:1:1.7(地下车位1015个)

预计交付:2025年6月

城西首获绿建二星认证的科技健康住区

2024城西改善置业标杆 央企匠著西贵藏品

品牌实力

黄金区位

全维配套

生态体系 | 一廊一河六园生态网

教育资源 | 全龄优质教育矩阵

交通体系 | 立体路网畅达全城

商业配套 | 四大商圈环抱

青羊万达(2km)/鹏瑞利广场(3km)/优品道广场(4.7km)/仁和春天(5.6km)

医疗资源 | 三甲健康护航

成都第一骨科医院(1.5km)/成飞医院(4.3km)/妇女儿童中心医院(5km)

产品亮点-1600㎡下沉式双会所|5000万级配套投入|

建筑美学 精工立面

创新运用金属铝板幕墙系统,塑造现代简约线条;全景落地窗设计,最大化引景入室

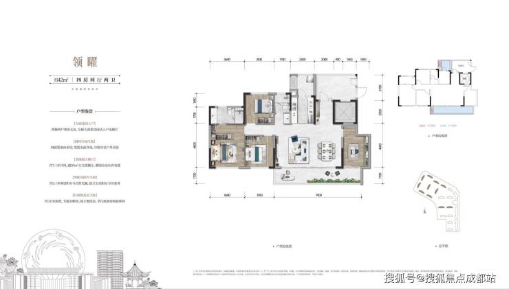
臻品户型解析

【中绿园领秀金沙】营销中心热线:028-62671228

最新价格公示丨臻品户型解析丨全维配套详解丨专业顾问一对一服务

致电售楼处,尊享限时购房礼遇与独家房源信息

全部

相关资讯

报名成功
稍后会有专业的置业顾问联系您
返回楼盘

频道导航

返回首页

看房小程序

APP下载

电话拨通后,请您手动拨打分机号

确定拨打电话

电话号码:

分机号:(可能需要拨分机号)