【龙湖天澜】售楼处电话:028-62671228 【营销中心】
楼盘实时价格丨户型赏析丨配套规划丨置业顾问在线咨询
获取最新房源动态及专属优惠,敬请致电售楼处
项目核心参数
占地面积:31亩(约20666㎡)
建筑面积:41333.54㎡
容积率:2.0(低密宜居)
绿化率:30%(生态社区)
产品类型:13-16层精装纯板式住宅
梯户配置:2梯2户(私密尊享)
层高标准:3米(阔绰空间)
物业公司:四川龙湖兴驿物业服务有限公司
物业费用:3.5元/㎡/月
交付时间:2026年4月30日
主力户型:128-143㎡(均配约12㎡入户花园)
稀缺产品:170㎡顶跃(带私家花园)
价格区间:首开单价19000-21000元/㎡
总价范围:250-280万起
区位价值解析
【东安湖板块 - 城市发展新极核】
作为"东进战略"核心引擎,东安湖板块突破传统环线束缚,依托产业集聚与生态资源优势,形成独立城市中心。区域内汇集世界级体育场馆、高端商业集群及优质教育资源,城市界面持续升级,已成为成都最具发展潜力的价值高地。

【双核商圈环绕的生态住区】
项目坐拥东安湖南岸CAZ核心区,北侧毗邻5000亩东安湖生态公园,南向对接龙湖东安天街(20万方)与吾悦广场双商业综合体,形成"北生态、南繁华"的黄金布局,实现自然静谧与都市繁华的无缝衔接。
全维生活配套
【商业配套】 600米直达龙湖东安天街,700米即达吾悦广场,2.5公里范围内覆盖万达广场,构建15分钟品质生活圈
【交通网络】 四横三纵主干道体系(蜀都大道/驿都大道/桃都大道等),800米接驳地铁2号线书房站,远期规划11/22/25号线
【教育资源】 全龄段优质学府环绕:向阳桥幼儿园/小学/中学、经开区实验中学(教科院领办)、成都市实验小学(和雅/乐雅校区),3公里内更有四川师范大学成龙校区等高校
【医疗资源】 1.6公里直达华西医院龙泉医院,4公里半径覆盖成都中医药大学附属医院龙泉医院等三甲医疗资源
【生态景观】 东安湖公园、驿马河公园、龙泉山城市森林公园三大城市绿肺环伺
【奢享归家动线 - 国际酒店级门庭】
汲取曼谷四季酒店设计精髓,打造东安湖板块首个超尺度酒店式归家门庭:
• 宝格丽御用蓝翡翠奢石立面
• 76米超尺度精奢石景墙
• 四季酒店同款环岛落客区
• 劳斯莱斯星空顶设计元素
• 4.2米挑高酒店式大堂

【建筑美学 - 未来主义曲线立面】
致敬建筑大师扎哈·哈迪德流体美学:
• 灵感源自龙泉山脉的自然曲线
• 大面积LOW-E玻璃幕墙体系
• 航空级超白玻单元大堂
• 铝板与石材的先锋组合
• 数字化全屏式立面语言

精品户型解析
B1户型 128㎡(四房两厅两卫)
• 独立玄关+动静分区设计
• 约6.8米LDKB一体化横厅
• 多功能X空间灵活可变
• 套房式主卧带独立衣帽间
• 约12㎡入户花园赠送

B2户型 143㎡(四房两厅两卫)
• 私家电梯厅尊享配置
• 约40㎡家族式聚厅
• 双套房可变空间设计
• 中西双厨+宽幕阳台
• 酒店式主卧系统

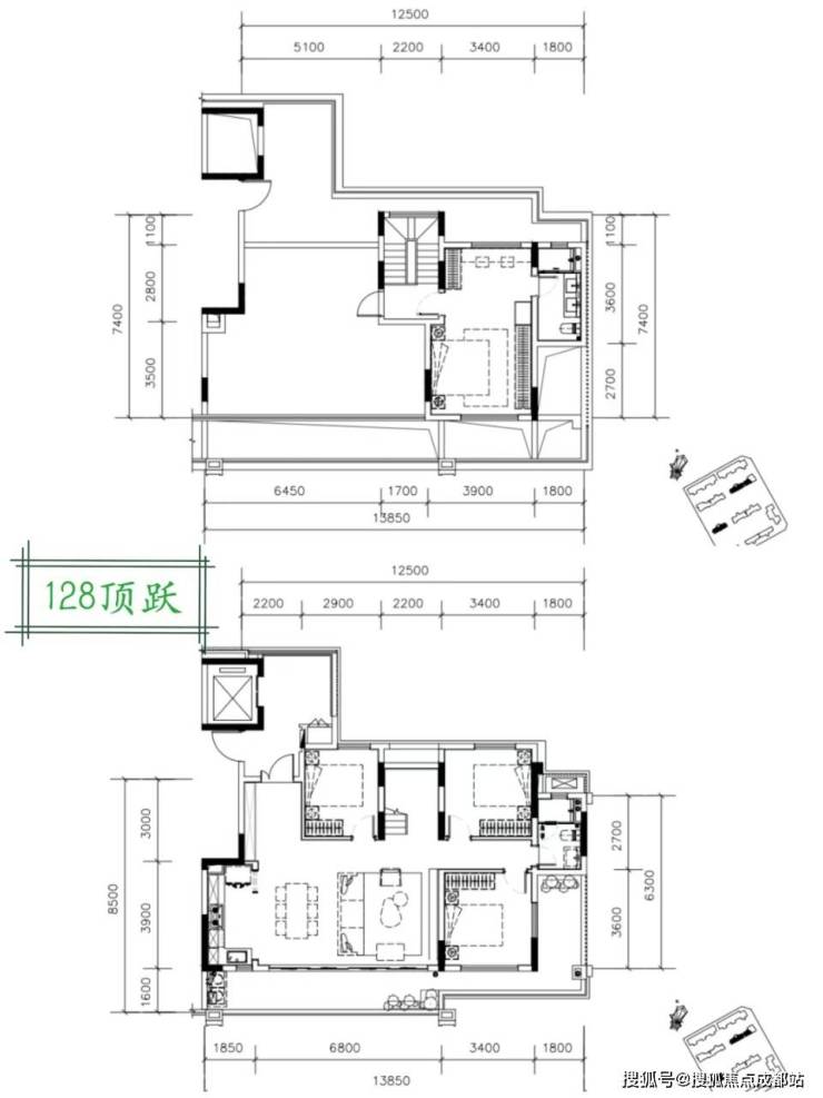
稀缺顶跃产品
128㎡顶跃户型
143㎡顶跃户型
【龙湖天澜】售楼处电话:028-62671228 【营销中心】
楼盘实时价格丨户型赏析丨配套规划丨置业顾问在线咨询
获取最新房源动态及专属优惠,敬请致电售楼处