「恒大天府半岛」售楼处热线:028-62671228 【营销中心】
预约优惠〢售楼中心置业顾问为您买房保驾护航〢—匠心钜制恭迎品鉴 !
【基本信息】
占地:131亩
楼栋:77-80(先开77号楼)
类别:高层
层高:32层
梯户比:3T4
面积:121-142平(1-2号房142平,3-4号房121平)
得房率:142得房率90%,121的89%
交付标准:精装修(地暖+新风)
装修标准:3200
预计单价:1.3-1.5W
公摊:23%
绿化率:35%
容积率:4.9
物业公司:金碧物业
物业费:3元/㎡
总套数:512套
交房时间:26年6月
麓湖旁三房双卫 首付20余万买进
类别:高层
梯户比:3T4

【区域价值】
天府新区高地 发展主轴产城宜居 超千亿级国家新区。2023年GDP总值4632.8亿元、增长6.9%,总量位列国家级新区第5。超千亿级国家新区,一带两翼一城六区城市形态基本形成,西部高端服务业中心、国家自主创新中心,四川省产业、经济、科技发展的新引擎,成都城市双核共兴的核心发展区域之一,是成都市城市发展的方向,山水人城和谐相融的公园城市。(数据来源:天府发布公众号)

占据绝佳地段 超阔视野无遮挡
7期在售楼栋位于一街之隔规划生态自然公园,家门口的活力健身场地,下楼漫享生活惬意,推窗即自然风景。
13000元/㎡起 抢入天新最后机会
本批次7期产品建筑面积约120-140㎡臻装美宅,咫尺醇熟锦江生态带、麓湖商圈,高配生态资源演绎轻奢人生。

【周边配套】
商业:超配醇熟配套 看得见的高端。约1公里直达麓坊中心,开启沉浸式公园购物体验,更可漫游至麓镇,享受度假生活。周边汇聚大型综合商业体,和悦广场、MKL美学生活中心,三利爱琴海、天府大悦城等,看得见的高端,漫享都市璀璨;同时,约98.7亩的五期地块将打造繁华街区(规划中),即刻开启缤纷购物。
教育:咫尺菁英学府 陪伴孩童成长。项目自建幼儿园、小学,实现目送式上学路,且毗邻成都市一级园——金苹果河畔新世界幼儿园,更好地启蒙孩子对世界的探索,待吊金滩人行天桥建成后,约2km内可直达天府新区优质学府,天府七中、天府八小、天府八中、成都实验外国语学校(西区),天府三小、天府四小、天府四幼等众多优质学府,参与更多公立私立学校摇号,给予菁英更多成长的土壤。
生态:城市公园林立 描绘鲜氧森活。咫尺3公里锦江生态带,天府森林公园、红石公园等诸多城市公园林立,湖光自然相伴,享受度假般的每一天。

交通:立体交通网路 出行快人一步。剑南大道、天府大道、牧华路、沈阳路构建两横两纵立体交通;同时临近地铁1号线(广福站),周边规划高铁天府站,预计2025年建成,全维度立体交通,兼顾事业与家庭。
医疗:健康医疗咫尺 满足健康需求。四川泰康医院,四川大学华西天府医院,天府新区人民医院,未来将进一步护航片区居民健康,多元化满足居民多层次健康需求。
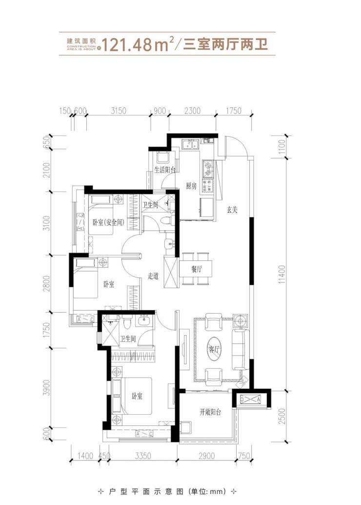
【户型鉴赏】
超阔三房
科学动静分区,全屋飘窗,阔尺会客厅与270°景观阳台相连,室内空间宽敞明亮;星级套房主卧私享静谧,次卧瞰景阳台,拓宽更多居家场景;
奢阔四房
餐厅厨阳台一体化设计,会客空间尊崇大气;星级套房主卧,独立衣帽间私密自成天地。
「恒大天府半岛」售楼处热线:028-62671228 【营销中心】
预约优惠〢售楼中心置业顾问为您买房保驾护航〢—匠心钜制恭迎品鉴 !