【川发天府上城】售楼处热线:028-62671228 【营销中心】
02862671228
预约咨询〢提前联系咨询售楼中心置业顾问〢进行预约登记来访!
预约优惠〢售楼中心置业顾问为您买房保驾护航〢—匠心钜制恭迎品鉴 !
----------------------------
天府新区·城市界面·约350亩人文大城
精装实景现房,所见即所得,即买即交付
项目基本情况:
在售范围:A、C区已交付,在售B区
9.11.13栋:136㎡,159㎡
14.15栋:141㎡,142㎡
面积:136-141-142-159㎡
价格:预计2.2-2.4万
容积率:3.9,绿化率:35%
梯户比:2梯3户,总层高:18层
公摊:16-19%,物业费:3.5元/㎡
交付标准:精装(带三大件,装标2998元)
交付时间:现房
|品牌价值| 川行万里·与城市共发展
四川发展土地资产运营管理有限公司(即川发置地)成立于2009年,是四川发展(控股)有限责任公司重点打造的房地产板块重要子企业;公司以国际视野布局四川,十数年深耕力造优品项目,2019年10月打造开发的川发·天府上城入市至今,住宅已实现六开六罄的骄人成绩。

|区位价值| 成都向南·豪门新贵之地
川发·天府上城坐落于成都“南贵”——天府新区,区域内生态基底已成型,总部汇聚之姿已呈现,国际消费新中心定位下的商圈矩阵已逐步建立完备。2022年四川天府新区地区生产总值增长约4%,稳居国家级新区第一方阵。寸土寸金的天府新区,拥有了新地标、新产业、新中心、世界一流商业、高纬度轨道交通网、公园城市理念等多核增长极,发展势头强劲,成都无区域可匹敌。

|地段价值|天府新区“首熟区”· 品牌房企云集
川发·天府上城位于天府新区“首熟区”,扼守锦江生态带核芯位置。锦江生态带在天府新区崛起进程中已实现“进化”,成长为天府新区难得的已成熟的纯粹居住区域,承接着主城外溢的高知高智产业人群与改善居住人群。
如今品牌房企聚集于此,绿城、华润置地、中国铁建、建发、中海、万科、德商等都已入驻,在区域内打造了数个高品质的改善项目,成为推动区域兑现与成熟、提升区域城市界面的重要力量。

「交通」四纵三横双地铁
四纵三横双地铁,地铁5号线南湖立交站距离本案步行772米(数据来源:高德地图);临近地铁19号线牧华路站(在建中)。
「商业」3分钟城市级商业圈
下楼即缤纷社区商圈;3公里城市级商圈(天府环宇坊、右岸环宇坊、翡翠万科里等);约30分钟车程内涵盖城南国际潮流商圈(银泰城、铁像寺水街等)。

「生态」一江两湖三公园,绿动城南心
一江:锦江
两湖:怡心湖、南湖
三公园:南湖公园、现代五项赛事中心、天府公园
怡心湖占地约8.4平方公里、水域面积约1000亩、滨湖生态廊道长达10公里;南湖公园占地约6000亩,投资超过10亿元,是集文娱、拍摄、休闲、运动、旅游等功能为一体的开放式公园群;天府公园定位为天府新区景观门户,总占地约1.5平方公里,其中水体面积约44.3平方米。

「教育」三幼五小四中学,师资力量雄厚
三幼:天府一幼、天府二幼、天府十三幼
五小:天府三小、天府四小、华阳小学、天府十小、天府十二小
四中学:天府四中、天府七中、华阳一中、石室中学天府新区新校(建设中)
天府三小由成都公立小学“五朵金花”之一的龙江路小学领办,2017年已开学;天府四中是全省第一所公办的K12制学校;天府七中是原成都七中副校长建立的私立学校

「医疗」医疗升级 守护更安心
四川大学华西医院天府医院、成都京东方医院环伺左右。高品质三级综合医院四川泰康医院距项目仅一街之隔,已于2023年8月20日开诊。共同构建起天府城南强大的医疗体系,是您的健康守护保障。(所示信息来源于四川康泰医院官微)

「精装体系」“美好生活+”四大精装体系,精雕细琢几十项细节
精筑舒居:美的中央空调/全屋地暖/方太厨房烟机灶具消毒柜/定制陶瓷薄板仿石材背景墙……
精筑健康:美的新风系统/几十项适幼适老细节设计……
精筑便捷:全屋智能家居体系/极窄边框吊轨推拉门……
精筑收纳:玄关收纳柜/隐藏式换鞋空间/专业化全屋收纳体系……

|现房|
实景现房,已于2023年8月实现交付。精工品质,眼见为实,美好生活零等待。
川发·天府上城 实景交付(交付组团实景拍摄)



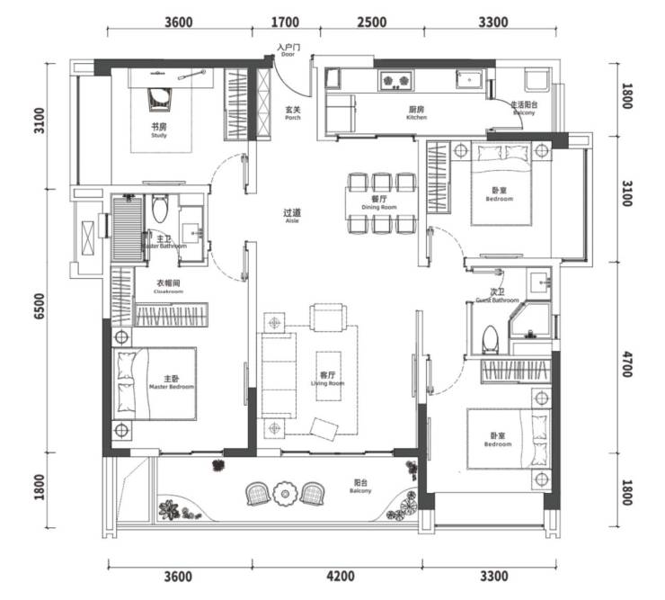
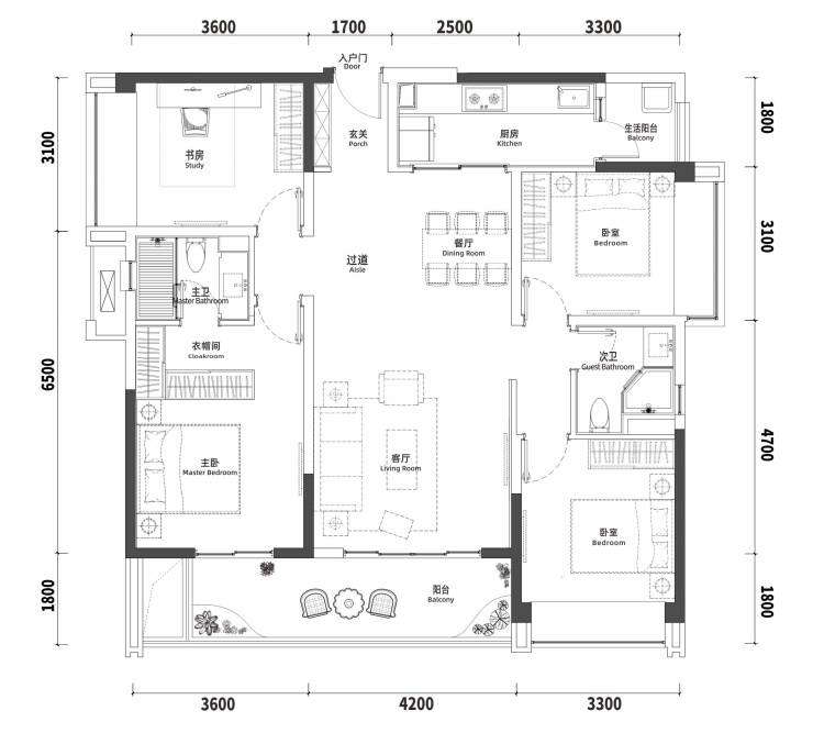
「户型鉴赏」(户型装修示意图,具体以实际为准)
K1 建面约136㎡ 四室两厅两卫
H2 建面约141㎡ 四室两厅两卫
H1 建面约142㎡ 四室两厅两卫
K2 建面约159㎡ 四室两厅两卫
【川发天府上城】售楼处热线:028-62671228 【营销中心】
预约咨询〢提前联系咨询售楼中心置业顾问〢进行预约登记来访!
预约优惠〢售楼中心置业顾问为您买房保驾护航〢—匠心钜制恭迎品鉴 !