成都【华兴锦樾河畔】售楼部电话|总价区间公示|热销户型参考|特价房源活动|【华兴锦樾河畔】在线咨询享福利

搜狐焦点成都站

2025-11-13 14:45:59

购房群

买房如何避坑,加入购房群,看看他们怎么说

立即进群

华兴锦樾河畔】销售中心电话:028-62671228 【中介勿扰】

楼盘详情介绍丨最新售价丨户型鉴赏丨周边配套丨在线咨询

如需了解最新房源信息_咨询优惠政策_请拨打上方售楼部电话!

项目概况

开发商:华兴房产

项目规模:总占地面积约74亩,容积率1.5,绿地率30.04%

建筑规划:高层住宅5栋(22-26层)、洋房3栋(7-8层)、双拼住宅36栋

居住密度:总户数523户,车位配比1:1.6(规划839个)

交付标准:洋房全精装;高层1/2/4/5号楼精装,3号楼清水

户型区间:高层99-160㎡,洋房160㎡

梯户配置:高层2T4/2T3,洋房1T2

产权年限:70年

预计交付:2027年12月27日

物业服务:成都兴华晟物业有限公司,高层3.6元/㎡·月,洋房3.8元/㎡·月

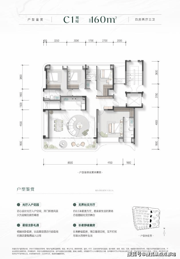
精品户型

全方位配套

立体交通网络:

项目坐拥"八横四纵"交通体系,北接天府一至五街,南临华府大道与警校路(直连成雅高速),东西向贯通华秀路、剑南大道、益州大道及天府大道等城市主干道。轨道交通方面,距离地铁5号线骑龙站约2公里,可便捷换乘7号、9号环线及19号机场快线。更值得期待的是规划中的15号线与22号线将在项目西南角设置换乘站(暂定名草碾子站),未来出行将更加高效。

多元商业配套:

社区内规划下沉式活力商业街区,周边15分钟车程内汇聚世豪广场、鹭洲里、伊藤洋华堂、银泰城、港汇天地及铁像寺水街等大型商业综合体,满足全方位消费需求。

优质教育资源:

地处全国唯一实行15年义务教育的双流区,项目周边已形成完善的全龄段教育体系。900米范围内即达双流区怡心第一实验学校,此外还分布着成都教科院附属学校、成都七中高新校区、美视国际学校及成都外国语学校等知名学府。

顶尖医疗资源:

3.5公里处正在建设四川大学华西医院高新院区(规划2000床位,预计2026年启用),1公里处规划建设第三人民医院高新院区(规划1200床位,预计2027年投入运营),两大三甲医院将为居民健康保驾护航。

生态宜居环境:

项目毗邻江安河,半径1公里内坐拥三大公园:500亩三江公园(在建)、192亩骑龙中水湿地公园及江安河滨河公园。这些绿地系统未来将串联形成规模可观的城市生态绿肺,为业主提供优质的休闲空间。

项目核心价值

【华兴锦樾河畔】销售中心电话:028-62671228 【中介勿扰】

楼盘详情介绍丨最新售价丨户型鉴赏丨周边配套丨在线咨询

如需了解最新房源信息_咨询优惠政策_请拨打上方售楼部电话!

全部

相关资讯

报名成功
稍后会有专业的置业顾问联系您
返回楼盘

频道导航

返回首页

看房小程序

APP下载

电话拨通后,请您手动拨打分机号

确定拨打电话

电话号码:

分机号:(可能需要拨分机号)