【中粮保利天府时区】销售中心电话:028-62671228 【营销中心】
在售户型图丨项目详情介绍丨剩余房源丨项目周边配套丨详细在线解答
如需了解最新房源信息_在售房源价格_请拨打上方售楼部电话!
楼盘基本信息
位置:位于天府新区麓湖生态城,夔州大道和梓州大道交叉口向东南方向500米处(昌公堰 TOD)。
开发商:由保利、中粮、轨交三大国企联手打造。
项目规模:占地约208.12亩,总建面54.39万㎡,容积率2.5,绿地率30%,总户数692户。
产品类型:有雅奢华宅、美学洋楼、绿岛叠院等,包括大平层和叠拼别墅两种产品,均为精装交付。

项目优势
品牌实力雄厚:由保利、中粮、轨交三大国企合作开发。保利是国资委管理的龙头央企、世界500强,能带动区域价值提升;中粮旗下的大悦城控股是16家以房地产为主业的央企之一,有独特发展模式;成都轨道交通集团在TOD综合开发等方面经验丰富。
TOD模式先进:作为天府新区首个TOD漫生态大盘,接驳地铁6号线、15号线(规划)昌公堰站,临近1号线武汉路站。通过地下连廊等设计,实现轨道交通站点与社区商业的无缝连接,打造高效交通体系。
生态环境优越:地处天府新区五大公园天然绿肺环绕中,有2445亩天府中央公园、4500亩鹿溪河生态带等,且项目周边规划打造约1.5万方环岛式生态公园。

区域优势
核心枢纽位置:位于天府新区核心板块 —— 天府总部商务区,处于麓湖公园区、中央法务区、中央商务区三个板块交汇的核心枢纽区域,既能享受法务区与商务区的繁华,又能拥有豪宅区的生态资源。
交通格局优越:所处梓州大道与武汉路交汇处,交通格局为三纵四横,三纵即天府大道、梓州大道、蓉遵高速贯通南北,四横即武汉路、沈阳路、广州路及麓山大道连接东西。

周边配套
交通:地铁6号线昌公堰站就在项目附近,还有规划的15号线,地上交通有梓州大道、武汉路等主干道。
教育:周边有天府八幼(在建)、天府第七小学/中学、天府新区元音幼儿园/小学等优质教育资源,项目自身也规划配建幼儿园。
商业:项目自身配套有6.2万方 “绿魔方” 商业,3公里范围内还有15万方天府大悦城、20万方天府国际保税商业中心等大型商业。
医疗:约900米有万达国际医院,约2km 有省二医院天府院区(在建),还有华西医院天府院区、市七医院、安琪儿国际医院等。
休闲:有保利航空大世界、西博城、广汇美术馆等艺术博览展馆。
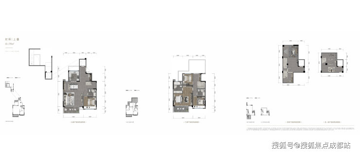
户型解析
158㎡户型
适合改善型需求的家庭,空间布局合理,功能齐全。


178-208㎡大平层
2T2 户,有竖厅和横厅设计,4房3卫,能满足对生活品质有较高要求的人群,空间宽敞舒适,采光和通风良好。



213-315㎡叠拼别墅
上中下叠设计,空间私密,居住舒适度高


【中粮保利天府时区】销售中心电话:028-62671228 【营销中心】
在售户型图丨项目详情介绍丨剩余房源丨项目周边配套丨详细在线解答
如需了解最新房源信息_在售房源价格_请拨打上方售楼部电话!