龙湖光年首页网站_售楼处电话_6月成交价_户型图_项目详情_楼盘动态

搜狐焦点成都站

2025-06-21 20:35:46

购房群

买房如何避坑,加入购房群,看看他们怎么说

立即进群

【龙湖光年】售楼处电话:028-62671228 【营销中心】

楼盘实时价格丨户型赏析丨配套规划丨置业顾问在线咨询

获取最新房源动态及专属优惠,敬请致电售楼处

基本参数

叠墅(40年)

下叠面积:129平

花园面积:60-80平

总价:520万起

中叠面积:148平

露台面积:22平

总价:350万起

上叠面积:148平

屋顶花园:80平

总价:420万起

层高:3.4-3.1m

物业费:5元/㎡

交房时间:2025年6月30日

3.合院(40年)

面积:180平(共2层)

总价:700-900万

花园面积:55平

赠送实得:500平

层高:1楼6.5m,2楼3.35m

物业费:7元/㎡

交房时间:2025年6月30日

公摊:15%

容积率:2.5

绿化率:20%

【龙湖光年十大必买理由】

1.占据城市发展方向,东进新起点

2.与攀成钢,金融城,构筑“黄金三角”

3.行政学院 TOD 核心位置,尽享配套红利

4.公园环抱,拥有最极致生态资源

5.东南3.5环,双地铁覆盖,交通便捷

6.天街+TOD,更新城市格局

7.龙湖品牌:资金链稳健

8.钻石级物业保驾护航

9.多业态布局,尽享繁华生活

10.双华西医疗,繁华商圈聚集

-------------

龙湖·在中国

龙湖于1993年成立于重庆,中国地产综合实力排行TOP10,总部设立在北京朝阳区,业务涵盖地产开发、商业运营、智慧服务、冠寓、塘鹅租售、装修等

在成都开发49个项目,包括了11座天街+1座星悦荟。作为航道之一的商业运营打造21年,推出天街,星悦荟,家悦汇三大品牌。作为中国商业运营先驱。资金链稳健,民营头部房企。龙湖所在的地方是整个区域的产品标杆,强大的运营能力,选址城市中心位置,交通商业医疗资源政策的多维度汇集城市资源。

龙湖:城市发展运营商

TOD即成都未来,买房就买TOD

成都:行政面积1.4万平方公里,常住人口2100万,GDP20000亿元,全国第三个拥有双4F国际机场城市,位列全国新一线榜首。TOD:以公共交通为导向的开发模式,以交通架构、居住、商业、休闲、文化、医疗等功能组织,优化城市运行,打造5分钟经济生活圈。

行政学院TOD】成都首批示范项目建设范本:规划一核一心两轴三组团,引领高效低碳便捷的城市生活方式。

国家东进战略】

2020年,“ 成渝双城经济圈 ”正式上升为国家战略,中国经济呈现出四足鼎立的崭新格局。直此风口,本就是投资的绝佳时机。

作为成都十字方针之首的“东进”战略,正是构建成渝地区双城经济圈新支点的重大战略举措,顺应「成都向东,重庆向西」的融合发展。

【行政学院TOD】

攀成钢2.0,金融城3.0

承载城市换仓,蝶变城市新中心

行政学院,正值东进新起点的位置,连接主城区与东部新城,与攀成钢,金融城构筑黄金三角,东大街门户地标。

龙湖光年

约258亩战城一体化大城钜著

演绎大都会璀璨生活

【便捷交通】:紧临东大街外延线,地铁2/9号线全城换乘,距离东客站4站,攀成钢6站,春熙路10站,金融城5站(9号线规划中),20分钟直达城芯。

【城市地标】:龙湖打造光年魔方180米高层建筑,蜀峰468,勾勒城东天际线。

【繁华商业】:以龙湖光年为中心,自持14万方驿都天街,周围绿地468,伊藤洋华堂亚洲旗舰店,华熙528,万科里等商业氛围浓厚。

【绿色生态】:配套12个中央绿芯公园,紧邻约30000亩青龙湖生态公园、15000亩三圣花乡,玉石湿地公园,背靠环城生态带等

【完善医疗】:四川大学华西第二医院锦江院区,四川大学华西医院(在建),华西口腔医院,成都唯一3华西配置

【教育资源】:成都市盐道街小学,成都树德小学,成都树德中学(外国语小学),七中育才学校(银杏校区),行政学院,项目周边规划幼儿园,小学.

【4大璀璨业态】

光年天玺,墅级产品及低密平层

光年魔方,约180米城市封面地标

光年熙街,星光商业街,享百万客流

驿都天街,成都第11座天街,约14万方

项目首开

阔景叠院

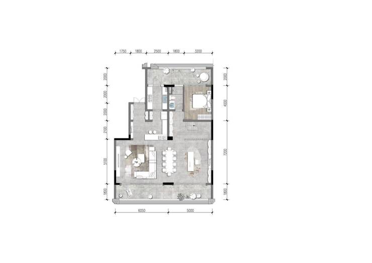
建面约128-147平,超大花园赠送,纵享星空露台,龙湖匠心打造,仅18席钜献城东

下叠:

中叠:

上叠:

公园合院

建面约180平,超级稀缺业态,主城仅此唯一,顶天立地,超大花园,满足生活想象,仅17席礼献都市精英

建面约185-288平,尽享都市配套

上叠188平

中叠185平

下叠288平

【龙湖光年】售楼处电话:028-62671228 【营销中心】

楼盘实时价格丨户型赏析丨配套规划丨置业顾问在线咨询

获取最新房源动态及专属优惠,敬请致电售楼处

全部

相关资讯

报名成功
稍后会有专业的置业顾问联系您
返回楼盘

频道导航

返回首页

看房小程序

APP下载

电话拨通后,请您手动拨打分机号

确定拨打电话

电话号码:

分机号:(可能需要拨分机号)