成都【蔚蓝湖滨中心】售楼处电话|最新售价参考|在售户型图集_面积段展示|优惠活动_特价房源|项目详情快速了解

搜狐焦点成都站

2025-11-08 10:48:09

购房群

买房如何避坑,加入购房群,看看他们怎么说

立即进群

【蔚蓝湖滨中心1号】售楼处热线:028-62671228 【营销中心】

预约咨询〢提前联系咨询售楼中心置业顾问〢进行预约登记来访!

预约优惠〢售楼中心置业顾问为您买房保驾护航〢—匠心钜制恭迎品鉴 !

【项目参数】

占地:怡心湖占地1400亩 湖面占地500亩

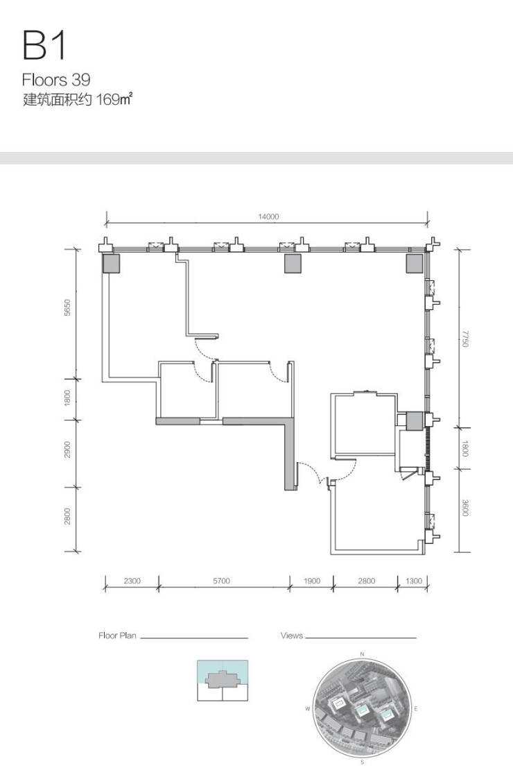
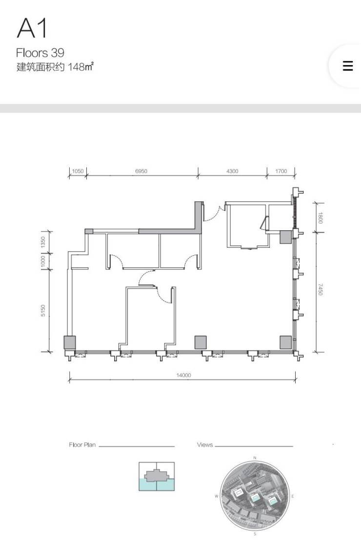
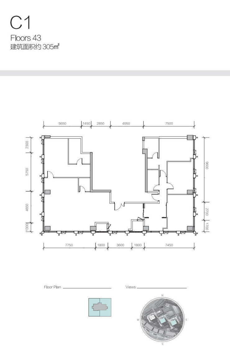
面积:148-169 平、305平

价格:2-3万 总价区间 350-420万

物管费:6元

公摊:26%

梯户比:3T4户

付款方式:按揭5成、全款

交付标准:精装

交房时间:2024年底

本次推出 A 区 2、3 栋产品,首批次仅剩余50套房源。2、3 栋都是 3 梯 4 户布局,每个户型均享受 270 度采光。

【区域价值】

成都向南发展的大方向是众所周知的,而向南发展的进程中呈现了特别明显的干道经济格局,沿着天府大道的高新南区和国家级新区天府新区都取得了令人瞩目的成绩,但同时,随着城市发展的进阶以及人口的增长,已经出现了中轴饱和,土地资源稀缺等发展瓶颈。在这样的城市发展进程下,怡心湖作为大天府新区的范畴,崛起是必然的趋势,也是成都作为国家级中心城市发展赋予的使命。怡心湖区域整体规划呈 7 字形分布,处于“四横三纵”的交通网络中。是成都向南发展最热门的片区之一。从区位上看,怡心湖“东接天府新区直管区,西侧连空港高新技术产业功能区,南临成都天府国际生物城,北靠五环路,东南西北均是成都最优质的资源,区位优势十分明显。我们可以看到,从华府板块开始,经双流航空自贸区南下,怡心湖、牧马山、天府国际生物城等重磅板块一路串联,拥有非常强的城市发展导向。并且怡心湖正好处在核心枢纽湖区的位置。沿剑南大道往北驾车 15 公里直达高新区金融城。沿五环路往东驾车 8 公里直达天府新区总部商务区。

交通:5 号线、19 号线交汇站点

从这里乘坐 19 号线 10 分钟抵达双流国际机场,30 分钟抵达天府国际机场。众所周知,成都和北京是全国仅有的两座双 4F 机场的城市。 5 号线已经开通,从这里乘坐地铁仅 6 站可以抵达高新区锦城湖。

配套:整个天府怡心湖板块秉承配套先行的理念,目前商业配套已经非常成熟。蔚蓝卡地亚打造的文化艺术中心、双五星级酒店、北岸商业、南岸商业、以及地铁商业还有旁边的红星美凯龙、日航酒店、伊藤洋华堂、中海环宇坊等,都为这里提供了丰富的艺术配套、生活配套、购物休闲配套。8 公里车程到天府新区的大悦城、蔚蓝卡地亚打造的花园城国际度假中心、以及凯悦酒店和安达仕酒店。

【产品价值】

由于整体规划亮点,每个组团的均好性非常强,各具优势。国际化生活方式的构建不仅要有优雅宜人的景观环境,还需营造出友善、健康的观念和社群意识。

首批次推出的湖滨 1 号,位于东区 A 区,楼下就是地铁 5 号线、19 号线站点,北侧 100米处是文化艺术中心,东北紧邻 6.5 万平米叠水公园,与公园湖景仅 200 米直线距离。是非常绝佳的位置。

「蔚蓝湖滨 1 号」可享受三重配套:

第一重:公共配套——怡心湖片区的交通、购物、酒店配套,以及驱车 10 分钟即可享受到高新区或天府总部商务区的购物、休闲、商务配套。

第二重:湖滨城市配套——下楼即可享受蔚蓝湖滨城打造的文化艺术中心、双五星级酒店、南岸商业和地铁商业,A 组团紧邻文化艺术中心,到达湖面北侧直线距离仅 200 米。东北侧紧邻跌水公园私享 6.5 万平米的城市绿洲;南侧紧邻地铁 5 号线、19 号线出口,与地铁无缝接驳。下楼即拥有公园、文化艺术、商业、地铁轨道交通等丰富配套。

第三重:专属配套——蔚蓝湖滨 1 号业主的专属配套:3 万平米中庭景观,长达 25 米独立泳池会所、极具仪式感的五星级入户大堂,并配以健身房、咖啡区、阅读空间等。

【户型图】

【蔚蓝湖滨中心1号】售楼处热线:028-62671228 【营销中心】

预约咨询〢提前联系咨询售楼中心置业顾问〢进行预约登记来访!

预约优惠〢售楼中心置业顾问为您买房保驾护航〢—匠心钜制恭迎品鉴 !

全部

相关资讯

报名成功
稍后会有专业的置业顾问联系您
返回楼盘

频道导航

返回首页

看房小程序

APP下载

电话拨通后,请您手动拨打分机号

确定拨打电话

电话号码:

分机号:(可能需要拨分机号)