三亚【半山首府】💠售楼处电话☎️400-033-1899分机号7777【售楼中心】【已认证】
三亚【半山首府】💠营销中心电话📞400-033-1899分机号7777【置业顾问】【已认证】
【2025首发】楼盘详情含开盘消息、交房时间、楼盘详情、房价、户型、详情、得房率、售楼处地址、首页网站、销售中心、楼盘地址、户型图、交通、备案价、项目配套、营销中心、周边配套等详情咨询。
【项目区位】
享繁华三亚,居半山豪宅
非凡自然,向来是塔尖人群所向往和追求的理想境界。山的伟岸,海的澎湃,极致境界造就非凡居所。
三亚·半山首府择址大东海榆亚路中段,拥半山而立,坐享世界级湾区。于此,停泊世界的意志,达成“人生至此不远游”的臻我境界。
(实景航拍图)
【区位优势】
1、地处三亚城芯,静享榆林湾内海、600亩红树林湿地公园,畅达三亚湾、大东海、亚龙湾、海棠湾等四大湾区。
2、毗邻红沙隧道,距高铁三亚站、亚龙湾站约8公里,距环岛高速约10公里、距凤凰机场约20公里,30分钟通达全城,立体化交通保障全岛便捷出行。
3、紧邻大东海商圈核心,坐享夏日百货、1号港湾城、鸿港新城等缤纷商业,5分钟生活圈,轻松享有。
【低密社区】3栋低密纯板高层建筑,一字布局,户户坐北朝南,皆享20㎡超大观景阳台180°瞰海观山的极致视觉,海天山色尽收眼底。1.35绝版超低容积率只为成就223席高端舒适的完美胜境。
三亚【半山首府】💠售楼处电话☎️400-033-1899分机号7777【售楼中心】【已认证】
三亚【半山首府】💠营销中心电话📞400-033-1899分机号7777【置业顾问】【已认证】
(实景航拍图)
【项目自身配套】1、社区打造约3000㎡专属社区生活体系—私享会客厅、轻氧健身房、艺术书吧、童心乐园、半山茶舍、悦海堂、商务休闲吧、声乐琴房、棋牌室等主题会所,让业主融入自然,回归生活,去追寻本应享受的生活精彩。2、园区打造超大半山镜面无边际泳池,儿童嬉戏区,同时满足成人与儿童的多样化需求,畅享365天度假生活。3、金的物业提供全程酒店式星级服务,社区智能化安防体系。
(实景航拍图)
周边配套
位置:择址大东海榆亚路中段,地处三亚城芯,静享榆林湾内海、600亩红树林湿地公园,畅达三亚湾、大东海、亚龙湾、海棠湾等四大湾区,拥半山而立,坐享世界级湾区。
交通:毗邻红沙隧道,距高铁三亚站、亚龙湾站约8公里,距环岛高速约10公里、距凤凰机场约20公里,30分钟通达全城,立体化交通保障全岛便捷出行。
生活:紧邻大东海商圈核心,坐享夏日百货、1号港湾城、鸿港新城等缤纷商业,5分钟生活圈,轻松享有。距离旺豪超市(红沙店)1.3公里;红沙农贸市场1.7公里;新鸿港批发市场2.9公里。
医院:三亚精康医院1.7公里。
学校:吉阳区红沙小学1.6公里;红沙中学1.5公里;鲁迅中学2.3公里;幼儿园十余所(2公里内左右)。
【六大卖点】
1、现房发售 即买即住 市中心低密通透纯板现房,精装交付所见即所得
2、市区仅有在景区旁的港式豪宅国家4A级景区凤凰岭东麓,负氧离子含量高达每立方厘米5000~10000个,是日常环境的2.5倍。
3、揽山观海墅级府邸 景观:背靠凤凰岭、面朝榆林湾;前后左右环山伴水; 背靠青山“有靠山”,面朝水流“有财来”。
4、600亩生态湿地景观紧邻红树林生态湿地保护区, 200米视线静赏白鹭成群,园区内近距离观看国家二级保护动物猕猴。
5、高端品质康养社区 近20㎡观景阳台,“零”楼间距,“壹”容积率,1.8万㎡原生态园林景观,近“百分百”绿化率。
6、甄选一线奢装品牌8000元/㎡奢华装标,配有德国高仪、杜拉维特、欧瑞博智能家居等国内外一线品牌。



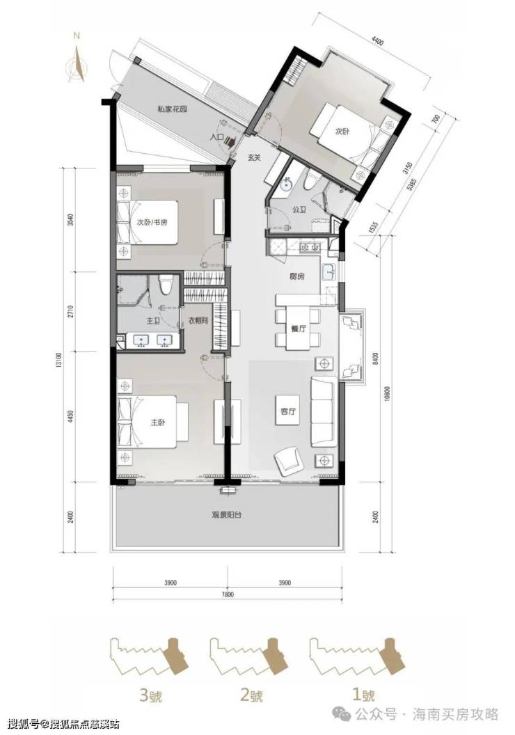
低密纯板揽山瞰海
A户型133㎡三房两厅两卫
全明户型通透格局,尊崇居家彰显非凡。
悦享20㎡观景阳台,户户南向180°观景面。
舒雅南向套房主卧,独立衣帽间、双手盆设计、干湿分离。
独立入户花园,让全家人的出入都尊享从容。
低密纯板揽山瞰海
B户型103㎡两房两厅两卫
南北通透、空间方正,惬意享受阳光海风的馈赠。
悦享20㎡观景阳台,户户南向180°观景面,闲情雅趣,诗意生活。
餐客厅双厅设计、厨房方正、宜中宜西,上演美食盛宴,尽显居家仪式感。
主次卧独立卫生间、生活起居互不干扰,从容切换。
低密纯板揽山瞰海
C户型134㎡三房两厅两卫
通透格局,空间动静合理。
悦享20㎡观景阳台,户户南向180°观景面
奢阔南向主卧,独立衣帽间、双手盆设计,干湿分离,自在从容。
L型厨房,开放式中西厨兼具,肆意挥洒私房厨艺。
【豪奢户型】
低密纯板揽山瞰海
A+B户型:236㎡5房4厅4卫
【豪奢户型】
低密纯板揽山瞰海
B+C户型:237㎡5房4厅4卫
1#楼标准层平面图
2#楼标准层平面图
3#楼标准层平面图
三亚【半山首府】💠售楼处电话☎️400-033-1899分机号7777【售楼中心】【已认证】
三亚【半山首府】💠营销中心电话📞400-033-1899分机号7777【置业顾问】【已认证】