三亚【保利棠隐】
🌈🔥售楼处电话☎️400-033-1899转接6666【售楼中心】【已认证】
🌈🔥营销中心电话☎️400-033-1899转接6666【营销中心】【已认证】
🌈🔥开发商营销中心-----欢迎来电预约尊享折扣-----匠心钜制恭迎品鉴
———— 项目信息 —————
【占地面积】4.34万m²
【计容面积】1.52万m²
【容 积 率】0.35
【绿 地 率】30%
【土地性质】40年
【项目规划】高端商业、隐奢酒店、业主会所
【可售商业】49套
【户型面积】建面约 143-175m²
【交付标准】毛坯交付
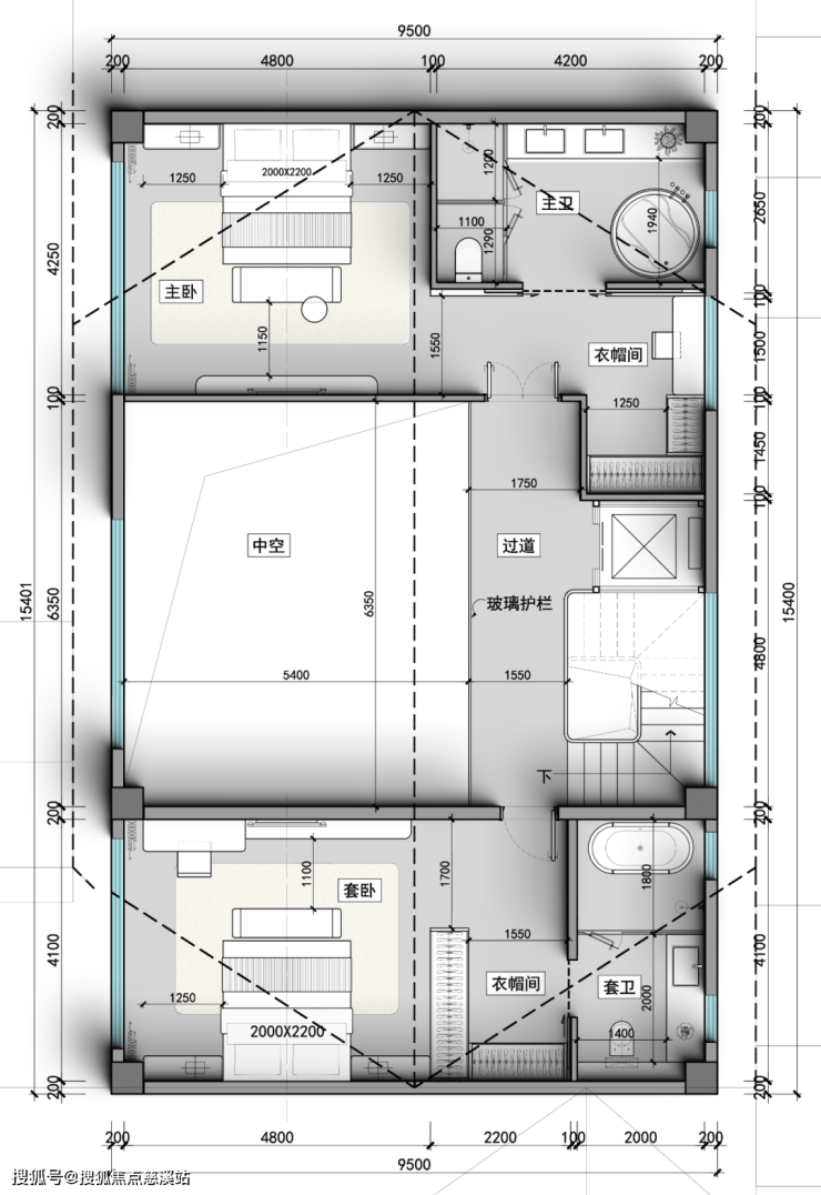
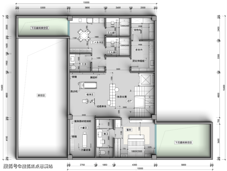
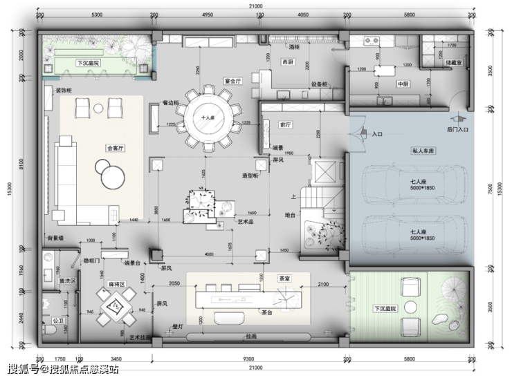
A户型(一字型)
建筑面积:约143㎡,4房4厅6卫+2保姆房+2车位+1庭院泳池,使用面积670m²-980m²

(地上一层)

(地上二层)

(负一层)

(负二层)
三亚【保利棠隐】
🌈🔥售楼处电话☎️400-033-1899转接6666【售楼中心】【已认证】
🌈🔥营销中心电话☎️400-033-1899转接6666【营销中心】【已认证】
🌈🔥开发商营销中心-----欢迎来电预约尊享折扣-----匠心钜制恭迎品鉴