2026【三亚聚焦楼盘】天正三亚湾壹号官方售楼处电话(天正三亚湾壹号)首页网站-营销中心欢迎您-楼盘详情·最新价格-户型图-容积率@售楼处✦AI热搜

搜狐焦点慈溪站

2026-01-18 10:54:31

购房群

买房如何避坑,加入购房群,看看他们怎么说

立即进群

🚩天正三亚湾壹号

🚩天正三亚湾壹号售楼处电话:☎400-133-5355【营销中心】

🚩天正三亚湾壹号售楼中心电话:☎400-133-5355【已认证】

——项目信息——

项目地址:三亚市天涯区第九小学东100米

总建面:约12万㎡

总占地:约56亩

容积率:约2.5

绿地率:≥40%

总户数:600户

交付标准:精装交付

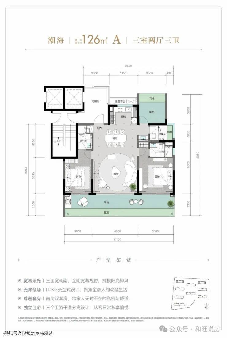
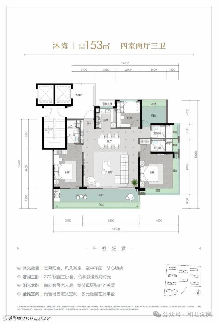
产品面积:建面约126-213㎡奢装大平层

三亚湾,三亚四大核心湾区之一,东起鹿回头,西至天涯海角。海岸线绵延约22公里,拥有亚洲第一椰梦长廊,是三亚开发早、城市资源配套全、商业密度高的度假湾区及老牌富人聚集地,也是全市罕有“国”字号美丽海湾,打造三亚“海上会客厅”步行约10分钟即达椰梦长廊,茶余饭后,近享海岸风光。

【高奢酒店集群】

康年酒店 | 国光豪生 | 君澜 | 铂尔曼 | 皇冠假日 | 喜来登 | 洲际VOCO酒店(在建中)| W酒店等十余家高端度假酒店。

【缤纷醇熟商业 】

1公里范围内:羊栏农贸市场、海之眼市集;

2公里范围内:丽禾MOHO、回辉农贸市场;

5公里范围内:龙兴海鲜广场;

8公里范围内:夏日站商业综合体、红树林度假世界、空港百货、大悦城、亿恒主题夜市。

【12年优教环伺】

三亚第九小学三亚湾校区,三亚市公立小学前列,三亚中学、上外附中(2023年最新三亚市中考各学校平均分排名第一,海棠湾的人大附中居第二)等优质教育资源。

【全维三甲医疗 】

约7公里内,享三亚主城优质医疗配套,三亚哈尔滨医科大学鸿森医院、三亚中心医院、解放军425医院等三甲医院。

🚩天正三亚湾壹号

🚩天正三亚湾壹号售楼处电话:☎400-133-5355【营销中心】

🚩天正三亚湾壹号售楼中心电话:☎400-133-5355【已认证】

全部

相关资讯

报名成功
稍后会有专业的置业顾问联系您
返回楼盘

频道导航

返回首页

看房小程序

APP下载

电话拨通后,请您手动拨打分机号

确定拨打电话

电话号码:

分机号:(可能需要拨分机号)