三亚 半山首府
☎️售楼处电话:400-033-1899转接8888 【售楼中心】
💌 网上售楼中心〢安全通话隐藏真实号码〢一对一热情服务〢
✅售户型图丨项目介绍丨最新房源丨周边配套丨详细解答〢营销中心✅
【项目区位】
享繁华三亚,居半山豪宅
非凡自然,向来是塔尖人群所向往和追求的理想境界。山的伟岸,海的澎湃,极致境界造就非凡居所。
三亚·半山首府择址大东海榆亚路中段,拥半山而立,坐享世界级湾区。于此,停泊世界的意志,达成“人生至此不远游”的臻我境界。

三亚半山首府位于吉阳区榆亚路675号(红沙加油站旁),是由海南冠洋四通投资开发的高端住宅项目,总户数223户,容积率1.35,绿化率达41%,物业为金地物业(物业费5.3元/㎡/月)
基础信息
产权年限:70年住宅,精装交付(港式轻奢风格)
建筑类型:3栋低密纯板楼,一字布局,户户南北通透,配备20㎡观景阳台
【低密社区】
3栋低密纯板高层建筑,一字布局,南北通透,户户皆享超大观景阳台180°瞰海观山的极致视觉,海天山色尽收眼底。1.35绝版超低容积率只为成就223席高端舒适的完美胜境。
【户型鉴赏:A户型】
建筑面积约:133㎡三房两厅两卫

【户型鉴赏:B户型】
建筑面积约:101㎡两房两厅两卫

【户型鉴赏:C户型】
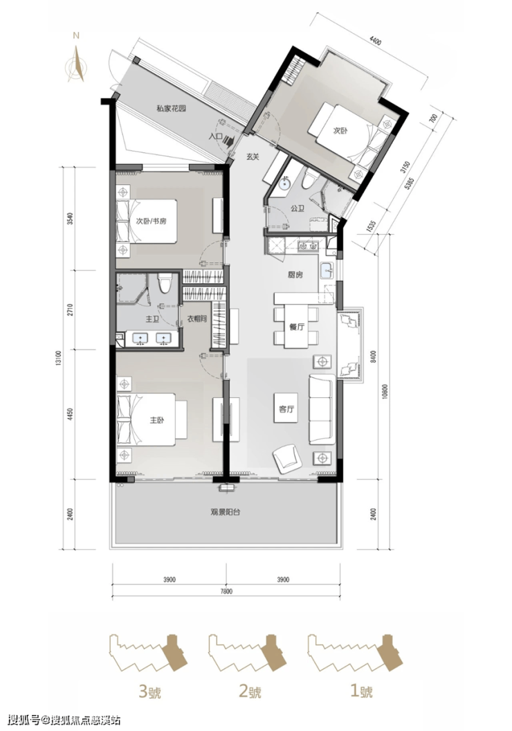
建筑面积约:134㎡三房两厅两卫

【豪奢户型】
看海纯板房A+B户型:236㎡5房4厅4卫

【豪奢户型】
看海纯板房B+C户型:237㎡5房4厅4卫

三亚 半山首府
☎️售楼处电话:400-033-1899转接8888 【售楼中心】
💌 网上售楼中心〢安全通话隐藏真实号码〢一对一热情服务〢
✅售户型图丨项目介绍丨最新房源丨周边配套丨详细解答〢营销中心✅