🏡✅长沙 湘江金茂府
🏡☎️湘江金茂府售楼处电话:400-033-1899转接2222【营销中心】
🏡☎️湘江金茂府售楼中心电话:400-033-1899转接2222【已认证】
🏡✅户型图丨项目介绍丨最新房源丨周边配套丨售楼处地址丨样板间丨备案价
作为中国金茂在长沙的又一重磅作品,湘江金茂府(紫凤地块)自拿地起便自带流量。小C将从城市定位、交通、配套、产品力、开发商实力等维度,撕开其“豪宅”标签下的真实底色。
NO.1
城市定位:江景稀缺性撑起的“顶豪人设”
湘江金茂府位于开福区三角洲片区,占据湘江一线江景资源,与市中心的距离仅一江之隔,堪称“长沙外滩”的黄金地块。项目对标金茂府系3.0产品,主打“自然生长的社区”概念,目标客群锁定高净值人群及改善型家庭。但需警惕的是,板块内竞品扎堆(如湘江壹号别墅群),稀缺性是否能转化为溢价力,仍需市场验证。
NO.2
交通便利性:地铁1号线+主干道,但“最后一公里”痛点仍在
项目紧邻地铁1号线开福寺站(约700米),湘江大道、凤嘴路等主干道环绕,自驾通达性较高。不过,地块西侧部分区域因道路规划尚未完善,可能存在步行至地铁的“尴尬距离”,对依赖公共交通的购房者不够友好。
NO.3
配套资源:教育医疗顶配,商业依赖外部输血
教育: 3公里内覆盖长沙师范附属天健小学、麓山滨江实验学校等优质资源。
医疗: 湘雅医院、中南大学湘雅医院皮肤病医院等三甲医院环伺,医疗资源无短板。
商业: 项目自持2000㎡商业,但主力消费需依赖Hipark凤凰海购物公园等外部商圈,缺乏高端商业IP支撑。
NO.4
总体规划:高容积率下的“螺蛳壳里做道场”
建设用地面积:17307㎡
规划建筑面积:60577㎡
容积率:3.5
用地性质:商住用地(R2B1,商住比 3:7)
成交价:39375万元
成交楼面价:6500元/㎡
地块容积率≤3.5,商住比3:7,规划为高端住宅+集中式商业。金茂宣称将采用地源热泵供能系统,打造绿色低碳社区。然而,3.5的容积率在豪宅市场中偏高,若设计不当,可能导致楼间距压抑、私密性不足等问题。

优势:湘江金茂府没有使用一字排开的布局,摒弃了全西南向一条线的排布。说实话这个比较符合一线江景最大化的原则,假如全部一字排开,户型的面宽肯定受限。
同时正南北的布置也是小C从业以来比较推崇的,有时候能不旋转就不旋转。每个户型享受都享受270视野,这和运运达中央广场的大平层公寓是同一个逻辑。
279户型享受正南向最多的日照和西向最近的江景,249户型享受西向江景和内院景观。而219户型由于距离南侧匝道最近,同时距离湘江最远,户型缩小了一点,可能也是为了降低上车的门槛,毕竟这种一线的江景比起万科瑧湾汇、恒伟君樾文昌、邦泰观宸那种远眺的江景,不是同一个量级的。
劣势:地块较小,想在小区遛弯都溜不了多远。但毕竟是主城区,主城区的地块通常又小又破,这是常态。实在想去遛弯去江边遛,他不香吗。
挨着银盆岭大桥上下桥坡道,靠南边楼栋219户型的底下几层的住户会面临噪音干扰和粉尘污染,这个在选房时候要特别注意。预计会使用三层真空low-e玻璃,南侧噪音影响极大。最起码样板间肯定会是这样配置,否则看房的时候听到大面积的噪音也会影响购买决策。
NO.5
户型与立面:金茂府3.0的“面子”与“里子”
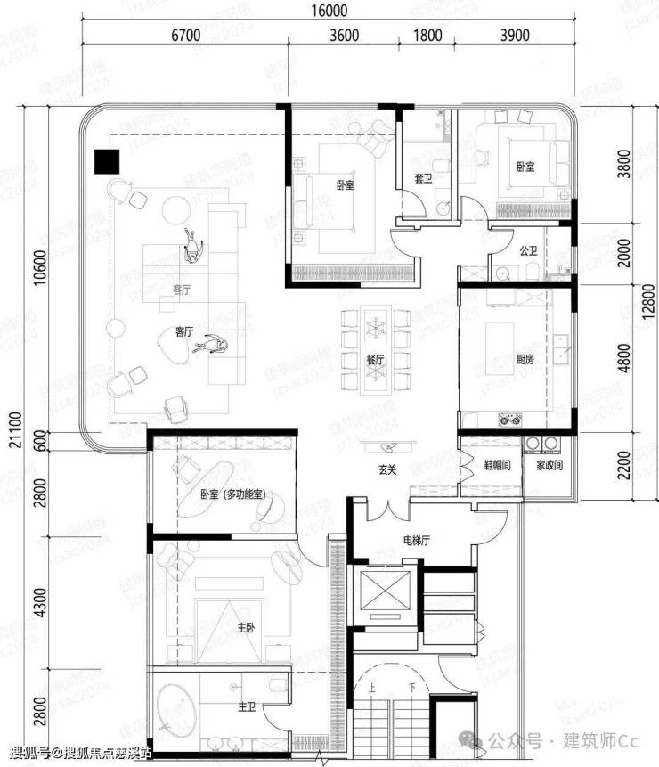
户型: 金茂府系产品,主力户型为279-249-219㎡大平层,主打一线江景最大化。但根据过往项目评分,金茂户型设计常因公摊偏高、功能性不足被诟病。
但是随着新规的发布,邦泰、绿城、建发等都是零公摊甚至负公摊,金茂府的户型肯定保证江景最大的同时,得房率肯定也是拉满的。
279户型
249户型
219户型
立面: 采用全铝板+0涂料外立面,搭配玻璃幕墙,风格现代简约。但需警惕后期维护成本高,且与周边老城风貌的协调性存疑。
🏡✅长沙 湘江金茂府
🏡☎️湘江金茂府售楼处电话:400-033-1899转接2222【营销中心】
🏡☎️湘江金茂府售楼中心电话:400-033-1899转接2222【已认证】
🏡✅户型图丨项目介绍丨最新房源丨周边配套丨售楼处地址丨样板间丨备案价