南京保利琥珀云台售楼处电话_琥珀云台售楼处地址(琥珀云台)2025首页网站-最新房价-楼盘百科

搜狐焦点慈溪站

2025-06-24 10:16:33

购房群

买房如何避坑,加入购房群,看看他们怎么说

立即进群

南京保利琥珀云台

售楼处电话:400-100-1299转5888

网上售楼中心〢欢迎来电咨询〢1v1销售专业讲解

项目介绍

【项目地址】:东至汇景西路,西至特色街巷,北至校场大道。

【房价】:47064元/㎡

【开发商】:南京徽琥房地产开发有限公司

【占地面积】:16515.26㎡

【容积率】:2.75

【绿化率】:30.01%(绿地率)

【物业公司】:保利物业

【物业费】:7.1元/㎡/月(2.6+0.5物业费+4元科技费)

【总户数】:372户

【主力户型】:105125 135

【楼栋数】:5栋

【交付时间】:2025.3.30

【拍摄时间】:2024.9.612:10

琥珀云台2023.10.13——航拍进度展示(第一期)

琥珀云台2024.01.07——航拍进度展示(第二期)

琥珀云台2024.04.21——航拍进度展示(第三期)

温情提示!!!

楼盘航拍会以两个月为一个周期进行更新点击上面链接可以浏览往期航拍内容 关注我们,后期可以第一时间可以收到最新的进度更新哦~

项目目前整体销售数据

入网总套数

673套(含285个地下停车位)

今日认购

0套

入网总面积

48380.47㎡

今日成交

0套

未售总套数

209套

总认购套数

17套

未售总面积

3019.12㎡

总认购面积

1444.32㎡

总成交套数

447套

总成交面积

43917.03㎡

(信息来自南京市网上房地产官方)

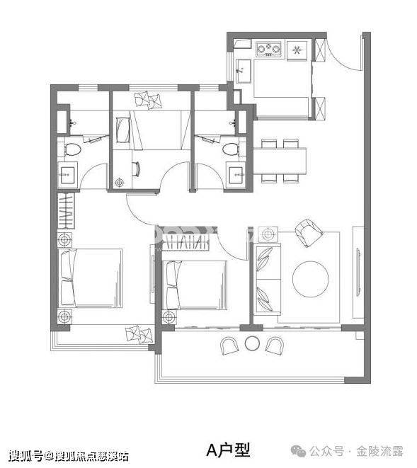
主力户型展示

105户型 (三室两厅两卫)在售

125户型(三室两厅两卫)

135户型(三室两厅两卫)

以上户型图片来自365淘房 | 文章片尾有全案设计案例分享哦

航拍照片展示

南京保利琥珀云台

售楼处电话:400-100-1299转5888

网上售楼中心〢欢迎来电咨询〢1v1销售专业讲解

全部

相关资讯

报名成功
稍后会有专业的置业顾问联系您
返回楼盘

频道导航

返回首页

看房小程序

APP下载

电话拨通后,请您手动拨打分机号

确定拨打电话

电话号码:

分机号:(可能需要拨分机号)