华润观岚售楼处电话→华润观岚看房预约电话→华润观岚楼盘怎么样→华润观岚售楼中心24小时电话→/价格/备案价/户型解析

搜狐焦点慈溪站

2025-10-18 12:50:44

购房群

买房如何避坑,加入购房群,看看他们怎么说

立即进群

🚩三亚 华润观岚

🚩华润观岚售楼处电话:☎400-033-1899转接3333【营销中心】

🚩华润观岚售楼中心电话:☎400-033-1899转接3333【已认证】

🌆 全景户型图鉴 | 🏙️ 城市地标解析 | 🌟 典藏房源速递

🛍️ 繁华配套指南 | 🏛️ 艺术样板间巡礼 | 💰 备案价透明公示

约110-180㎡纯板式观景度假产品

开发商:(华润置地)海罗第壹城市更新建设开发有限公司

【项目地址】三亚市吉阳区迎宾路与海螺一路交汇往南1.2公里(七小海罗校区南侧)

【占地面积】39亩

【建筑面积】一期总建筑面积约6.5万㎡

【容积率】2.5

【绿地率】40%

【车位配比】1: 1.2,671个车位

【产权年限】70年

【 总 体 量 】住宅540套

【住宅层高】7栋小高层,17F

【面积区间】110-130-180㎡

【交房时间】2026年3月底

【物业】华润万象生活、物业费暂定

项目楼栋示意图

亮点:围合式布局,打造南北通透,户户观景,以中轴水系延伸景观设置泛会所入户大堂。游园式归家,双动线,保证南北两个组团独立,整体增强私密性,减少居住干扰。

户型鉴赏:

约110㎡中间户《通厅三面宽户型》两房两厅两卫

亮点:可做三房使用,LDKB一体格局,三个卧室独立分布,U型厨房,动线简洁互不干扰。

约110㎡边户《独立宽厅 浪漫观景餐厅》两房两厅两卫

亮点:宽厅设计加上观景餐厅 三面观景效果绝佳

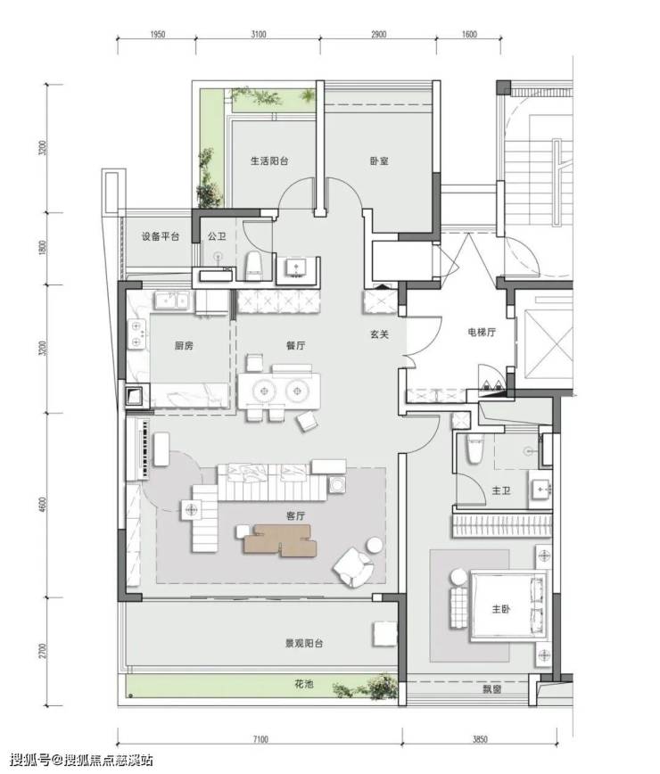
约130㎡《巨幕宽厅户型》三房两厅两卫

亮点:南向客厅面宽7米进深4米,空间利用率高,L型厨房联动客厅,南向面朝景观公园带。

约180㎡《环幕全景舱户型》四房三厅三卫

亮点:南向双套房,客厅设置双动线,归家更有仪式感,转角厅,私享东南向最佳景观视野。

🚩三亚 华润观岚

🚩华润观岚售楼处电话:☎400-033-1899转接3333【营销中心】

🚩华润观岚售楼中心电话:☎400-033-1899转接3333【已认证】

🌆 全景户型图鉴 | 🏙️ 城市地标解析 | 🌟 典藏房源速递

🛍️ 繁华配套指南 | 🏛️ 艺术样板间巡礼 | 💰 备案价透明公示

全部

相关资讯

报名成功
稍后会有专业的置业顾问联系您
返回楼盘

频道导航

返回首页

看房小程序

APP下载

电话拨通后,请您手动拨打分机号

确定拨打电话

电话号码:

分机号:(可能需要拨分机号)