🏡✅【三亚】和城锦熙
🏡✅和城锦熙售楼处电话☎️400-133-5355【售楼中心】【官网认证】
🏡✅和城锦熙营销中心电话📞400-133-5355【营销中心】【官网认证】
项目概况
[项目地址]三亚东岸CBD-东岸湿地公园东北侧
[总建筑⾯积]约8万方
[总用地面积]约77.16亩
[ 容 积 率 ]1.2
[ 绿 化 率 ]40%
[建筑密度]18%
[产权年限]70年
[面积区间]建面约500㎡藏墅|建面约60-142㎡品质住宅
[产品业态]定制藏墅/品质住宅/奢阔大平层
项目产品
【定制藏墅:一个家族的图腾与徽章】
建面约500㎡定制级藏墅,承载着时代人物所向往的巅峰大境,二亩天地按需定制场域,创享尊崇天地。以世界格局,东方血统,造就“修身、齐家、平天下”的世家威仪。总裁会客厅:云聚一个圈层的生意与生活。企业博物馆:激活一个企业的海岛战略与商业版图私密生活墅:自贸时代大人物的阶层排场
【阔境小高层-墅区里的理想居所】
建面约60-142多元灵动空间,对应更⾼层级的品味、需求、审美,对精装美学、场景、功能进⾏全⽅位升级,构建自贸菁英的理想生活之所,演绎高雅品位生活方式。
楼栋落位图
楼层平面图
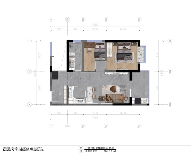
户型鉴赏奢阔小高层——自贸菁英的理想居所
【A-2 建面约60㎡,实际使用面积77㎡, 两室两厅一卫】

【B-2 建面约84㎡,实际使用面积98㎡, 两室两厅一卫】

【B3 建面约89㎡,实际使用面积113㎡, 三室两厅两卫】
【A-2+B-2 大平层 建面约142㎡】方案一 四室两厅两卫
【A-2+B-2 大平层 建面约142㎡】方案二 四室两厅两卫
🏡✅【三亚】和城锦熙
🏡✅和城锦熙售楼处电话☎️400-133-5355【售楼中心】【官网认证】
🏡✅和城锦熙营销中心电话📞400-133-5355【营销中心】【官网认证】