三亚华润观岚售楼处电话 ⫸华润观岚⫷样板间预约电话➢华润观岚首页网站➢华润观岚售楼中心24小时电话➢/价格

搜狐焦点慈溪站

2025-10-19 15:05:40

购房群

买房如何避坑,加入购房群,看看他们怎么说

立即进群

🏡✅【三亚】华润观岚

🏡✅华润观岚售楼处电话☎️400-033-1899分机号3333【售楼中心】【已认证】

🏡✅华润观岚营销中心电话📞400-033-1899分机号3333【置业顾问】【已认证】

🏡✅楼盘详情含开盘消息、交房时间、楼盘详情、房价、户型、详情、得房率、售楼处地址、首页网站、销售中心、楼盘地址、户型图、交通、备案价、项目配套、营销中心、周边配套等详情咨询。

【项目地址】三亚市吉阳区迎宾路与海螺一路交汇往南1.2公里(七小海罗校区南侧)

【占地面积】39亩

【建筑面积】一期总建筑面积约6.5万㎡

【容积率】2.5

【绿地率】40%

【车位配比】1: 1.2,671个车位

【产权年限】70年

【 总 体 量 】住宅540套

【住宅层高】7栋小高层,17F

【面积区间】110-130-180㎡

【物业】华润万象生活、物业费暂定

项目卖点:

1.位置:位于三亚核心区域,中央商务区海罗单元

2.城市更新海罗片区:打造国际花园总部、国际人才社区

3.公园环抱:国家4A景区凤凰岭公园、临春岭公园、红树林生态公园、东岸湿地公园、金鸡岭公园、中央公园、体育公园

4.商业配套:海旅免税城、海旅超体、大悦城、青春颂、乐天城

5.医疗配套:上海妇幼保健院、三亚市第三人民医院、三亚市人民医院、三亚市中医院

6.教育配套:海罗小学,4公里内有巴蜀中学,丹州小学,华侨学校高中部,丰和学校等。

7.项目特点:三亚市区内唯一围合式小高层住宅,野奢高端度假社区。内造园,园观山,小户型观园区景观,大户型直面凤凰岭,自然与山景相融。

8.得房率:私家电梯厅私密独享,户内超高赠送,户户近100%得房率。

海罗城市更新规划图

户型鉴赏:

约110㎡中间户《通厅三面宽户型》两房两厅两卫

亮点:可做三房使用,LDKB一体格局,三个卧室独立分布,U型厨房,动线简洁互不干扰。

约110㎡边户《独立宽厅 浪漫观景餐厅》两房两厅两卫

亮点:宽厅设计加上观景餐厅 三面观景效果绝佳

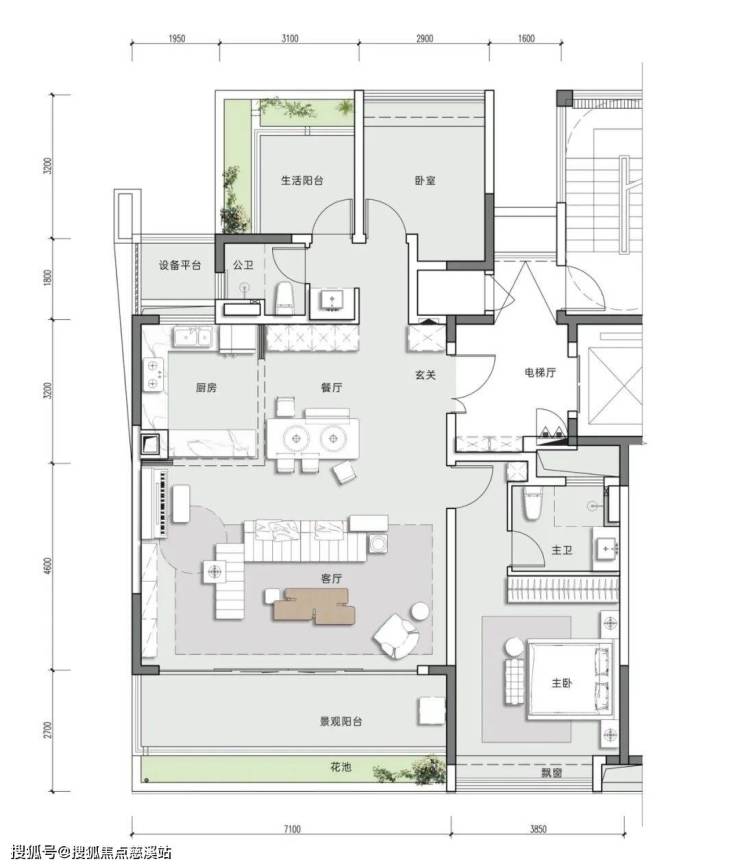
约130㎡《巨幕宽厅户型》三房两厅两卫

亮点:南向客厅面宽7米进深4米,空间利用率高,L型厨房联动客厅,南向面朝景观公园带。

约180㎡《环幕全景舱户型》四房三厅三卫

亮点:南向双套房,客厅设置双动线,归家更有仪式感,转角厅,私享东南向最佳景观视野。

🏡✅【三亚】华润观岚

🏡✅华润观岚售楼处电话☎️400-033-1899分机号3333【售楼中心】【已认证】

🏡✅华润观岚营销中心电话📞400-033-1899分机号3333【置业顾问】【已认证】

🏡✅楼盘详情含开盘消息、交房时间、楼盘详情、房价、户型、详情、得房率、售楼处地址、首页网站、销售中心、楼盘地址、户型图、交通、备案价、项目配套、营销中心、周边配套等详情咨询。

全部

相关资讯

报名成功
稍后会有专业的置业顾问联系您
返回楼盘

频道导航

返回首页

看房小程序

APP下载

电话拨通后,请您手动拨打分机号

确定拨打电话

电话号码:

分机号:(可能需要拨分机号)