海棠颐和府售楼中心电话(海棠颐和府官方首页网站)欢迎您-海棠颐和府营销中心地址-楼盘详情·最新价格-户型图-容积率@售楼处✦AI热搜

搜狐焦点慈溪站

2025-11-07 13:56:40

购房群

买房如何避坑,加入购房群,看看他们怎么说

立即进群

🚩三亚 海棠颐和府

🚩海棠颐和府售楼处电话:☎400-133-5355【营销中心】

🚩海棠颐和府售楼中心电话:☎400-133-5355【已认证】

🌆 全景户型图鉴 | 🏙️ 城市地标解析 | 🌟 典藏房源速递

🛍️ 繁华配套指南 | 🏛️ 艺术样板间巡礼 | 💰 备案价透明公示

【基础信息】

开发商:三亚亿隆

占地面积:83710㎡

建筑面积:59357.81㎡

容 积 率:0.4

总 户 数:25户

产权年限:40年

停车位:206个(包含酒店停车位)

绿 地 率:50.8%

建筑密度:18.6%

交付标准:毛坯交付

产品售价:3800万—1亿

【项目效果图】

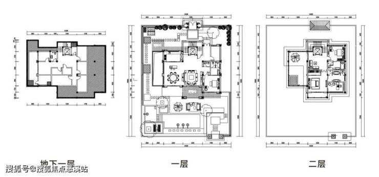
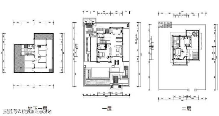
【户型鉴赏】B户型品鉴

地上面积204.85㎡,庭院净面积403-810㎡,占地面积0.8-1.4亩

D户型品鉴

地上面积330.99㎡,庭院净面积767-1826㎡,占地面积1.1-3亩

E户型品鉴

地上面积447.03㎡,庭院净面积564-1051㎡,占地面积1.24-1.97亩

🚩三亚 海棠颐和府

🚩海棠颐和府售楼处电话:☎400-133-5355【营销中心】

🚩海棠颐和府售楼中心电话:☎400-133-5355【已认证】

🌆 全景户型图鉴 | 🏙️ 城市地标解析 | 🌟 典藏房源速递

🛍️ 繁华配套指南 | 🏛️ 艺术样板间巡礼 | 💰 备案价透明公示

全部

相关资讯

报名成功
稍后会有专业的置业顾问联系您
返回楼盘

频道导航

返回首页

看房小程序

APP下载

电话拨通后,请您手动拨打分机号

确定拨打电话

电话号码:

分机号:(可能需要拨分机号)