济南保盛济南府
售楼处电话:400-100-1299转9999
网上售楼中心〢欢迎来电咨询〢1v1销售专业讲解
旅游路保盛·济南府容积率仅1.2,由4层叠拼及4-10层洋房组成。
绝版地块,打造限量款山居豪宅,仅有298套。
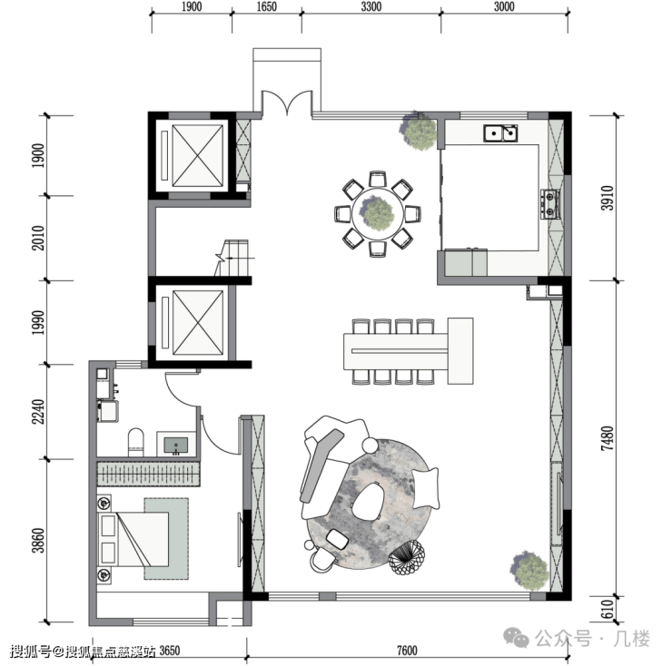
本次实景呈现的是洋房产品,约200㎡瞰山洋房。

“一梯一户”专属动线,私密性与实用性并存,专属约5㎡前厅可自由定制。
保盛·济南府观山洋房标准层高约3.15米,比绝大多数改善盘层高更加“高人一等”。
实景拍摄
约200平四室两厅两卫格局是270°环幕边厅设计,约7米云端客厅与约10.3米全景阳台完美融合,南向、东向达到约26米的超长观景面,近可览社区郁郁葱葱绿植,远可观绵延山景。

再看主卧,总统套房设计,约6.6米大开间、约6.1米进深,奢阔大尺度。主卫突破性采用南向全明设计,预留双台盆、独立浴缸空间,整个主卫空间甚至比普通住宅小卧室面积还要大。
因为是低密社区,洋房产品一层送40-50平小院,顶层带160平以上星空露台(每户赠送面积有差异),并预留窗改门、结构柱等建筑细节,便于业主后续改造使用。
这样的洋房产品你可心动?

除了端厅洋房户型之外,首开还有近200平米四面宽户型,同样的大尺度空间。对于喜欢四面宽户型的购房者,这个户型是你无法拒绝的存在。

约200平米四面宽洋房户型
接下来济南府叠拼产品也将实景呈现,对于喜欢大尺度叠墅的购房者这绝对是不二之选。
叠墅产品单层面积不能太小,否则根本谈不上居住舒适度。
保盛·济南府的面宽,高达约11.25米,远远超出当下市场上的叠拼面宽尺度,居住舒适度大大提升。
大面宽使得每层面积超百平,约7.6米奢阔巨幕宽厅+全景落地窗,再加上首层约3.3米,标准层约3.15米的层高,空间尺度尽显。
我们来具体看看上叠、下叠的户型尺度。
首开的11号楼叠墅产品,占据小区核心地理位置,开窗可见8米悬瀑及16米下沉会所,及瑶台盛宴。
地上的建面约238平左右,顶层露台面积约为80平方,4层还有面积约为35平的赠送露台,每户会略有差异 。
地下更有约45平的空间,地下空间层高为6米,发挥业主的想象空间自由打造。

上叠一层户型图

上叠二层户型图
露台效果图
下叠的最大优势就是——大赠送。
建筑面积约360-375平,地上建面约262平左右,地下部分约100平,层高为6米。
依托自然山势作为首开区开盘及王炸,叠墅将赠送地下隐藏空间,3.8米层高,近百平空间,充分满足您的改造需求,结合6米层高负一层后期改造夹层,可得5层叠拼别墅。
喜欢下叠的不仅仅想要更多的地下改造空间,同时对于院子的喜爱更是首要:
济南府南北双庭院,院子总面积从55平到180平之间不等。
这样多的可利用空间,等实体样板呈现,谁又能不心动?

下叠二层户型图

下叠一层户型图

保盛·济南府由济南高新区本土企业山东保盛集团开发,保盛集团下设房地产、 酒店、物业、资产运营、产业园等公司,保盛集团旗下坐拥喜来登酒店和柏蔓艺术花园酒店两大高端商务酒店,并打造了长清区保盛·平安物流产业园、高新区鑫盛大厦、高新区保盛财富中心等业内知名地标项目。
为了把保盛·济南府打造成济南的标杆项目,保盛不惜重金聘请顶尖团队打造本项目:
景观设计公司为奥雅,是景观设计行业首家上市企业,北京豪宅顶流颐和金茂府,是其无数经典作品之一。
建筑设计为长厦安基 (ARCH-AGE DESIGN) ,是一家中国境内成立十余年的综合类设计公司,建筑设计甲级资质, 城市规划设计乙级资质。发展至今40余个央企国企城市平台公司覆盖,与中海、中建、中粮、中铁等国企业平台合作,龙湖/越秀、华发、建发、 华侨城等大型实力国企平台合作提供豪宅设计方案。斩获30+国际大奖以及120+的国内大奖。
幕墙设计公司为山东省城建设计院,李本格先生,代表作:中国国家大剧院,山东省舜耕国际会展中心(山东省首例拉索式幕墙)济南市奥体中心等。
正是有了这些顶尖团队,再加上旅游路上风上水之土地,才有了今日的济南府。
建筑立面精心融入了中式古典建筑府邸的美学元素,简化斗拱、飞檐、瓦当、脊兽等经典构造手法,用现代的材料及做法,采用金属漆+铝板赋予建筑以古朴沉稳又不失潮流的底蕴和气息。
整个外立面多以铝板与金属漆、镀膜LOW-E玻璃(三层 LOW-E中空玻璃)为主,颜值非常高,阻隔紫外线的同时室内观山视野更佳。

济南保盛济南府
售楼处电话:400-100-1299转9999
网上售楼中心〢欢迎来电咨询〢1v1销售专业讲解