逸宸云著-太原(逸宸云著)首页网站-2025最新房价+户型图+小区环境+配套

搜狐焦点慈溪站

2025-06-28 10:12:04

购房群

买房如何避坑,加入购房群,看看他们怎么说

立即进群

太原中铁诺德逸宸云著

售楼处电话:400-100-1299转5999

网上售楼中心〢欢迎来电咨询〢1v1销售专业讲解

刚刚收到开发商消息,位于太原西中环煤气化板块的中铁诺德逸宸云著,即将加推三期两栋住宅楼,四号楼和六楼号。

中铁诺德逸宸云著加推三期:4号楼、6号楼,层高为33层,户型有99平,116平,120平和136平。其中,99平(6号楼上)、120平,团购优惠后,成交均价12600左右。116平(4号楼和6号楼上),成交均价11900左右(送半价车位券)。136平,成交均价12600左右。

99平为小三居,房源在三期6号楼上,南北通透,还有东把边户。

116平为三居,在三期4号楼和6号楼上,户型方正,南北通透,采光面大。

120平为三居,房源在三期的4号楼和6号楼上,4号楼的东把边户,6号楼的西把边虎。户型进深长,南北大通透,横厅设计。

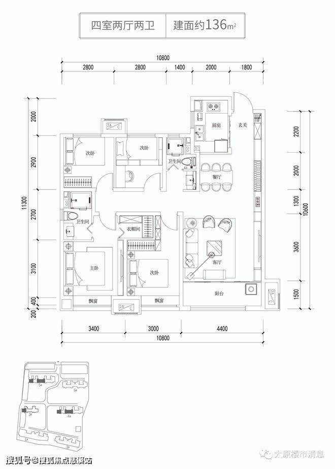
136平为4居户型,在4号楼的中间和西把边户。户型方正,南北大通透,采光面大。

【诺德逸宸云著三期】

【位置】:西中环与西峪路交叉口路南300米售楼部有人脸识别

【属性】:70年产权住宅

【占地面积】:9.9万㎡

【建筑面积】:21.2万㎡

【容积率】:3.5

【绿化率】:35%

【朝向】:南北向

【物业】:中铁第一太平物业

【装修】:毛坯(可搭配贝壳精工装,轻松解决装修难的问题)

【车位】:共1351个停车位,配比1:1.2

【楼栋详情】:共6栋高层,在售1、2号楼

1#:1单元28层,2单元10层

2#:1单元30层,2单元27层

【交房时间】:2025年9月左右

中铁诺德逸宸云著项目,配套签约了省实验小学和山大附中,小学于去年已经开学了,中学于今年九月份开学了。业主子女,只要符合要求,可以对口小学和中学,直升入学。

太原中铁诺德逸宸云著售楼处电话:400-100-1299转5999网上售楼中心〢欢迎来电咨询〢1v1销售专业讲解

全部

相关资讯

报名成功
稍后会有专业的置业顾问联系您
返回楼盘

频道导航

返回首页

看房小程序

APP下载

电话拨通后,请您手动拨打分机号

确定拨打电话

电话号码:

分机号:(可能需要拨分机号)