太原保利大都汇售楼处电话_来电预约看房_(2025保利大都汇营销中心)楼盘最新详情-2025最新房价

搜狐焦点慈溪站

2025-06-14 11:32:38

购房群

买房如何避坑,加入购房群,看看他们怎么说

立即进群

太原保利大都汇

售楼处电话:400-100-1299转5999【官网】

网上售楼中心〢欢迎来电咨询〢1v1销售专业讲解

保利大都汇,央企保利开发,位于小店区长治路和王村北街交汇处,距离二号线地铁口,只有一百多米。项目于2022年12月10日开盘,因为地理位置优越,靠近亲贤商圈,紧邻长治路和地铁二号线站点,周边交通,教育,商业和医疗配套齐全,所以一开盘就受到了高端改善家庭的关注。

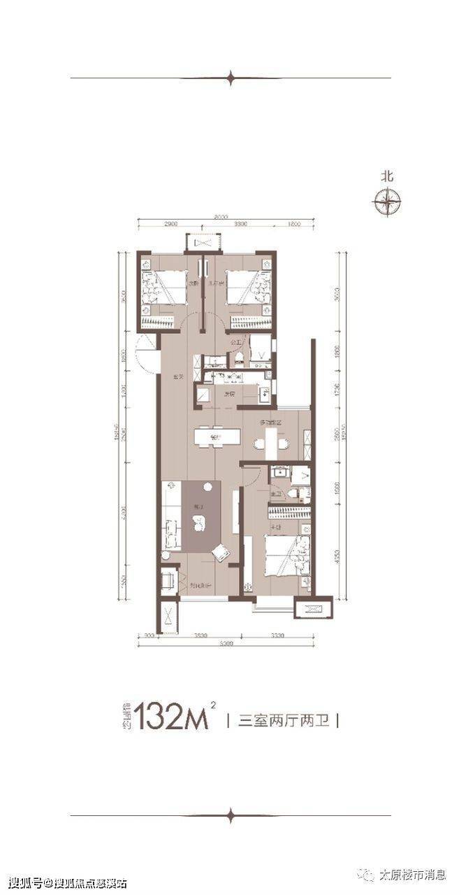
保利大都汇小区一共有六栋住宅楼,总户数为928户。容积率4.5,相对比较高,绿化率25%,楼间距45米,物业由保利物业自持,物业费2.8元。地下车位1258个,车位配比1:1.1。户型122平到160平,精装修,交房时间为2025年10月。

保利大都汇项目建筑设风格为现代极简,采用落地窗设计,玻璃幕墙,提高住宅美观。外立面颜色采用莫兰迪高级灰系列,浅白、浅灰色交替使用,空间层次感,立体感突出。

保利大都汇项目,户型有122平和132平三居,160平四居,高标准精装修,公摊在23%左右。成交均价在一万五千到一万六千。户型设计优秀,南北通透,方正,特别是160平改善把边四居,比较抢手。

保利大都汇项目优势分析:

首先,地段好,周边生活配套成熟,交通,教育,医疗等方面齐全。

其次,靠谱,央企保利开发建设,交房有保障,后期物业服务好。

最后,小区风格高档,门槛较高,园林设计好。地段稀缺。

太原保利大都汇售楼处电话:400-100-1299转5999【官网】网上售楼中心〢欢迎来电咨询〢1v1销售专业讲解

全部

相关资讯

报名成功
稍后会有专业的置业顾问联系您
返回楼盘

频道导航

返回首页

看房小程序

APP下载

电话拨通后,请您手动拨打分机号

确定拨打电话

电话号码:

分机号:(可能需要拨分机号)