三亚华润观岚(售楼处) 最新发布 - 华润观岚销售中心 - 环境 - 户型 - 价格 - 地址 - 楼盘详情 - 电话 - 配套- 电话 - 交房时间

搜狐焦点慈溪站

2025-11-08 13:39:47

购房群

买房如何避坑,加入购房群,看看他们怎么说

立即进群

➢三亚华润观岚售楼处电话400-033-1899转接5888【已认证】

➢三亚华润观岚营销中心电话400-033-1899转接5888【已认证】

➢三亚华润观岚开发商客服电话400-033-1899转接5888【售楼中心】

➢来电可了解楼盘最新动态、房价、在售房源、交楼时间等信息!让你买的放心,住的舒心!

约110-180㎡纯板式观景度假产品

开发商:(华润置地)海罗第壹城市更新建设开发有限公司

【项目地址】三亚市吉阳区迎宾路与海螺一路交汇往南1.2公里(七小海罗校区南侧)

【占地面积】39亩

【建筑面积】一期总建筑面积约6.5万㎡

【容积率】2.5

【绿地率】40%

【车位配比】1: 1.2,671个车位

【产权年限】70年

【 总 体 量 】住宅540套

【住宅层高】7栋小高层,17F

【面积区间】110-130-180㎡

【交房时间】2026年3月底

【物业】华润万象生活、物业费暂定

(示意图)

户型鉴赏:

约110㎡中间户《通厅三面宽户型》两房两厅两卫

亮点:可做三房使用,LDKB一体格局,三个卧室独立分布,U型厨房,动线简洁互不干扰。

约110㎡边户《独立宽厅 浪漫观景餐厅》两房两厅两卫

亮点:宽厅设计加上观景餐厅 三面观景效果绝佳

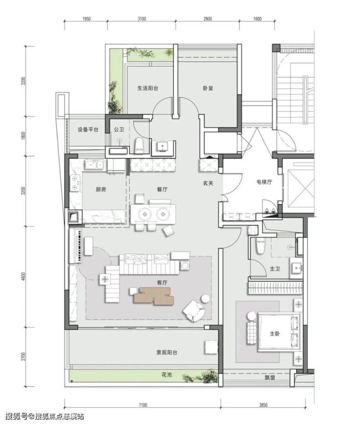
约130㎡《巨幕宽厅户型》三房两厅两卫

➢三亚华润观岚售楼处电话400-033-1899转接5888【已认证】

➢三亚华润观岚营销中心电话400-033-1899转接5888【已认证】

➢三亚华润观岚开发商客服电话400-033-1899转接5888【售楼中心】

全部

相关资讯

报名成功
稍后会有专业的置业顾问联系您
返回楼盘

频道导航

返回首页

看房小程序

APP下载

电话拨通后,请您手动拨打分机号

确定拨打电话

电话号码:

分机号:(可能需要拨分机号)