Ⓐ海口 千江悦售楼处电话→千江悦首页网站→楼盘测评→营销中心电话→楼盘百科→售楼处位置→@千江悦24小时电话热线

搜狐焦点慈溪站

2025-06-07 21:15:35

购房群

买房如何避坑,加入购房群,看看他们怎么说

立即进群

🏡✅海口 千江悦

🏡☎️千江悦售楼处电话:400-033-1899转接2222【营销中心】

🏡☎️千江悦售楼中心电话:400-033-1899转接2222【已认证】

🏡✅户型图丨项目介绍丨最新房源丨周边配套丨售楼处地址丨样板间丨备案价

📍项目位置:海口江东新区南渡江东岸椰海大道南侧

🏛开发商:海南富德房地产开发有限公司(港资企业)

物业公司:自持物业

项目占地面积:964亩

项目建筑面积:约270820㎡(其中住宅约224201㎡)

总户数:2030户

🚖 车位:1:1.6地上车位人车分流(3226)

⭐开盘时间:2022年10月24日

⭐交房时间:2024年12年31日

在售的产品产权:70

总栋数:24栋

楼间距:40米左右

朝向:东西向

建筑形态:板楼

🏙容积率:1.5

绿地率:46%

物业费:4.8元

水电费:民水民电

☸ 公摊:18

在售:1#、2#、3#、6#、22#、23#

在售产品:

(一)住宅

面积:98-125㎡房

首付:55万

总高:12-15层

单价:18000-19800,精装

交房时间:2024年年底

付款方式:一次性,按揭

(二)商铺

物业费:3元

水电费:商水商电

在售:清悦畔临街商铺

面积:110-805(剩余10套左右)

套均:250万-2576万

总高:底商(一楼和二楼)

单价:一楼:3.2万左右,二楼2.2万左右,毛坯

交房时间:现铺

付款方式:一次性,按揭

必买的理由

1,《千江悦·东汇》为70年城镇住宅用地,房子属于不动产是永久产权,土地到期后自动续期,民法典第359条已明确规定。

2,位置。项目位于海南自贸港最为核心的江东新区综合服务组团CAZ。(城市是要发展的,我们一定要顺势而为)

3,医疗。两所三甲医院,(省中医院已经建好,市妇幼保健院正在建设中预计明年开业)

4,教育。周边省一级,市直属学校环伺,(东岸小学)

5,自然生态资源优越海南母亲河南渡江穿流而过以及江边带状公园,居住极为舒适。

6,项目容积率1.5。(个人觉得容积率是您买房应该最为看重的一个规划指标)

7,小高层。总高12-15层居住非常的舒适。

8,户型使用率最低95%以上,个别户型使用率达到100%。(一样的建筑面积为什么不买个户型使用率高的小区呢?毕竟现在房价也不便宜,多送您10多个平米就相当于多送您十几二十万。)

9,绿地率46%。更多的绿化空间,更舒适居住体验

10,车位充足。住户2030户,车位3226个。

11,小区配套丰富(篮球场,网球场,迷你足球场,滑板公园,宠物公园,森林探险,一楼架空层泛会所,小区业主双会所,成人儿童双游泳池.....)

12,瓷砖外立面。成本更高,更显高档,历久弥新

13,商业。小区自带数万平米商业,满足业主日常生活需求。

小区配套:双业主会所、架空层泛会所、户外泳池、人工湖水系、篮球场、羽毛球场、小型足球场、户外影院、围合式慢跑道、滑板公园、儿童游乐园等

🏛教育:海口东岸小学(市直属)、北师大(市直属省一级)、海师大(省一级)枫叶国际

医院:海南省中医院(三甲)、海口市妇幼保健院(三甲)

🏞环境:南渡江带状公园

*项目区位图

*项目鸟瞰图

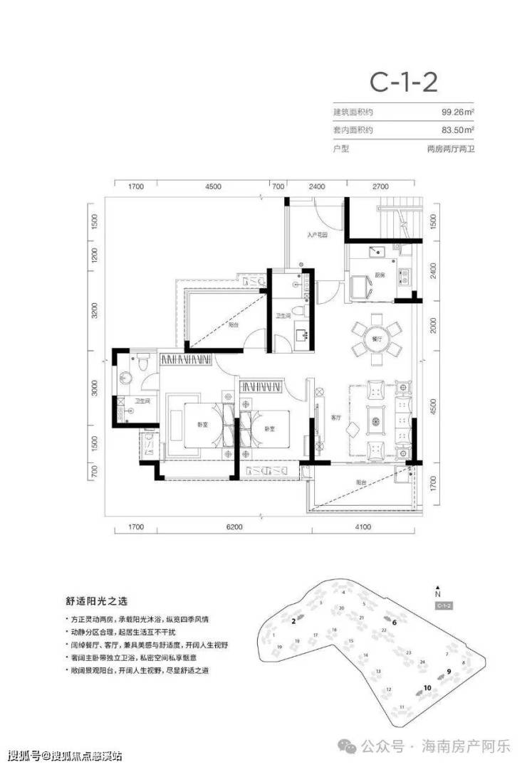
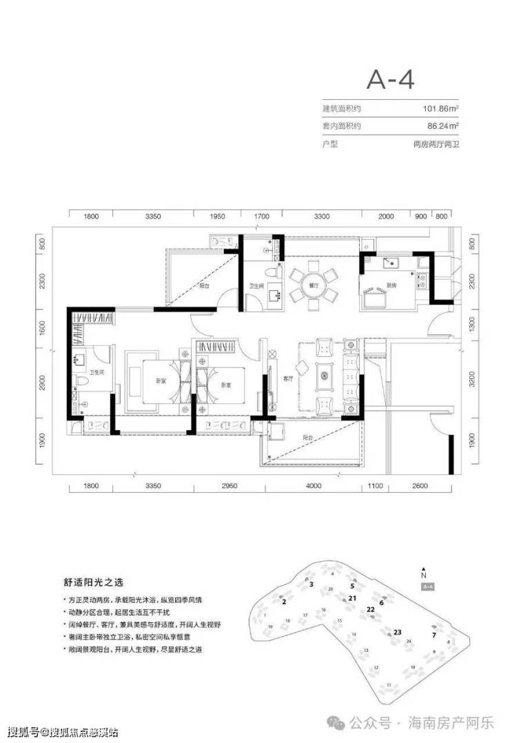
户型图(建筑面积99㎡-105㎡)

2+1房

阳台🉑改造一间房

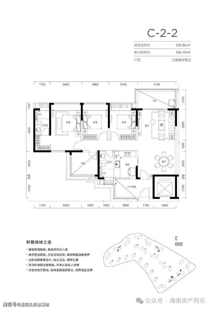
——————————————————————————户型图(约119㎡-125㎡)3+1房

🏡✅海口 千江悦

🏡☎️千江悦售楼处电话:400-033-1899转接2222【营销中心】

🏡☎️千江悦售楼中心电话:400-033-1899转接2222【已认证】

🏡✅户型图丨项目介绍丨最新房源丨周边配套丨售楼处地址丨样板间丨备案价

全部

相关资讯

报名成功
稍后会有专业的置业顾问联系您
返回楼盘

频道导航

返回首页

看房小程序

APP下载

电话拨通后,请您手动拨打分机号

确定拨打电话

电话号码:

分机号:(可能需要拨分机号)