➢天津泰达格调锦雲售楼处400-033-1899转接5888
➢天津泰达格调锦雲售楼处400-033-1899转接5888
➢来电可了解楼盘最新动态、房价、在售房源、交楼时间等信息!让你买的放心,住的舒心!
泰达格调·锦雲,拿出了市区在售项目中最低的1.29容积率,还端出了天津市场唯一的4层洋房,这种操作绝对炸场。

泰达格调·锦雲鸟瞰效果图
PART 01
市所罕见,1.29容积率纯洋房
泰达格调·锦雲本身是天津第一机床厂的城市更新项目,整体更新后会打造为设计之都起步区的津一产业公园。常规城市更新项目依赖卖住宅来回收更新成本,所以住宅用地尽可能多,容积率尽可能高。津一产业公园项目总占地面积约28万㎡,重点打造5万㎡的工业遗存公园与25万㎡产业社区,住宅用地只有4万㎡,大面积是保留的老建筑,未来交给北京798团队来运营。
为了保证跟整体产业园区的建筑风貌相匹配,这仅有的4万住宅用地,容积率设计只有1.29。要知道1.3的容积率最近几年也只在环外少数几个片区出现,市内六区最近5年内出让的地块中容积率最低的也在1.6-1.8左右。
很多人不知道容积率1.29与1.6存在本质区别,1.29意味着可以轻松实现叠拼加洋房的组合。而1.6-1.8容积率是小高加洋房,即使排叠拼也是极少量,还要接受紧密的楼间距等劣势。
所以津一产业园住宅用地规划公式后市场一片惊呼——4-8层,难道格调要在市区做叠拼?但格调的操盘思路往往出人意料,售楼处开放后揭晓的泰达格调·锦雲产品不是叠拼,而是4层洋房。到目前为止,这是天津市场第一次出现4层洋房,绝对是破天荒的存在。

泰达格调·锦雲景观效果图
要知道同样建筑面积条件下,叠拼必然比洋房售价高,也意味着高低配才是开发商利润最大化的组合。但这种配置的弊端是:叠拼占据了大部分资源,而且很大部分公共空间被划成了叠拼私家庭院,洋房产品楼间距超小、景观资源边缘,居住舒适度跟私密性大大降低。

泰达格调·锦雲景观效果图
泰达格调·锦雲采用的全洋房设计既能保证楼栋间的充足间距,又能保证每户之间的充分采光通风效果,将更多面积让出来去做景观,大多数套型的业主都能享受到更多的园林视野,配合格调的景观手法,这一点至关重要。

泰达格调·锦雲景观效果图
要知道这种均质化排布纯洋房的策略,历数天津市场,也只有少数豪宅会采用,典型的复康路11号目前均价在 8.4 万/㎡左右,比整个水上板块其他项目要高出 3.9-4.5 万。天房崇德园即使是暴雷之后,一期高层产品均价普遍在 4 万左右,而二期的纯洋房社区普遍都是在 5.7 万左右。有时候均质化的确会让开发商吃亏,但带给客户的是长期价值。

泰达格调·锦雲景观效果图
PART 02
15米面宽,改善户型终于解锁洗衣房!
眼下天津市场架空层、开敞阳台,错层露台……乱花渐欲迷人眼。但格调之所以是格调,核心就是不复制自己,更不复制潮流的定制化开发策略。
泰达格调·锦雲建筑立面南向是大面积宽厅玻璃落地窗,层间白色为底,米灰线条分割,很有传统韵味。首层深色铝板,顶部大面积挑檐,结合赠送阁楼与坡屋顶的深灰的瓦屋面,形成大气稳重的结构。

泰达格调·锦雲外立面效果图
客厅与卧室之间的隔墙用仿宣纸的背漆玻璃装饰,质感通透,局部是格调经典手法的中式纹样金属格栅,转角飘窗位置配饰仿宋建筑的勾栏,既有现代建筑的通透质感、平直与整洁,又在细节部位强调传统中式的精致与厚重。所以泰达格调·锦雲几乎是一种全新的去风格化产品,正因为去风格化,才不会因为建筑风格潮流的变化而落伍,真正能够历久弥新。
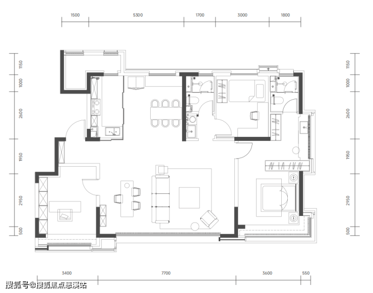
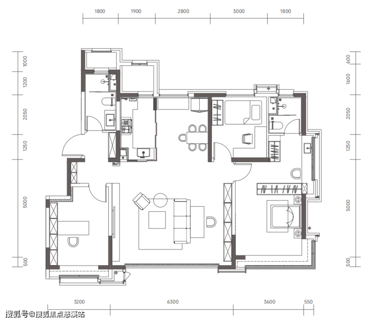
纯洋房、4层、原创立面,妥妥的改善盘,但格调锦云的户型尺度却极为克制,452 套房子只做了110㎡、128 ㎡、143 ㎡三个户型。

泰达格调·锦雲143㎡户型示意图
主卧面宽做到了3.6米,带转角飘窗,大面宽带来的主卧衣帽间与卫浴空间堪称豪华,侧向接近3米长的飘窗不论是双台盆还是洗手池加化妆台的组合,都足够宽敞。利用设备平台赠送,143㎡户型完美解决了宽厅无处洗晾衣服的尴尬。客餐厅本身面宽达到5.3米,L型厨房操作台与独立餐厅、餐边柜酒柜甚至是圆形餐桌丝毫没有压力。与厨房贯通的设备平台空间充裕,完全可以辟出一个洗衣房的位置,卫生间空间充分释放,也免去了阳台洗晾衣物的尴尬,在北方市场这绝对是刚需。

泰达格调·锦雲128㎡户型示意图
主力的128㎡户型虽然主要功能空间尺度比143㎡户型略小,但是6.3米的客厅开间足够改善客户使用,而且三室中最小卧室开间都达到了3米,三个卧室功能性丝毫不打折扣。保留了设备平台改造为洗衣房的条件之外,居然做出了双玄关空间,均质化排布带来的户型均好性非常明显, 甚至是层高都得到了充分释放,做到了3.1米,绝对是非常奢侈的尺度。
PART 03
升维配套,不止是天津版798
格调出品,常规市场最关注的内容必然是格调式园林,从目前泰达格调·锦雲给出的园林效果来看,均质化排布的大尺度景观空间,格调升级版园林不会让人失望,但这远远不是这个项目最大的看点,运营为依托带来的生活方式才是给天津市场打开了新思路。

津一产业公园区域空间结构图
泰达格调·锦雲只是津一产业公园的住宅部分,整个项目最大看点是产业公园。该项目不仅是设计之都的启动区项目,还是南北串联河东金贸产业园与海河柳林的节点项目,还是城市级更新的头号重点项目。项目内部包括住宅7大功能区相互融合,提供了一种新兴产业为驱动,798式配套与高品质住宅融合的可能。

津一产业公园更新意向图
沿津塘路一带老宿舍与苏联专家楼被改造为整体项目前驱部分,已经落位了星巴克、泰咖啡等系列品质潮流餐饮业态。原第一机床厂的核心区金二主车间体量巨大,正在洽谈引入高品质仓储式超市。南侧靠先锋路一侧则是规划了新建产业园区与大面积活力公园,形成整个项目的南北轴线。

津一产业公园沿河一带更新意向图
项目西侧为月牙河水岸,沿水岸一带打造了完整的亲水平台岸线,结合岸线与工业遗存形成的开敞空间,打造天津唯一一个市内露营体验区。工业遗存公园原本为金相实验室、金三车间以及五金库,这些工业遗存被保留改造后,形成工业风产业载体,未来会交由北京798团队运营,引入咖啡馆、精酿吧、潮流餐饮等业态。东翼是新建科技办公区,目前已经确定引入的企业包括中集建造、中咨海外、中新联科技、百度智能云、谷仓科技等重量级企业。已经确定引入的星巴克定制的工业风特色门店正在装修,9月底即将开业。


津一产业公园星巴克门店等建筑更新意向图
几乎所有城市都曾经羡慕过798,也几乎所有人都羡慕阿那亚,因为他们把人们理想的生活方式变成了现实。现在地产行业对于配套的理解停留在学铁商。但是798与阿那亚在常规功能性基础上做了升维,以品质潮流与精神生活方式作为突破,事实上提供给人们一种全新的生活方式。

津一产业公园更新意向图
泰达格调·锦雲如果从常规配套角度来看,三条地铁,两条快速交通,东侧大型商圈与九年一贯制,已经是非常成熟的片区无须多言,配合低密度与产品极具冲击力。但是在此基础上城市公园、星级酒店、商业街区,超大沿湖公园露营打卡地、清晨Coffee 深夜Bar,不仅满足常规的通勤购物就学的功能性,更注重同频精神领域的配套提升。


➢天津泰达格调锦雲售楼处400-033-1899转接5888
➢天津泰达格调锦雲售楼处400-033-1899转接5888