Ⓐ康润红树岛官方售楼处的电话(康润红树岛)官方首页网站-康润红树岛营销中心欢迎您--楼盘详情·最新价格-户型图-容积率@售楼处Al热搜

搜狐焦点慈溪站

2026-01-14 11:21:03

购房群

买房如何避坑,加入购房群,看看他们怎么说

立即进群

🏡✅【三亚】康润红树岛

🏡✅康润红树岛售楼处电话☎️400-133-5355【售楼中心】【官网认证】

🏡✅康润红树岛营销中心电话📞400-133-5355【营销中心】【官网认证】

三亚康润红树岛 项目简介

【一、项目简介】

项目位置:海螺一路与海螺西路交汇处

开发商:三亚京基花园开发有限公司

产权年限:70年

容积率:1.8

绿化率:40%

总占地:96亩 一期52亩

总建筑面积:10.9万方

层高:3米

楼间距:37-45米

产品:110平 120平 130平 (三个户型均为三房两厅两卫)品质奢居 板式低密洋房

总高:全部为十层高的洋房

电梯户数配比:一梯两户

朝向:南北通透

规划户数:一期578户住宅,45套商铺

规划楼栋:一期11栋

停车位:一期736个

交付标准:精装

交房时间:2026年12月

物业费:待定

【二、区域价值】

1、项目位于三亚中央商务区海罗单元

2、区域发展潜力大:海罗片区是三亚城市更新的重点区域,将打造为国际花园总部、国际人才社区,未来区域价值有望进一步提升。

【三、自然资源】

生态环境优越,项目下楼即是525亩红树林湿地公园、东岸湿地公园、临春岭公园等,自然景观优美,空气清新,适合居住和休闲。

【四、交通配套】

项目位于三亚市吉阳区,地块邻近城市主要交通干道凤凰路以及迎宾路,是连接两条主干道的交通枢纽,各区域通达性强。距离三亚凤凰国际机场、三亚站等交通枢纽也较近,便于岛内外出行。

【五、商业配套】

三公里范围内有海旅免税城、海旅超体、大悦城、青春颂、乐天城等购物中心,满足日常购物及消费需求。

【六、教育配套】

教育方面,周边有三亚市阳光贝贝幼儿园、第七小学海螺校区、丰和学校、迎宾学校重庆巴蜀中学三亚校区等学校,教育资源丰富。

【七、医疗配套】

医疗方面,靠近上海妇幼保健院、三亚市中医院,车程十分钟即可到达。片区内还覆盖了三亚市第三人民医院等医疗机构,为居民健康提供保障。

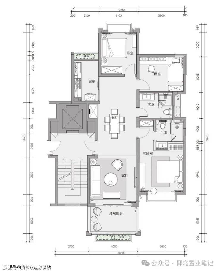
【八、户型展示】

1、A户型:建筑面积约110平方米三房两厅两卫

2、B户型:建筑面积约120平方米三房两厅两卫

3、C户型:建筑面积约130平方米三房两厅两卫

🏡✅【三亚】康润红树岛

🏡✅康润红树岛售楼处电话☎️400-133-5355【售楼中心】【官网认证】

🏡✅康润红树岛营销中心电话📞400-133-5355【营销中心】【官网认证】

全部

相关资讯

报名成功
稍后会有专业的置业顾问联系您
返回楼盘

频道导航

返回首页

看房小程序

APP下载

电话拨通后,请您手动拨打分机号

确定拨打电话

电话号码:

分机号:(可能需要拨分机号)