【三亚】华润观岚(售楼处)首页网站→营销中心→欢迎您〢楼盘详情〢最新价格〢户型图〢容积率@售楼处资料

搜狐焦点慈溪站

2025-09-03 12:55:17

购房群

买房如何避坑,加入购房群,看看他们怎么说

立即进群

🏡✅三亚 华润观岚

🏡☎️华润观岚售楼处电话:400-033-1899转接2222【营销中心】

🏡☎️华润观岚售楼中心电话:400-033-1899转接2222【已认证】

🏡✅户型图丨项目介绍丨最新房源丨周边配套丨售楼处地址丨样板间丨备案价

【项目地址】三亚市吉阳区迎宾路与海螺一路交汇往南1.2公里(七小海罗校区南侧)

【占地面积】39亩

【建筑面积】一期总建筑面积约6.5万㎡

【容积率】2.5

【绿地率】40%

【车位配比】1: 1.2,671个车位

【产权年限】70年

【 总 体 量 】住宅540套

【住宅层高】7栋小高层,17F

【面积区间】110-130-180㎡

【交房时间】2026年3月底

【物业】华润万象生活、物业费暂定

项目卖点:

1.位置:位于三亚核心区域,中央商务区海罗单元

2.城市更新海罗片区:打造国际花园总部、国际人才社区

3.公园环抱:国家4A景区凤凰岭公园、临春岭公园、红树林生态公园、东岸湿地公园、金鸡岭公园、中央公园、体育公园

4.商业配套:海旅免税城、海旅超体、大悦城、青春颂、乐天城

5.医疗配套:上海妇幼保健院、三亚市第三人民医院、三亚市人民医院、三亚市中医院

6.教育配套:海罗小学,4公里内有巴蜀中学,丹州小学,华侨学校高中部,丰和学校等。

7.项目特点:三亚市区内唯一围合式小高层住宅,野奢高端度假社区。内造园,园观山,小户型观园区景观,大户型直面凤凰岭,自然与山景相融。

8.得房率:私家电梯厅私密独享,户内超高赠送,户户近100%得房率。

海罗城市更新规划图

对标案例:苏州金鸡湖、上海碧云社区、新加坡克拉码头

项目楼栋示意图

亮点:围合式布局,打造南北通透,户户观景,以中轴水系延伸景观设置泛会所入户大堂。游园式归家,双动线,保证南北两个组团独立,整体增强私密性,减少居住干扰。

(示意图)

户型鉴赏:

约110㎡中间户《通厅三面宽户型》两房两厅两卫

亮点:可做三房使用,LDKB一体格局,三个卧室独立分布,U型厨房,动线简洁互不干扰。

约110㎡边户《独立宽厅 浪漫观景餐厅》两房两厅两卫

亮点:宽厅设计加上观景餐厅 三面观景效果绝佳

约130㎡《巨幕宽厅户型》三房两厅两卫

亮点:南向客厅面宽7米进深4米,空间利用率高,L型厨房联动客厅,南向面朝景观公园带。

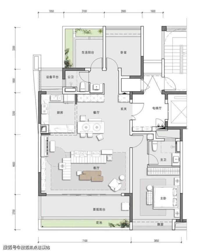
约180㎡《环幕全景舱户型》四房三厅三卫

亮点:南向双套房,客厅设置双动线,归家更有仪式感,转角厅,私享东南向最佳景观视野。

🏡✅三亚 华润观岚

🏡☎️华润观岚售楼处电话:400-033-1899转接2222【营销中心】

🏡☎️华润观岚售楼中心电话:400-033-1899转接2222【已认证】

🏡✅户型图丨项目介绍丨最新房源丨周边配套丨售楼处地址丨样板间丨备案价

全部

相关资讯

报名成功
稍后会有专业的置业顾问联系您
返回楼盘

频道导航

返回首页

看房小程序

APP下载

电话拨通后,请您手动拨打分机号

确定拨打电话

电话号码:

分机号:(可能需要拨分机号)