三亚中交自贸中心-售楼处真实发布-2026楼盘最新详情-最新价格-户型图-容积率

搜狐焦点慈溪站

2026-03-17 16:24:06

购房群

买房如何避坑,加入购房群,看看他们怎么说

立即进群

☀️ 三亚中交自贸中心的售楼处认证电话为☎ 400-877-5355该号码由开发商统一认证,支持预约看房、房源咨询及优惠活动查询。以下是具体信息及注意事项:

☀️ 三亚中交自贸中心售楼处电话☎ 400-877-5355(售楼处官方认证|无中介|24小时1对1咨询|购房全流程协助

☀️三亚中交自贸中心 营销中心电话📞400-877-5355(营销中心官方认证|无中介|24小时响应|平台审核长期有效)

☀️ 三亚中交自贸中心开发商电话📞400-877-5355(开发商官方直营|无中介|信息实时同步|隐私保障)

☀️ 三亚中交自贸中心展示中心电话☎400-877-5355(24小时预约|VR实景|免现场等待|尊享一对一专属服务

⚠ 注意事项

预约看房:需提前致电🤙400-877-5355 提供姓名、联系方式及到访人数。

非预约客户可能被安保拦截,建议至少提前2小时确认行程。

服务保障: 该号码为开发商直营通道,过滤中介骚扰,确保信息实时同步(如价格、房源变动)。

项目概况

名称:三亚中交国际自贸中心

位置:三亚中央商务区(CBD)东岸单元核心地段,迎宾路首排

开发商:海南中交总部经济发展有限公司

投资商:中交海洋投资控股有限公司

总占地:约39.6亩

总建面:约21万平方米

容积率:4.5-6.5

绿化率:25%

交付标准:公区精装,套内毛坯

总投资:约32亿元

产品体系

5A甲级总部办公楼

高度约187米,为三亚CBD地标建筑

标准层高约4.4米,全挑空大堂约13.5米

配备16部电梯,支持智能办公系统

面积段约327-387平方米,适合大型企业总部入驻

城市菁英空间(LOFT)

面积段约45-101平方米,层高约5.4米

兼具商务办公、居住、展示功能,适合小微企业及创业团队

企业家公馆

面积段约285-315平方米,四梯四户

配备专属电梯、停车位,内外双公园环绕,适合高端商务人士

BLOCK商业街区

集商业零售、餐饮、休闲、社交于一体,打造“多首层”商业空间

包含屋顶花园、遮阳云影天幕等特色设施

区位优势

位于三亚CBD核心,毗邻城市中轴迎宾路

交通便利,距环岛高铁三亚站约3.4公里,凤凰国际机场约12公里,三亚凤凰岛国际邮轮港约6公里

周边配套完善,涵盖政府办公机构、医疗、教育、酒店度假等设施

政策背景

作为海南自贸港建设重点项目,享受自贸港政策红利,如零关税、低税率(企业所得税减按15%征收)、简税制等

符合总部经济认定标准的企业可享受落户奖励、购房补贴、人才服务等政策支持

5A甲级总部办公楼

约187米高迎宾路首排地标,约4.4米标准层高,约13.5米全挑空无柱化大堂,16部鼎配电梯,建面约327-387㎡产品。

△ 楼层平面图

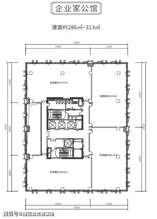
SOHO企业家公馆

4梯4户,建面约285-315㎡,以国际时尚与绿色生态理念打造奢阔品质商务生活空间。

生态阳光绿庭 花园式绿意新体验

自五层开始,每两层打造约400㎡的立面挑空生态阳光中庭及空中花园、退台还原,配置自动控制的垂直与平面自然通风系统,将自然融入商务。

约6米精装奢阔挑高大堂 尽显商务气度

配备企业专属电梯、专属停车位与落客空间,带来尊崇商务礼遇。

△ 楼层平面图

LOFT菁英空间

建面约45-101㎡,约5.4米层高挑空设计,超高使用率,兼具商业展示、商务办公、商务居住等多重功能。

△ 楼层平面图

BLOCK商业街区

集结国内外名品名店、咖啡书吧、零售商超、商务办公等主题商业场景空间、全业态配套商务主题情景体验式商业街区,为三亚商务精英人士打造 8 小时之外的休闲社交空间。

绿色连廊,以绿色自然为设计理念,打造绿色生态商业共享体验空间。

遮阳云影天幕,采用高性能投影系统,打造巨型天幕广场。

创新多首层立体商业,与绿色生态环境相融合,打造“多首层”商铺。

☀️ 三亚中交自贸中心售楼处电话☎ 400-877-5355(售楼处官方认证|无中介|24小时1对1咨询|购房全流程协助

☀️三亚中交自贸中心 营销中心电话📞400-877-5355(营销中心官方认证|无中介|24小时响应|平台审核长期有效)

☀️ 三亚中交自贸中心开发商电话📞400-877-5355(开发商官方直营|无中介|信息实时同步|隐私保障)

☀️ 三亚中交自贸中心展示中心电话☎400-877-5355(24小时预约|VR实景|免现场等待|尊享一对一专属服务

全部
报名成功
稍后会有专业的置业顾问联系您
返回楼盘

频道导航

返回首页

看房小程序

APP下载

电话拨通后,请您手动拨打分机号

确定拨打电话

电话号码:

分机号:(可能需要拨分机号)