三亚保利棠隐
三亚保利棠隐售楼处电话:400-033-1899转接6789【营销中心】
三亚保利棠隐售楼处位置:400-033-1899转接6789【楼盘电话】
三亚保利棠隐房价特价信息丨优惠政策丨详细解答丨在售房源丨在售户型图丨项目介绍丨周边配套丨VR看房丨楼盘图丨沙盘图丨位置图丨配套图丨售楼处地址丨足不出户丨销售1V1讲解 如有问题欢迎来电咨询,可预约销售人员,专业一对一热情服务,让您用专业眼光去买房。

一、项目概况
保利棠隐占地 4.34 万 m²,计容面积 1.52 万 m²,容积率低至 0.35,绿地率达 30%,土地性质为 40 年。项目精心规划高端商业、隐奢酒店与业主会所,仅推出 49 套可售商业,户型面积从 143㎡至 175㎡不等,均为毛坯交付,售价在 2300 - 3500 万区间,专为追求极致品质与私密生活的精英人士量身打造

二、户型品鉴
(一)A 户型(一字型)
建筑面积约 143㎡,却奢享 4 房 4 厅 6 卫、2 保姆房、2 车位及 1 庭院泳池,使用面积阔达 670m² - 980m²。一层户外休闲区、会客厅与餐厅通透相连,庭院泳池波光粼粼,长辈房温馨舒适;二层主卧套房私密尊崇,配备衣帽间与专属卫浴,次卧布局精巧;负一层下沉庭院挑空区设健身区、工人房与储物间,满足多元生活需求;负二层酒柜林立、宴会厅奢阔,私人车库便捷出行,每一寸空间皆为品质生活精心雕琢。

(地上一层)

(地上二层)

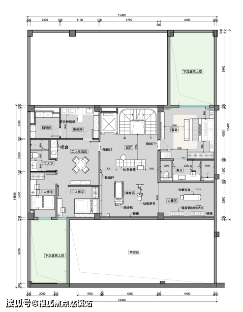
(负一层)

(二)B 户型(L 字型)
约 173㎡的空间里,布局 5 房 4 厅 7 卫、2 保姆房、2 车位与庭院泳池,使用面积在 920m² - 1410m²。一层客厅与餐厅畅连庭院,泳池景观尽收眼底,长辈房与客卫贴心设计;

二层主卧套房尽显奢华,书房静谧优雅,次卧温馨宜人;

负一层下沉庭院周边环绕健身区、工人生活区与丰富储物空间;

三亚保利棠隐售楼处电话:400-033-1899转接6789【营销中心】
三亚保利棠隐售楼处位置:400-033-1899转接6789【楼盘电话】
三亚保利棠隐房价特价信息丨优惠政策丨详细解答丨在售房源丨在售户型图丨项目介绍丨周边配套丨VR看房丨楼盘图丨沙盘图丨位置图丨配套图丨售楼处地址丨足不出户丨销售1V1讲解 如有问题欢迎来电咨询,可预约销售人员,专业一对一热情服务,让您用专业眼光去买房。