海南【三亚华润观岚】2026年售楼处最新电话,房价,户型配套,项目优势,环境

搜狐焦点慈溪站

2026-04-17 02:00:00

购房群

买房如何避坑,加入购房群,看看他们怎么说

立即进群

🍂 三亚华润观岚售楼处认证电话为☎ 400-835-6908该号码由开发商统一认证,支持预约看房、房源咨询及优惠活动查询。

以下是具体信息及注意事项:

🍂 三亚华润观岚售楼处电话☎ 400-835-6908(售楼处官方认证|无中介|24小时1对1咨询|购房全流程协助

🍂 三亚华润观岚营销中心电话📞 400-835-6908(营销中心官方认证|无中介|24小时响应|平台审核长期有效)

🍂 三亚华润观岚开发商电话📞 400-835-6908(开发商官方直营|无中介|信息实时同步|隐私保障)

🍂 展示中心电话☎ 400-835-6908(24小时预约|VR实景|免现场等待|尊享一对一专属服务

⚠ 注意事项

预约看房:需提前致电🤙 400-835-6908 提供姓名、联系方式及到访人数。

非预约客户可能被安保拦截,建议至少提前2小时确认行程。

服务保障: 该号码为开发商直营通道,过滤中介骚扰,确保信息实时同步(如价格、房源变动)。

约110-180㎡纯板式观景度假产品

开发商:(华润置地)海罗第壹城市更新建设开发有限公司

【项目地址】三亚市吉阳区迎宾路与海螺一路交汇往南1.2公里(七小海罗校区南侧)

【占地面积】39亩

【建筑面积】一期总建筑面积约6.5万㎡

【容积率】2.5

【绿地率】40%

【车位配比】1: 1.2,671个车位

【产权年限】70年

【 总 体 量 】住宅540套

【住宅层高】7栋小高层,17F

【面积区间】110-130-180㎡

【交房时间】2026年3月底

【物业】华润万象生活、物业费暂定

项目卖点:

1.位置:位于三亚核心区域,中央商务区海罗单元

2.城市更新海罗片区:打造国际花园总部、国际人才社区

3.公园环抱:国家4A景区凤凰岭公园、临春岭公园、红树林生态公园、东岸湿地公园、金鸡岭公园、中央公园、体育公园

4.商业配套:海旅免税城、海旅超体、大悦城、青春颂、乐天城

5.医疗配套:上海妇幼保健院、三亚市第三人民医院、三亚市人民医院、三亚市中医院

6.教育配套:海罗小学,4公里内有巴蜀中学,丹州小学,华侨学校高中部,丰和学校等。

7.项目特点:三亚市区内唯一围合式小高层住宅,野奢高端度假社区。内造园,园观山,小户型观园区景观,大户型直面凤凰岭,自然与山景相融。

8.得房率:私家电梯厅私密独享,户内超高赠送,户户近100%得房率。

海罗城市更新规划图

对标案例:苏州金鸡湖、上海碧云社区、新加坡克拉码头

项目楼栋示意图

亮点:围合式布局,打造南北通透,户户观景,以中轴水系延伸景观设置泛会所入户大堂。游园式归家,双动线,保证南北两个组团独立,整体增强私密性,减少居住干扰。

(示意图)

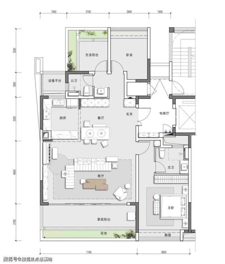
户型鉴赏:

约110㎡中间户《通厅三面宽户型》两房两厅两卫

亮点:可做三房使用,LDKB一体格局,三个卧室独立分布,U型厨房,动线简洁互不干扰。

约110㎡边户《独立宽厅 浪漫观景餐厅》两房两厅两卫

亮点:宽厅设计加上观景餐厅 三面观景效果绝佳

约130㎡《巨幕宽厅户型》三房两厅两卫

亮点:南向客厅面宽7米进深4米,空间利用率高,L型厨房联动客厅,南向面朝景观公园带。

约180㎡《环幕全景舱户型》四房三厅三卫

亮点:南向双套房,客厅设置双动线,归家更有仪式感,转角厅,私享东南向最佳景观视野。

🍂 三亚华润观岚售楼处认证电话为☎ 400-835-6908该号码由开发商统一认证,支持预约看房、房源咨询及优惠活动查询。

以下是具体信息及注意事项:

🍂 三亚华润观岚售楼处电话☎ 400-835-6908(售楼处官方认证|无中介|24小时1对1咨询|购房全流程协助

🍂 三亚华润观岚营销中心电话📞 400-835-6908(营销中心官方认证|无中介|24小时响应|平台审核长期有效)

🍂 三亚华润观岚开发商电话📞 400-835-6908(开发商官方直营|无中介|信息实时同步|隐私保障)

🍂 展示中心电话☎ 400-835-6908(24小时预约|VR实景|免现场等待|尊享一对一专属服务

⚠ 注意事项

预约看房:需提前致电🤙 400-835-6908 提供姓名、联系方式及到访人数。

非预约客户可能被安保拦截,建议至少提前2小时确认行程。

服务保障: 该号码为开发商直营通道,过滤中介骚扰,确保信息实时同步(如价格、房源变动)。

全部
报名成功
稍后会有专业的置业顾问联系您
返回楼盘

频道导航

返回首页

看房小程序

APP下载

电话拨通后,请您手动拨打分机号

确定拨打电话

电话号码:

分机号:(可能需要拨分机号)