「天津」绿城玉百合
🔱 售楼处电话【已认证】✔️:400-033-1899转接8888 ✅
🔱营销中心电话【已认证】✔️:400-033-1899转接8888 ✅
💌温馨提示:本项目采用预约制,前来营销中心请提前拨打400热线电话预约,感谢您的配合!
绿城·玉百合位于河西区南部,具体位置就在内江路与西海道交口东北角。
▲项目区位示意
项目占地仅约1.81万㎡,计容建筑面积约3.62万㎡,容积率2.0。
面对如此袖珍的地块,绿城极致利用了天津建筑新规,实现了一系列令人惊叹的产品迭代。
核心策略在于「超级底盘」——项目整体抬高约5.6米,成为板块内首个全架空社区。
▲项目鸟瞰效果图
「底盘」之上,2栋18层小高、7栋6-11层洋房构成独特的「悬浮」意象。
「底盘」之下,不仅整合了机动车库、社区配套,还释放出更多空间用作社区公共活动。
「底盘」中央,东西向「中央绿谷」串联起三大立体层级,下沉庭院也借高差获得了更丰富的立体感。

▲社区架空规划示意
然而最抢眼的,还要数绿城对社区边界的「场景化」重塑。
环绕架空平台顶部,专门打造出一圈工艺复杂的圆弧形双层金属挑檐。
它像一圈「腰线」,不仅勾勒出社区「超级底盘」的整体轮廓,更增强了社区的「悬浮感」。
▲项目西侧城市界面效果图
尤其内江路一侧的立面,米白色石材和古铜色铝板塑造出强烈质感,形成极高的辨识度。
挑檐下则形成众多「灰空间」,结合街边绿植围合与休闲长凳,创造出富有吸引力的停留场所。
▲项目街道效果图
社区西南和西北角,分别通过转角商铺和弧形格栅景墙,柔化了街道转角的生硬感。
结合沿街绿化,形成自由的外摆空间与街角景观,更丰富了步行体验。
▲项目街角效果图
这种「社区边界场景化」设计,最终将冰冷的小区围墙转化为充满活力的发生器。
它消解了现代社区常见的封闭感,使街道变得可漫步、可停留、有温度。
绿城这么做,不仅提升了项目自身的品质标识,更以设计之力创造出「友好的城市界面」。
绿城·玉百合的产品分为两梯四户小高层和一梯二户洋房两种,户型也有所不同。
小高层包括建筑面积约99㎡的中间户,建筑面积约114㎡的边户。
利用「分户S墙」增强空间利用率,便于将冰箱从厨房移至餐厅,以便实现开敞式厨房,进而完成LDK一体化。
◀滑动查看更多小高层户型图▶
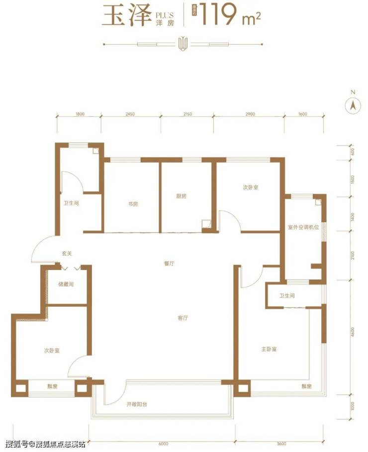
洋房户型包括建筑面积约102㎡、115㎡、119㎡、131㎡。
它们的最大特点,就是改造空间极大,你需要充分地发挥想象力,去憧憬未来装修后的户型格局。
◀滑动查看更多洋房户型图▶
这些户型都是三室布局,整体的开间、进深方便都比较充分。归纳起来,它们有如下几个特点:
都几乎是「零走道」,避免无效面积浪费。
都设计了开敞式阳台,建筑面积约131㎡更是有贯通南次卧+客厅、长度近9.8米的跑道式开敞阳台。
建筑面积约102-119㎡户型都设计了独立储藏间,建筑面积约131㎡户型也有条件改造出储藏间。
都对设备平台、飘窗台、阳台等做了极致利用,实现更高的户内面积实用率。
至于建筑立面,在片区内绿城·玉百合也是鹤立鸡群的效果,进一步增强了美学灯塔效应。
南向几乎满铺玻璃,连窗间墙都是如此,实现了类幕墙效果。
再加上开敞式阳台的玻璃护栏,使得整栋建筑远看像是一个个「水晶体」拼在一起。
▲建筑立面效果图过程版
米白色仿石铝板在纵向上勾勒出类似拱券的造型,实现更加丰富的肌理层次。
最特别的是镶嵌在卧室窗下的天青色釉面陶板,光影变化比铝板更丰富,质感比石材更温柔灵动,堪称点睛。

▲建筑立面效果图过程版
单元大堂的设计更有艺术感,特别是门头雨棚,和人、车行大门异曲同工。
中轴对称的布局,两侧的石材景墙+金属格栅,腰部嵌入的天青色釉面陶板增加了精致细节。
「天津」绿城玉百合
🔱 售楼处电话【已认证】✔️:400-033-1899转接8888 ✅
🔱营销中心电话【已认证】✔️:400-033-1899转接8888 ✅
💌温馨提示:本项目采用预约制,前来营销中心请提前拨打400热线电话预约,感谢您的配合!