逸宸首府(售楼处)首页网站-太原逸宸首府营销中心-逸宸首府欢迎您-楼盘详情-最新价格-户型图-容积率@售楼处

搜狐焦点慈溪站

2025-06-02 12:47:08

购房群

买房如何避坑,加入购房群,看看他们怎么说

立即进群

太原逸宸首府

售楼处电话:400-100-1299转5888

网上售楼中心〢欢迎来电咨询〢1v1销售专业讲解

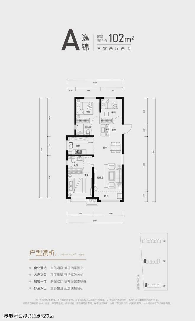
项目规划约102-129㎡舒阔三居,从两口之家到三代同堂,灵活多变的空间设计,打破一成不变的居住状态。合理规划起居动线,兼顾功能实用性与精神氛围营造,为成长预留空间,让家庭每个阶段都是恰到好处的幸福体验。同时携手中国物业管理行业领跑者——万科物业,将管家式服务融入到物业服务的标准之中,提供360°全天候贴心服务。

中铁置业·逸宸首府坐拥西中环快速路、和平南路、长风街、南内环街两横两纵交通路网,紧邻地铁3号线(规划中)及高铁西客站(规划中),便捷出行。周边长风商务区、下元商圈环伺,西山万亩生态园、和平公园、山西中医学院附属医院(三甲)、市妇幼保健院等醇熟配套汇集,公安局、市检察院、市房地局等政府单位林立。守望城市贵脉,与政务菁英为邻,拥揽低密生态,乐享醇熟人居体验。

【户型鉴赏】

太原逸宸首府售楼处电话:400-100-1299转5888网上售楼中心〢欢迎来电咨询〢1v1销售专业讲解

全部

相关资讯

报名成功
稍后会有专业的置业顾问联系您
返回楼盘

频道导航

返回首页

看房小程序

APP下载

电话拨通后,请您手动拨打分机号

确定拨打电话

电话号码:

分机号:(可能需要拨分机号)