三亚保利浅海时光里
售楼处电话:400-100-1299转5999
网上售楼中心〢欢迎来电咨询〢1v1销售专业讲解

项目地址:三亚市崖州湾科技城振兴路与创新路交汇处(距海仅200米)
项目区位
【北纬18°三亚西翼】 坐拥“旅游天堂、度假天堂、购物天堂”

【崖州湾科技城】坐落于科技之城,毗邻种业硅谷,人才高地



崖州湾科技城会议中心(约5200㎡)
星级度假酒店(约22500㎡)
商业街区(约7400㎡)

婚礼礼堂
产品介绍
百变商业:25#、26#、27#三栋为4-5层高百变商业产品,总建面约1.08万方,共122户,面积区间为77-135㎡。目前仅余少量房源
低层商业:低层商业设计提取崖州古城传统民居元素,延续古城文脉,建筑采用围合式布局,可做独栋商业,亦可做咖啡厅、工作室等,满足不同功能需求。低层商业共5栋,分别为16#、17#、22#、23#,总建面约0.38万方,共计18套。产品建面约163-238㎡。
在售产品
【低层商业】16#、17#、22#、23#(共18套)
【产品面积】建筑面积约163-241㎡ 2+1层小镇商厝
【户型优势】首层层高6米,二层3.9米,可做2+1层,拓展面积可达56-110%。
【户型分布展示】
户型1:

户型2:

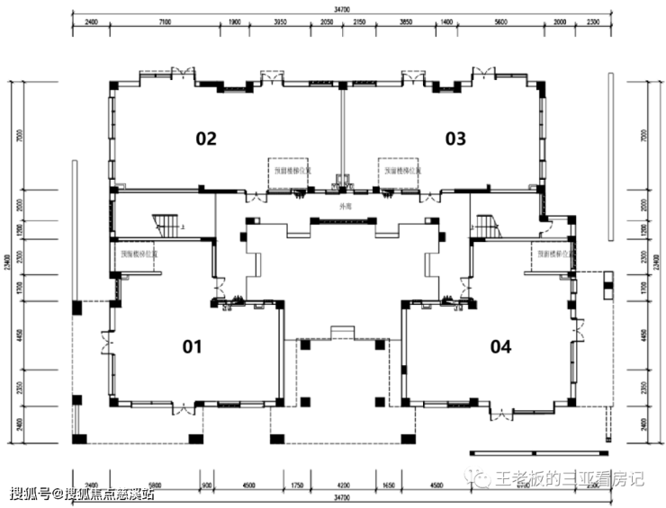
在售户型
1)16#

2)17#

2)23#

三亚保利浅海时光里
售楼处电话:400-100-1299转5999
网上售楼中心〢欢迎来电咨询〢1v1销售专业讲解