广州越秀·江海潮鸣
售楼处电话:400-100-1299转5888
网上售楼中心〢欢迎来电咨询〢1v1销售专业讲解
【项目基本情况】
占地面积:约1.4万㎡
建筑面积:约8.8万㎡
容积率:约3.8
总户数:379户
梯户比:1#2T5,2/3#2T4
交付标准:装修
车位配比:1:1.44(住宅)
交通方面,项目与地铁18号线的横沥站直线距离约2.2公里,搭乘快线的话,两个站就能到天河的冼村站。
另外附近还规划有地铁15号线、31号线以及32号线,越秀·江海潮鸣与地铁31号线&32号线双线交汇的横沥东站的直线距离大概是500米左右。(数据来源:百度地图)

生活配套方面,附近有中山大学附属第一(南沙)医院(已启用)、国际金融论坛(IFF)永久会址(在建中)、约18万㎡地下商业空间(在建中)等等。咨询热线:15012627238 蔡经理

值得一提的是,项目坐拥一线江景,而且是南向望江。
作为岛内首个南向一线望江的项目,隔下横沥水道对望明珠湾区珠江东组团,向东还能眺望珠江出海口,视野相当开阔。

|项目东南向视野模拟
越秀·江海潮鸣项目占地面积约1.4万㎡,建筑面积约8.8万㎡,规划 4 栋楼,分别是 3 栋住宅和 1 栋公寓,容积率3.8,属岛尖最低,妥妥的低密舒适社区。
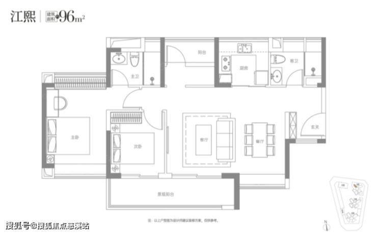
目前在售户型分别是建面约96㎡2+1房、建面约125㎡3+1房、建面约140㎡3+1房。



约96㎡2+1房有两种户型,一个做了竖厅设计,一个做了横厅设计,而且是主人房跟次卧分开的飞机户型。

建面约125㎡3+1房户型,也是有横厅、竖厅两种设计。这个户型分布在2栋、3栋的南面,其中3栋直接一线望江,是整个小区最近江的户型,景观十分能打。

广州越秀·江海潮鸣
售楼处电话:400-100-1299转5888
网上售楼中心〢欢迎来电咨询〢1v1销售专业讲解