➢哈尔滨杨柳郡售楼处电话400-033-1899转接5888【已认证】
➢哈尔滨杨柳郡营销中心电话400-033-1899转接5888【官方认证】
➢哈尔滨杨柳郡样板间预约电话400-033-1899转接5888【售楼中心】
➢来电可了解楼盘最新动态、房价、在售房源、交楼时间等信息!让你买的放心,住的舒心!
△鸟瞰图
绿城杨柳郡·桂栖雲上,约11米台地洋房产品,近乎三层楼的地势高差,打造了全市独一份的云上生活体验。
26日,小编实地探盘了绿城杨柳郡·桂栖雲上,
初见礼仪门庭就看见了如凤凰尾翼造型的叠水景观,如同伴随凤凰归家。
△实景图
建面约1200㎡,挑高11.88米的云端大堂,寓意一步一财阶,财富在此启封,
整个大堂采用法式风格,以及绿城经典的普拉达绿奢石,宛如悬浮的艺术殿堂,将高端奢华融入归家之中。
△实景图
大堂左侧打造了专门为孩童准备的“四点半学堂”,包括游玩区、读书区、积木区等等,
在社区大堂内,就可以满足孩子的游玩需求,还能保障孩子的安全,
对于家长来说这里就是家门口的“托儿所”。
△实景图
大堂左侧则是为成年人准备的棋牌室和会客区,风格与大堂相同,以简约奢华为主。
△实景图
从大堂的“星云电梯”上至二楼,才真正进入小区内部。
二楼出门就是宽敞的归家大道,灰黑白三色系的地砖非常庄重典雅,
两侧的叠水瀑布,水流潺潺,寓意“见水生财”。
△实景图
大道尽头是已经实景呈现的部分园林,
△实景图
不仅有休闲小径,还有小型会客厅,以及休闲处所,让业主可以随时随地停下来欣赏风景。
△实景图
整个园林绿植环绕,还有巨大的“养成系”草坪,让这里的每一景都带着诗意和自然。
△实景图
在漫游园林时还发现了一处细节,桂栖雲上在道路边缘设置了凹槽形的流水区,可以避免下大雨时漫上步行道。
△实景图
从园林的绿植、到功能小景的设计,再到微小的细节,都体现了桂栖雲上对于精工与艺术生活的追求。
此次除了社区大堂以及部分公区开放外,还有两个样板间。
建面103㎡的B3户型,三室两厅一卫,为精装交付,

户型为“端厅”,拥有独立玄关区作为“室内外过渡带”,搭配了顶天立地鞋柜,满足归家物品收纳,
△实景图
厨房餐厅客厅阳台联通一气,南北通透,
△实景图
客厅的面宽与进深尺度适配,外接景观阳台,采光面充足,可灵活布置沙发、电视柜等家具,成为休闲娱乐的核心承载区,
△实景图
同时与餐厅无明显隔断,亲友相聚时,烹饪者在厨房也能融入交流,让“做饭”不再孤立,而是家庭互动的一部分。
卧室集中排布于户型内侧,保障休憩空间的静谧性,
△实景图
动与静的分区明确,既让社交、烹饪等“动态行为”流畅互动,又为睡眠、阅读等“静态需求”营造专属场域。
这样一个在有限面积内,通过合理分区、细节设计,实现“三房功能性 + 公区互动性 + 私密休憩感”的平衡,
让103㎡空间,承载“二人世界的浪漫、三口之家的温馨,乃至三代同堂的从容”,真正做到“户型为生活服务”的设计逻辑。
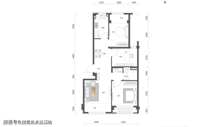
建面143㎡的D3户型,三室两厅两卫,为毛坯交付

户型为“三叶草”,方正且南北通透,公区与卧区形成 “前动后静” 的清晰分区——
玄关、客餐厅、厨房构成家庭 “社交主轴”,承载日常互动、宴请宾客;
➢哈尔滨杨柳郡售楼处电话400-033-1899转接5888【已认证】
➢哈尔滨杨柳郡营销中心电话400-033-1899转接5888【官方认证】
➢哈尔滨杨柳郡样板间预约电话400-033-1899转接5888【售楼中心】