Ⓐ三亚 艺海棠售楼处电话→艺海棠首页网站→楼盘测评→艺海棠营销中心电话→楼盘百科→售楼处位置→@艺海棠24小时电话热线

搜狐焦点慈溪站

2025-06-06 11:59:27

购房群

买房如何避坑,加入购房群,看看他们怎么说

立即进群

🏡✅三亚 艺海棠

🏡☎️艺海棠售楼处电话:400-033-1899转接2222【营销中心】

🏡☎️艺海棠售楼中心电话:400-033-1899转接2222【已认证】

🏡✅户型图丨项目介绍丨最新房源丨周边配套丨售楼处地址丨样板间丨备案价

鸟瞰图

艺术美宅:

【主力户型】

建筑面积:约95㎡

户型:两房两厅两卫

建筑面积:约168㎡

户型:三房两厅三卫

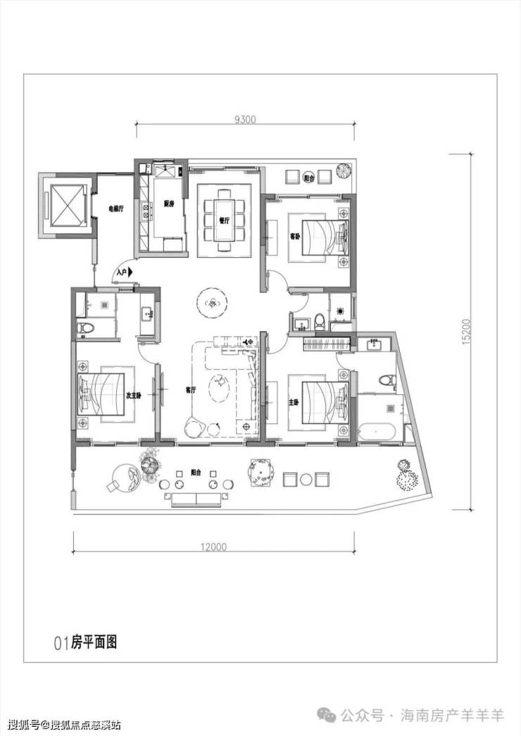
建筑面积:约220㎡

户型:五房两厅三卫

🏡✅三亚 艺海棠

🏡☎️艺海棠售楼处电话:400-033-1899转接2222【营销中心】

🏡☎️艺海棠售楼中心电话:400-033-1899转接2222【已认证】

🏡✅户型图丨项目介绍丨最新房源丨周边配套丨售楼处地址丨样板间丨备案价

全部

相关资讯

报名成功
稍后会有专业的置业顾问联系您
返回楼盘

频道导航

返回首页

看房小程序

APP下载

电话拨通后,请您手动拨打分机号

确定拨打电话

电话号码:

分机号:(可能需要拨分机号)