厦门 中海峯汇里售楼处电话-售楼中心-24小时热线

搜狐焦点慈溪站

2025-07-29 18:37:08

购房群

买房如何避坑,加入购房群,看看他们怎么说

立即进群

厦门 中海峯汇里

🔱 售楼处电话【已认证】✔️:400-033-1899 转接8888✅

🔱 营销中心电话【已认证】✔️:400-033-1899 转接8888✅

💌温馨提示:本项目采用预约制,前来营销中心请提前拨打400热线电话预约,感谢您的配合!

厦门中海峯汇里作为城市核心区复合型人居标杆,由8栋现代化高层建筑集群构成,形成集居住、生态、商务功能于一体的垂直城市单元。

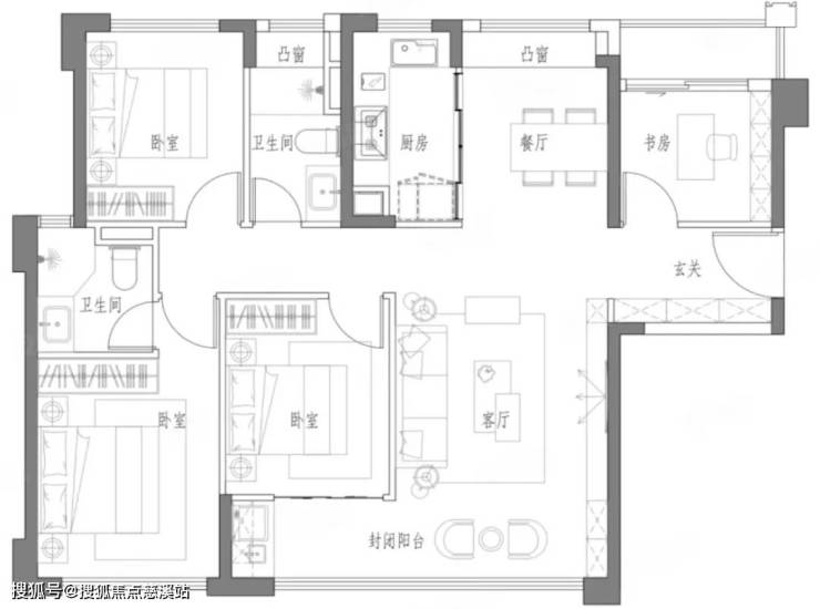
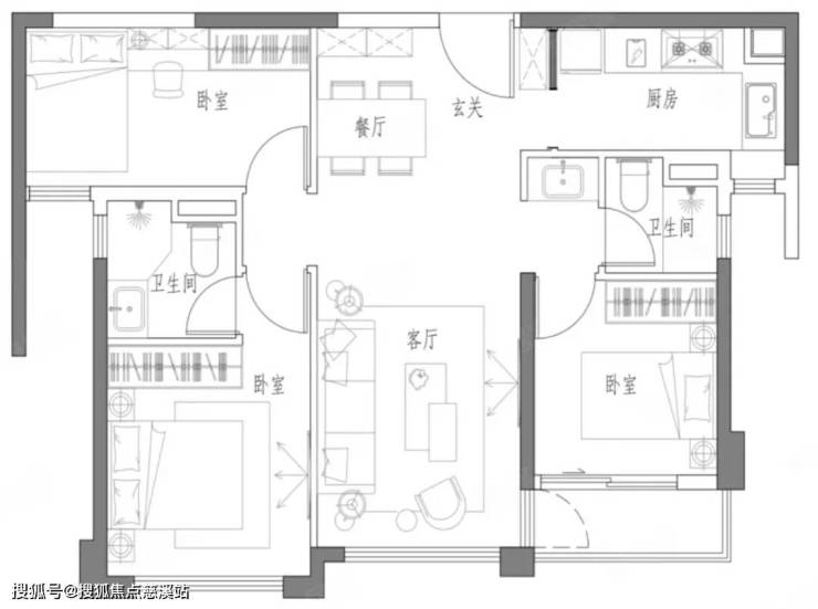
户型图

(建面约89㎡户型)

(建面约121㎡户型)

(建面约190㎡户型)

一房一价

厦门 中海峯汇里

🔱 售楼处电话【已认证】✔️:400-033-1899 转接8888✅

🔱 营销中心电话【已认证】✔️:400-033-1899 转接8888✅

💌温馨提示:本项目采用预约制,前来营销中心请提前拨打400热线电话预约,感谢您的配合!

全部

相关资讯

报名成功
稍后会有专业的置业顾问联系您
返回楼盘

频道导航

返回首页

看房小程序

APP下载

电话拨通后,请您手动拨打分机号

确定拨打电话

电话号码:

分机号:(可能需要拨分机号)