深圳湾公馆(售楼处)首页网站-招商深圳湾公馆营销中心-深圳湾公馆欢迎您-楼盘详情-最新价格-户型图-容积率@售楼处

搜狐焦点慈溪站

2025-06-03 12:03:25

购房群

买房如何避坑,加入购房群,看看他们怎么说

立即进群

招商深圳湾公馆

售楼处电话:400-100-1299转5888

网上售楼中心〢欢迎来电咨询〢1v1销售专业讲解

深圳湾公馆,一座位于南山区后海大道与东滨路交汇处的地标性建筑,由广东城脉地产有限公司匠心打造。项目总建筑面积37000平方米,容积率8.74,绿地率30%,以其独特的L型设计和150米的高度,傲立于深圳湾畔,为业主带来无与伦比的湾区生活体验。

深圳湾公馆位于南山区后海大道与东滨路交汇东北角,紧邻全球十大总部之一的深圳湾超级总部基地,周边拥有150万㎡顶级商业、全龄段名校等优渥配套资源。同时还占据“海、陆、空、轨”四维交通体系,深圳湾口岸、太子港、深圳湾机场、香港机场、后海大道、东滨路等“5纵3横”主干道、蛇口线等4地铁均环伺在侧,营造优越之上的湾区生活。

基础信息

开发商:广东城脉地产有限公司

项目名称:深圳湾公馆

物业:深圳市物资物业管理有限公司

项目占地:3000㎡

总建面:37000㎡

土地性质:商品房

房屋类型:住宅

容积率:8.7

绿化率:30%

可售套数:约215套

车位数量:200个停车位,车位配比为1:1(地下四层)

梯户比:3梯10户

产权:70年

项目地址: 位于南山后海大道和东滨路东侧交汇处,地铁2号线登良站 D出口。

深圳湾唯一在售复式住宅

带装修现楼,极致奢阔空间

现代极简主义设计风格,打造品质居住空

一屋尽拥德意顶级奢装品牌

国际一线精装品牌打造

深度智能家居系统

引领人居科技前沿

顶级圈层私享配套

定制私家空中铂金会所

3D垂直绿化富氧空间

全天候室外恒温泳池

THE ICON酒店式服务公寓,一线奢装家私配备

360°全方位服务之道

名车私享荟,一键定制名车服务

私人管家、金牌家政、定制式服务

酒店式物管团队、满足顶级圈层生活服务所需

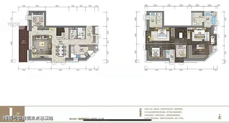
深圳湾公馆目前在售户型多样,包括79㎡-88㎡、113㎡和152㎡的3-4房智能豪装复式住宅。这些户型设计合理,南北通透,大开间设计,复式下层餐厨客厅连宽景阳台,复式上层私密卧房全明采光,动静分区私享个性生活。79㎡复式三房两厅三卫:南北通透,5.4米大开间,复式下层餐厨客厅连宽景阳台,另带一个法式小阳台。复式上层私密卧房全明采光,动静分区私享个性生活。另一个次卧带衣帽间。 88㎡复式三房两厅三卫: 南北通透,5.4米大开间,复式下层餐厨客厅连宽景阳台,复式上层私密卧房全明采光,动静分区私享个性生活。113㎡复式三房两厅三卫+工人房:南北通透三面景观,5.6米客厅与主卧开间,独具品位,尽享奢阔。152㎡复式三套房两厅四卫+双功能房:双向通透三面采光,尽赏深圳湾景观,6.3米开间,三套房设计,两间多功能房满足个性化使用。

招商深圳湾公馆

售楼处电话:400-100-1299转5888

网上售楼中心〢欢迎来电咨询〢1v1销售专业讲解

全部

相关资讯

报名成功
稍后会有专业的置业顾问联系您
返回楼盘

频道导航

返回首页

看房小程序

APP下载

电话拨通后,请您手动拨打分机号

确定拨打电话

电话号码:

分机号:(可能需要拨分机号)