🏡⭐⭐海控翰林府售楼处电话:400-133-5355【营销中心】
☎️☎️售楼中心电话:400-133-5355【已认证】
⭐⭐户型图丨项目介绍丨最新房源丨周边配套丨售楼处地址丨样板间丨备案价
一、地块基础指标
占地约45亩(29701.96㎡),总建面12.98万㎡,容积率3.0,绿化率25%。总户数830户(住宅604套、商业180套、商铺32套、花园商墅14套),车位771个。产权住宅70年、商业40年,精装现房,2025年8月交付。







二、住宅产品矩阵|高层19-23层
两梯四户,精装交付,层高约3米:
108㎡三房两卫:总价238-260万,LDKG贯通,使用率90%+,双条形厨房通生活阳台
118㎡三房两卫:总价260-285万,客厅面宽与景观阳台尺度升级,双面落地窗阳改房
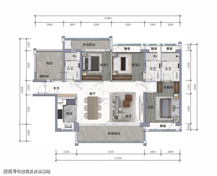
128㎡四房两卫:总价282-310万,横厅设计,6.6米超宽休闲阳台,南北双阳台(部分带3阳台),得房率80%+
151㎡四房三卫(双套房):总价330-370万,双主卧配置,三卫设计,南北双阳台,使用率90%+
🏡⭐⭐海控翰林府售楼处电话:400-133-5355【营销中心】
☎️☎️售楼中心电话:400-133-5355【已认证】
⭐⭐户型图丨项目介绍丨最新房源丨周边配套丨售楼处地址丨样板间丨备案价