🏡✅【三亚】海棠悦府
🏡✅海棠悦府售楼处电话☎️400-033-1899分机号2222【售楼中心】【已认证】
🏡✅海棠悦府营销中心电话📞400-033-1899分机号2222【置业顾问】【已认证】
🏡✅楼盘详情含开盘消息、交房时间、楼盘详情、房价、户型、详情、得房率、售楼处地址、首页网站、销售中心、楼盘地址、户型图、交通、备案价、项目配套、营销中心、周边配套等详情咨询。



A2 户型(143㎡ 两室两厅两卫)
核心亮点
:约 8m 奢阔横厅,打造尊崇社交领地;奢适套卧设计,保障起居优雅;约 11.6m 宽幕阳台,四季赏景无遮挡;U 型灵感餐厨,纵享烹饪乐趣。
A1 户型(143㎡ 2+1 室两厅两卫)
核心亮点
:约 9m 宽境横厅,解锁百变生活场景;环幕阳台设计,视野所及皆风光;奢适套卧带独立衣帽间,私享雅致时光;中西双厨配置,拓展餐厨功能体验。


191㎡ B2 户型:四室两厅三卫,优化居住体验
核心亮点
:灵动入户设计,空间布局自由;宽幕阳台连接自然,与景致为友;双套房设计,保障家庭成员隐私,互不干扰;方厅与餐厨相连,三餐时光皆伴美景。


3. 255㎡ C2 户型:四室两厅三卫,精妙空间利用
核心亮点
:花园入户设计,莳花弄草享闲情;约 9.4m 宽景横厅,聚会待客更从容;巨幕阳台拓展观景视野与生活边界;奢适套卧高定配置,彰显尊崇生活。

4. 300㎡+ 大平层:高端家庭的奢居之选
D1 户型(319㎡ 四室两厅四卫)
核心亮点
:双入户空间,私密感与尊崇感升级;花园式套房带花园阳台,揽景自然;约 9.2m 巨幕宽厅,欢聚会客尽显气派;270° 全景舱式阳台,俯瞰环幕胜景。
D2 户型(343㎡ 四室两厅四卫)
核心亮点
:约 9.2m 巨幕宽厅,兼具观景与社交功能;星空阳台采用海洋流线设计,引自然入境;三幕视野布局,风景均衡分布;奢适主卧整合多元功能,起居从容。



二期户型:适配更多居住需求
5. 二期户型:适配更多居住需求
115A 户型(114㎡ 三室两厅两卫)
:空间布局紧凑实用,合用前室、设备平台设计提升居住便利性,主卧与次卧分区合理,满足三口之家基础需求。
115B 户型(115㎡ 三室两厅两卫)
:户型方正,玄关过渡自然,客厅与卧室动线清晰,兼顾居住舒适度与空间利用率
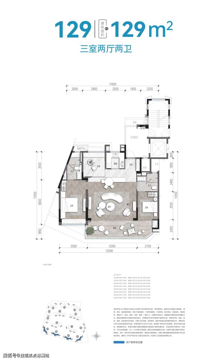
129 户型(129㎡ 三室两厅两卫)
:带花园入户,合用前室与设备平台配置完善,主卧空间阔绰,适合对居住品质有一定要求的家庭。

🏡✅【三亚】海棠悦府
🏡✅海棠悦府售楼处电话☎️400-033-1899分机号2222【售楼中心】【已认证】
🏡✅海棠悦府营销中心电话📞400-033-1899分机号2222【置业顾问】【已认证】
🏡✅楼盘详情含开盘消息、交房时间、楼盘详情、房价、户型、详情、得房率、售楼处地址、首页网站、销售中心、楼盘地址、户型图、交通、备案价、项目配套、营销中心、周边配套等详情咨询。