天津 金地水西印
☎️售楼处电话:400-033-1899转接8888 【售楼中心】
💌 网上售楼中心〢安全通话隐藏真实号码〢一对一热情服务〢
✅售户型图丨项目介绍丨最新房源丨周边配套丨详细解答〢营销中心✅
金地·水西印二期 耀目新品
复康路主轴 · 水西叠墅 · 宽幕洋房
—— 城市再墅信仰 ——
建面约134-178㎡水西叠墅
建面约115-173㎡ 宽幕洋房
⭐水西印雄踞水西南区中心点:水西南区背靠水西公园,接驳南开区,是整个水西板块的价值核心;水西印地处水西南区中心节点,可以说,真正坐享水西南区的发展红利与价值利好。
⭐紧邻复康路的城市价值占位:水西印紧邻复康路-中环线一线,汇聚和平、南开、河西顶级城市价值核心,坐享天津最核心的都会资源。
⭐全市唯一的生态都会生活圈:水西顶级生态场景+复康路顶级都会场景,构筑水西印全城仅有的生态都会生活圈。
⭐水西南区低密产品最后的机会:水西南区近期出让的H地块,容积率为2.0,可判断,板块已告别低密度产品;且就目前已经公布的信息,已经没有地块可以规划出低密产品。
二期耀目新品 终极改善之作
⭐复合型低密墅区 水西绝版
▪金地·水西印二期,以水西南区最后的低密住区,营造低密生活之绝响,错过难再得。
▪咫尺复康路主轴,同享南开醇熟配套,串联和平、南开、河西交通脉络,咫尺繁华。
▪规划叠墅、洋房、商业、会所及南北双公园等复合业态,构筑板块唯一的步行生活圈。
▪金地TOP系产品,承袭金地豪宅血脉,每一席皆标杆。

⭐第三代叠墅 焕新当代墅居
▪【稀缺价值】
建面约134-178㎡水西叠墅,收藏级城市恒产,水西难以再得。
▪【产品价值】
第三代叠墅,当代高定风格,去风格化设计更符合时代审美。

⭐墅区宽幕洋房 水西人居标杆
▪【产品价值】
建面约115-173㎡宽幕洋房,承袭一期的设计理念和产品水准,拥有更大的产品区间。
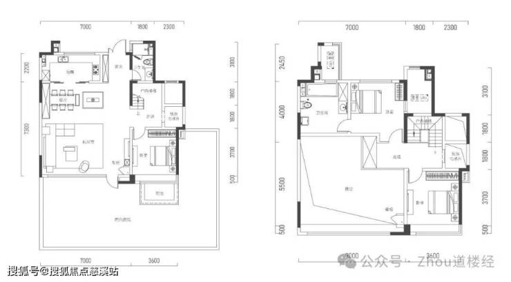
宽境舒居|约115㎡洋房|三室两厅两卫
悦景观邸|约131㎡洋房|三室两厅两卫
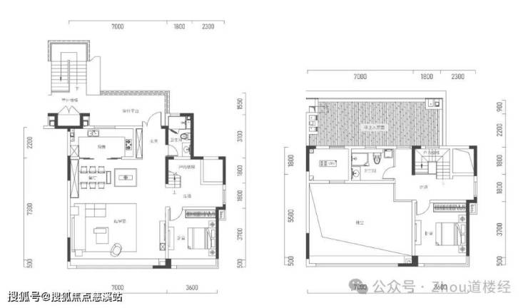
光幕奢域|约143㎡洋房|三室两厅两卫
极境平墅|约173㎡洋房|三室两厅两卫
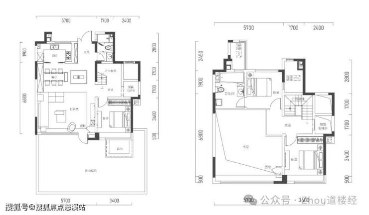
悦墅|约134㎡上叠|两室两厅两卫
和墅|约143㎡下叠|三室两厅两卫
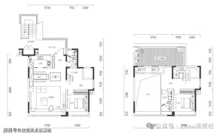
云 墅|约159㎡上叠|两室两厅两卫
境 墅|约178㎡下叠|三室两厅两卫
天津 金地水西印
☎️售楼处电话:400-033-1899转接8888 【售楼中心】
💌 网上售楼中心〢安全通话隐藏真实号码〢一对一热情服务〢
✅售户型图丨项目介绍丨最新房源丨周边配套丨详细解答〢营销中心✅